
House for sale 6+1 • 132 m² without real estateHauptstraße, 49, , Hesse
Hauptstraße, 49, , HessePublic transport 2 minutes of walking • ParkingThis detached single-family house, built in 1929, is located in the central area of Rodgau and has been extensively modernized and continuously updated over the years. The original timber-framed house now presents itself in a very well-maintained, contemporary condition. There is no need for any renovation or refurbishment – the house is move-in ready and is ideal for buyers who want to settle in without dealing with construction work. The property is currently occupied by its owners.
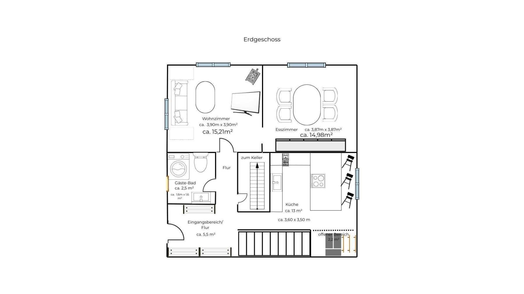
Living Area & Room Layout
The approximately 132 m² living space is spread over the ground floor, first floor, and attic. In total, there are 6 rooms available, which can be flexibly used as living, sleeping, working, or hobby spaces.
Additionally available:
• 1 cellar room
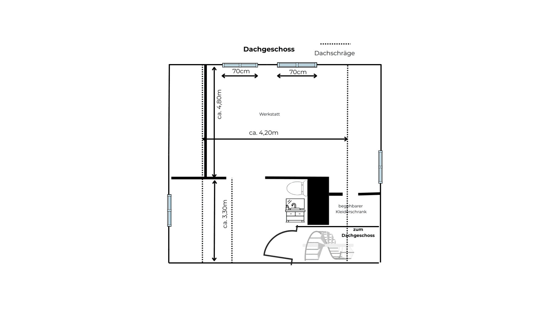
• Developed attic
Bathroom Facilities
• Full bathroom
• Modern guest WC on the ground floor, completely renovated about a year ago
• Toilet and washbasin with under- and overhead cabinets in the attic
Modern Energy and House Technology
• Photovoltaic system with energy storage
• Wallbox for electric vehicles
• Two parking spaces
Fully air-conditioned house with five indoor units and one outdoor unit, usable for both cooling and heating. This setup offers a high degree of living comfort, energy efficiency, and flexibility in everyday life.
Condition & Modernization
The house has been continuously maintained and modernized. Renovations and improvements have been implemented consistently and sustainably so that the property is now in a very well-maintained, modern overall condition.
• Private sale – no realtor commission
• Completely modernized
• Modern energy and climate technology
Rodgau is a town in the Offenbach district of Hesse. It offers excellent infrastructure with numerous shopping facilities, doctors, and schools. Transportation is convenient due to its proximity to motorways and public transit, and several parks and green spaces provide ample opportunities for relaxation.
Property characteristics
| Age | Over 5050 years |
|---|---|
| Layout | 6+1 |
| EPC | A - Extremely economical |
| Land space | 129 m² |
| Price per unit | €4,091 / m2 |
| Condition | After reconstruction |
|---|---|
| Listing ID | 976627 |
| Usable area | 132 m² |
| Total floors | 3 |
What does this listing have to offer?
| Basement | |
| MHD 2 minutes on foot |
| Parking | |
| Terrace |
What you will find nearby
Still looking for the right one?
Set up a watchdog. You will receive a summary of your customized offers 1 time a day by email. With the Premium profile, you have 5 watchdogs at your fingertips and when something comes up, they notify you immediately.



















































