
House for sale • 326 m² without real estateNellinger Straße 47 Stuttgart Heumaden Baden-Württemberg 70619
Free-standing 12-room villa (built in 1957 / extension added in 1993) with a total of 326 m² of heated living space or 405 m² according to WoFlV (see picture) plus 64 m² of usable space.
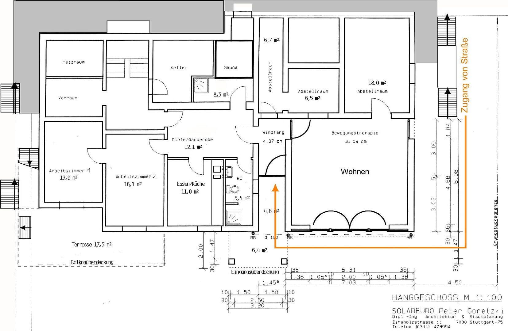
Garden level (115 m²) is separately usable with its own entrance and sauna.
The main residence (ground floor + first floor + second floor) is not suitable for division into several separate living units (see floor plans).
Plot size: 1366 m², including
- 711 m² designated building land (WGFZ: approx. 1.2-1.4, i.e. land value at least 1.1 million) plus
- 655 m² immediately adjacent garden area with a flower meadow, fruit trees, and berry bushes. Garden shed. Rainwater cistern with 3 m³ for irrigation.
- plus a 140 m² free-lease “bonus plot” from the city
Hence, a low property tax bill in 2025 of only 1,274 €/year plus 147 €/year for stormwater.
Planning permission in accordance with §34 BauGB
East-facing slope in a quiet, unobstructed peripheral and scenic location.
U-Bahn, bus, school, doctors, and shopping are all reachable within a few minutes on foot.
Stuttgart city center and the main train station are reachable in about 20 minutes by U-Bahn. The airport is about a half-hour away by bus, Esslingen about 25 minutes. The motorway can be reached in approximately 10-15 minutes.
Nonetheless, the property is situated in a quiet suburban location with views of the Katharinenlinde (lime tree) and the Schurwald forest.
The forest directly opposite the property to the east and the fields and orchards with scattered fruit trees bordering it to the east and south, with views of the Swabian Alb, invite relaxing walks in every season.
Oblique aerial images available at:
https://www.bing.com/maps?FORM=Z9LH2&cp=48.742518%7E9.235655&lvl=20.0&style=g&dir=-60
The spacious, bright dining and living room (47 m²) on the ground floor, with a ceiling height of approx. 2.8 m and an adjoining library or study, features parquet floors, whereas the bedrooms on the first and second floors have carpet floors. On the garden level, you will find cork or laminate floors as well as tiles.
Well-maintained overall condition.
Windows on the ground floor and first floor were mostly renewed in 2009 (Ug = 1.1 W/m²K).
Roof: insulation between the rafters Ud = 0.235 W/m²K
=> no retrofit requirement according to the GEG.
Exterior walls:
- Ground floor + upper floors: hollow core concrete blocks 24 cm, U = 1.14 W/m²K;
- Basement: hollow core concrete blocks 30 cm, U = 0.95 W/m²K;
- Extension: Perforated bricks, U = 0.21 W/m²K
= Energy efficiency class "E"
Gas low-temperature heating system renewed in 2009 (currently allowed to continue operation indefinitely).
Energy consumption for heating and hot water is approximately 55,000 kWh per year
= Energy efficiency class "D" based on consumption.
Area overview
Garden level:
Room 1:..........13.9 m²
Room 2:.........16.1 m²
Dining-kitchen:.......11.0 m²
Garden room:.. 36.1 m²
Corridor:................12.1 m²
WC/Shower:.......5.4 m²
Sauna/Shower:..8.3 m²
Vestibule:...........4.2 m²
Storage room:.....18.8 m²
Terraces:........49.5 m²
-----------------------
Basement 1:..............6.5 m²
Basement 2:..............6.7 m²
Basement 3:..............9.1 m²
Antechamber (forecourt):........... 6.1 m²
Boiler room:..........5.7 m²
Staircase:..............11.4 m²
Ground floor:
Dining room: 19.5 m²
Living room: 27.4 m²
Room 3:.........13.7 m²
Kitchen:...............12.6 m²
Utility room: 7.5 m²
Hallway:....................9.8 m²
Staircase:..............6.6 m²
Vestibule:..........4.5 m²
Shower:............5.2 m²
WC:....................3.2 m²
Balcony:............24.0 m²
First Floor
Room 4:.........21.1 m²
Room 5:.........10.3 m²
Room 6:.........14.5 m²
Room 7:.........14.2 m²
Hallway:...................16.1 m²
Staircase:..............6.6 m²
Bathroom/Shower:......9.9 m²
WC:.....................3.1 m²
Balcony:...............5.9 m²
Second Floor (fully finished)
Room 8:........18.4 m²
Room 9:........11.2 m²
Hallway:..................6.0 m²
Viewing appointments available on short notice by arrangement.
Sale from private owner to private buyer, commission-free – no agents involved.
The exposé including floor plans, energy certificate, thermography, and a video tour in the cloud is available on request.
Please provide your name, address, and landline number when making inquiries!
Asking price negotiable at 1,650,000€.
Property characteristics
| Age | Over 5050 years |
|---|---|
| Listing ID | 976506 |
| Usable area | 326 m² |
| Total floors | 4 |
| Condition | Good |
|---|---|
| EPC | E - Wasteful |
| Land space | 1,366 m² |
| Price per unit | €5,061 / m2 |
What does this listing have to offer?
| Balcony | |
| Garage | |
| MHD 6 minutes on foot |
| Basement | |
| Parking | |
| Terrace |
What you will find nearby
Still looking for the right one?
Set up a watchdog. You will receive a summary of your customized offers 1 time a day by email. With the Premium profile, you have 5 watchdogs at your fingertips and when something comes up, they notify you immediately.

























