Plot for sale • 1000 m² without real estate, Lower Saxony
- Direct contact: Dieter Büge 01728118000
- For private buyers, commission-free! For commercial buyers – for example, those planning to build a multi-family home (initial rental interests already available) – 3% plus 19% VAT. Your building plot is located in an exclusive new development area in a unique, prime lakefront location!
- These attractive plots (e.g., house number 21) can be purchased INCLUDING a city villa as a finished house – see https://www.allkauf-ausbauhaus.de/de/haeuser/hausserie/city-villa/city-villa-4 – for a total starting at EUR 595,000. Inclusive services for this city villa (base price from EUR 355,999 as a finished house) with 250 m² include: architectural services, construction safety package, heating system and electrical package, triple-glazed windows including aluminum roller shutters, air-to-water heat pump, solid wood staircase, flooring and wallpaper, airtightness testing, clear interior height of 2.75 m, insulation and cladding package, building services including pipework, controlled supply and exhaust ventilation system with heat recovery, sanitary fixtures, interior doors, frames and tiles, and electrical outlets!
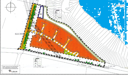
Only a few plots for single-family, semi-detached, and multi-family houses are available. The perhaps most exclusive new development area in Hemmoor with a lake view is only a few minutes by car or bicycle from Hemmoor’s city center (in the Cuxhaven district).
Secure your prime piece today, as no more building areas with a lake view will be designated or approved! The number of plots is limited to 18.
9 available plots for private house construction (see WA 1): from 839 to 1,990 m². Suitable for single and semi-detached houses, one-story (+ additional tier) with a maximum gable height of 8.50 m.
Plots for single and multi-family houses (WA2, WA3) starting at 1,000 m². Gable heights are 10 m (WA2) and 11.50 m (WA3) with 2 or 3 full floors. Floor space index (GFZ): 0.4.
Soon you too will experience the privilege and magic of a breathtaking panoramic view over the crystal-clear Kreidesee—a view you can enjoy as a discerning owner of a luxurious property or as a tenant of an exclusive condominium in the best location!
Build your dream house in Bauhaus style, a city villa, or a semi-detached house on a generously sized plot from 810 to 1,990 m² according to your own ideas, or develop a multi-family building as a developer or investor on a plot from 1,000 m²!
The building plots in first line of lake view may be developed with single, two-family, and semi-detached houses with 1 full floor plus 1 additional tier and a maximum building height of 8.50 m. Meanwhile, the single- and multi-family house plots in the second row may be built up to 2 or 3 stories with heights of 10 m and 11.50 m, respectively.
If you, as a private or commercial land buyer, are looking for a location in a central and peaceful prime lakefront setting, you should arrange a viewing appointment as soon as possible! Only a few plots are available! Note: No further building plots in this lakeside location will be approved.
The contact person for tenants as well as private and commercial buyers is Dieter Büge. He can be reached by phone daily (including Sat./Sun.) from 9:30 a.m. to 8:00 p.m. Phone: 01728118000 or info@win-marketing.de. Website: www.wain-marketing.de.
Sole distributor/contact person: Dieter Büge – Real Estate Agent & Appraiser
WIN-MARKETING, Proprietor Dieter Büge – EXCLUSIVE LAND AND REAL ESTATE MARKETING SINCE 1992!
We look forward to accompanying you from the very start in your search for a building plot, whether you are buying a house or apartment, or renting an apartment to realize your project.
The Kreidesee is located in Lower Saxony, in the Cuxhaven district. The lake is situated in the western part of the town Hemmoor-Warstade. Discover Hemmoor – an idyllic oasis on the western shore of the Oste in the picturesque Cuxhaven district, Lower Saxony! This charming small town, surrounded by pristine nature, offers not only a high quality of life but also the perfect setting for your new home.
Just a stone’s throw from the popular Kreidesee, awaits a plot of about 1,000 m² with a unique panoramic view over the Kreidesee, ideal for nature lovers and leisure enthusiasts. The Kreidesee is not only a popular diving spot but also a place for relaxation and unwinding—here you can let your soul soar and enjoy the beauty of nature.
With approximately 8,700 inhabitants, Hemmoor offers a friendly community and a pleasant living environment. The town is strategically located between Stade and the district town of Cuxhaven, making it the perfect starting point for excursions to the surrounding region.
The center of Hemmoor, only about 3,000 m away, offers you a multitude of shopping opportunities. In the immediate vicinity, you will find doctors, bus stops, a kindergarten, and all school levels. Everything you need for daily life is conveniently and quickly accessible.
The connection to the B73 highway ensures quick access to the cities of Cuxhaven (approx. 45 km), Stade (approx. 30 km), Bremerhaven (approx. 55 km), and Hamburg (approx. 83 km). Hemmoor’s train station is reachable in just 15 minutes by bus or bicycle and offers excellent connections to public transportation.
Take the opportunity to become a part of this charming small town and realize your dream of owning a home in Hemmoor—a place that combines quality of life, nature, and community!
Information in accordance with § 5 TMG
WIN-MARKETING, Proprietor Dieter Büge
Business Division: DBI – DIETER BÜGE IMMOBILIEN
Licensed under § 34c of the Trade Regulation (GewO).
Address:
Süderende 12
D – 21782 Bülkau
Contact D/A/CH:
info(at)win-marketing.de
https://www.win-marketing.de
Phone: 0172/8118000
VAT Identification Number in accordance with §27a of the German Value Added Tax Act: DE204939419.
Dispute Resolution
The European Commission provides a platform for online dispute resolution (ODR): https://ec.europa.eu/consumers/odr.
You can find our email address above in the imprint.
We are not willing or obliged to participate in dispute resolution proceedings before a consumer arbitration board.
Liability for Content
As a service provider, we are responsible for our own content on these pages in accordance with § 7 (1) TMG under general laws. However, according to §§ 8 to 10 TMG, we are not obligated as a service provider to monitor transmitted or stored third-party information or to investigate circumstances that indicate an illegal activity.
Obligations to remove or block the use of information under general laws remain unaffected. Liability in this regard is only possible from the moment of knowledge of a specific legal infringement. Upon becoming aware of such violations, we will promptly remove the relevant content.
Liability for External Links
Our offer contains links to external websites of third parties, over whose content we have no influence. Therefore, we cannot accept any liability for these external contents. The provider or operator of the linked pages is always responsible for the content of those pages. The linked pages were checked for possible legal violations at the time of linking; no illegal content was recognizable then.
However, a permanent control of the content of the linked pages is not reasonable without concrete evidence of a violation. Should any legal violations become known, we will promptly remove such links.
Copyright
The content and works created by the site operators on these pages are subject to German copyright law. Reproduction, processing, distribution, or any form of utilization beyond the limits of copyright law requires the written permission of the respective author or creator. Downloads and copies of these pages are only permitted for private, non-commercial use.
Where the content on this page was not created by the operator, the copyrights of third parties are observed. In particular, third-party content is marked as such. Should you nevertheless become aware of a copyright infringement, please notify us accordingly. Upon becoming aware of legal violations, we will promptly remove the infringing content.
Property characteristics
| Available from | 30/12/2025 |
|---|---|
| Land space | 1,000 m² |
| Listing ID | 976235 |
|---|---|
| Price per unit | €170 / m2 |
What does this listing have to offer?
| MHD 8 minutes on foot |
What you will find nearby
Still looking for the right one?
Set up a watchdog. You will receive a summary of your customized offers 1 time a day by email. With the Premium profile, you have 5 watchdogs at your fingertips and when something comes up, they notify you immediately.


















