House for sale • 300 m² without real estateSlovinská, Brno - Královo Pole, Jihomoravský Region
Slovinská, Brno - Královo Pole, Jihomoravský RegionEquipped • Parking • Cellar 20 m² • Terrace 35.2 m²Investiční příležitost – 4 nové byty v klidné části Brna, Královo Pole
Nabízíme jedinečnou možnost vlastnit všechny čtyři byty v jednom bytovém domě v atraktivní a klidné lokalitě Brno – Královo Pole. Dům je rozdělen prohlášením vlastníka na 4 samostatné bytové jednotky a prošel kompletní rekonstrukcí dokončenou v roce 2024.
Byty byly navrženy s důrazem na moderní bydlení, funkční dispozice a dlouhodobou investiční hodnotu.
⸻
Technické a kvalitativní přednosti domu
• nové vstupní hliníkové dveře, okna mají izolační trojskla
• protipožární a bezpečnostní dveře do bytů
• tepelně izolovaný dům s protihlukovou izolací stěn i podlah
• vytápění tepelným čerpadlem (vzduch–voda)
• podlahové vytápění v celé ploše bytů
• samostatné měření teplé i studené vody, elektroměry a měřiče tepla v každém bytě
• fotovoltaická elektrárna s bateriemi pro celý dům
• výrazně nízké provozní náklady
⸻
Standard bytů
• ideálně přepracované dispozice
• nadstandardní koupelny s velkoformátovou dlažbou, moderní sanitou a pračkami
• teplovodní koupelnový žebřík s elektrickým příhřevem (funkční i v létě)
• kuchyňské linky se spotřebiči
• kompletní vybavení: nábytek, skříně i vstupní šatní skříně
• kombinace dlažby a laminátových podlah
• každý byt má terasu, balkón nebo lodžii
⸻
Exteriér a společné prostory
• za domem tichý vnitroblok s vlastní zahradou
• úklidová místnost ve společných prostorách
• malý sklípek
⸻
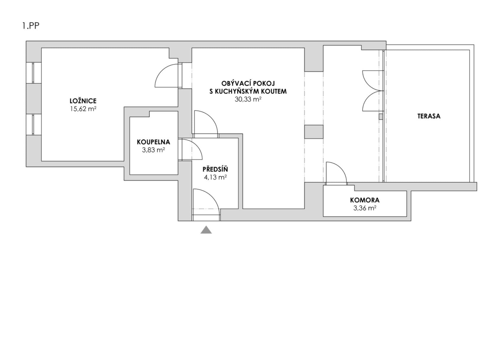
Přehled bytových jednotek
• Byt 01: 57,27 m² + lodžie 15,6 m²
• Byt 02: 60,5 m² + balkón 1,8 m²
• Byt 03: 66,21 m² + terasa 10,66 m²
• Byt 04: 80,58 m² + terasa 7,2 m²
⸻
Shrnutí
Ideální nabídka pro investory hledající stabilní výnos, případně pro zájemce o kombinaci vlastního bydlení a pronájmu. Klidná lokalita, kompletní rekonstrukce, moderní technologie a nízké náklady dělají z této nemovitosti výjimečnou příležitost na brněnském trhu.
Property characteristics
| Available from | 29/12/2025 |
|---|---|
| Building construction | Brick |
| Fully furnished | Fully furnished |
| Low-energy | Yes |
| EPC | C - Economical |
| Usable area | 300 m² |
| Price per unit | CZK 128,085 / m2 |
| Condition | After reconstruction |
|---|---|
| Layout | Other |
| Listing ID | 976200 |
| Ownership | Personal |
| Location of the house | In the block |
| Land space | 198 m² |
What does this listing have to offer?
| Basement: 20 m² | |
| Terrace: 35.2 m² |
| Parking |
What you will find nearby
Still looking for the right one?
Set up a watchdog. You will receive a summary of your customized offers 1 time a day by email. With the Premium profile, you have 5 watchdogs at your fingertips and when something comes up, they notify you immediately.


















