
Flat to rent 2 bedroom • 60 m² without real estateMarie-Deubler-Str. 4 Neuried Bayern 82061
This high-quality 2-room apartment is located in a new development that was completed in July 2022. Bright rooms with upscale fittings, underfloor heating, a spacious balcony, and an integrated fitted kitchen await you on site.
The property is situated in a lively area in Neuried. Several bus lines can be reached on foot. In the immediate vicinity, you will find various restaurants, doctors, supermarkets, and two bakeries. Additionally, there are several parks and green spaces, fitness studios, a fashion store, a dry cleaner, and a library.
Features
+ Large windows create bright spaces
+ All rooms are equipped with underfloor heating
+ Hardwood flooring in the living and bedroom
+ High-quality integrated fitted kitchen
(branded appliances by NEFF, induction hob, dishwasher)
+ Shower room with step-free shower and towel radiator
+ Large, covered balcony of approximately 15 sqm
+ Electrically operated roller shutters on all windows and patio doors
+ Barrier-free passenger elevator from the basement (underground garage) to the top floor
+ The storage room in the basement is constructed with metal/system partition walls and can be locked with the apartment key
+ Each basement unit is equipped with its own electrical outlet
+ Individual parking space in the underground garage
The apartment will be available for occupancy from February 2026.
Property characteristics
| Age | Over 5050 years |
|---|---|
| Layout | 2 bedroom |
| Listing ID | 975616 |
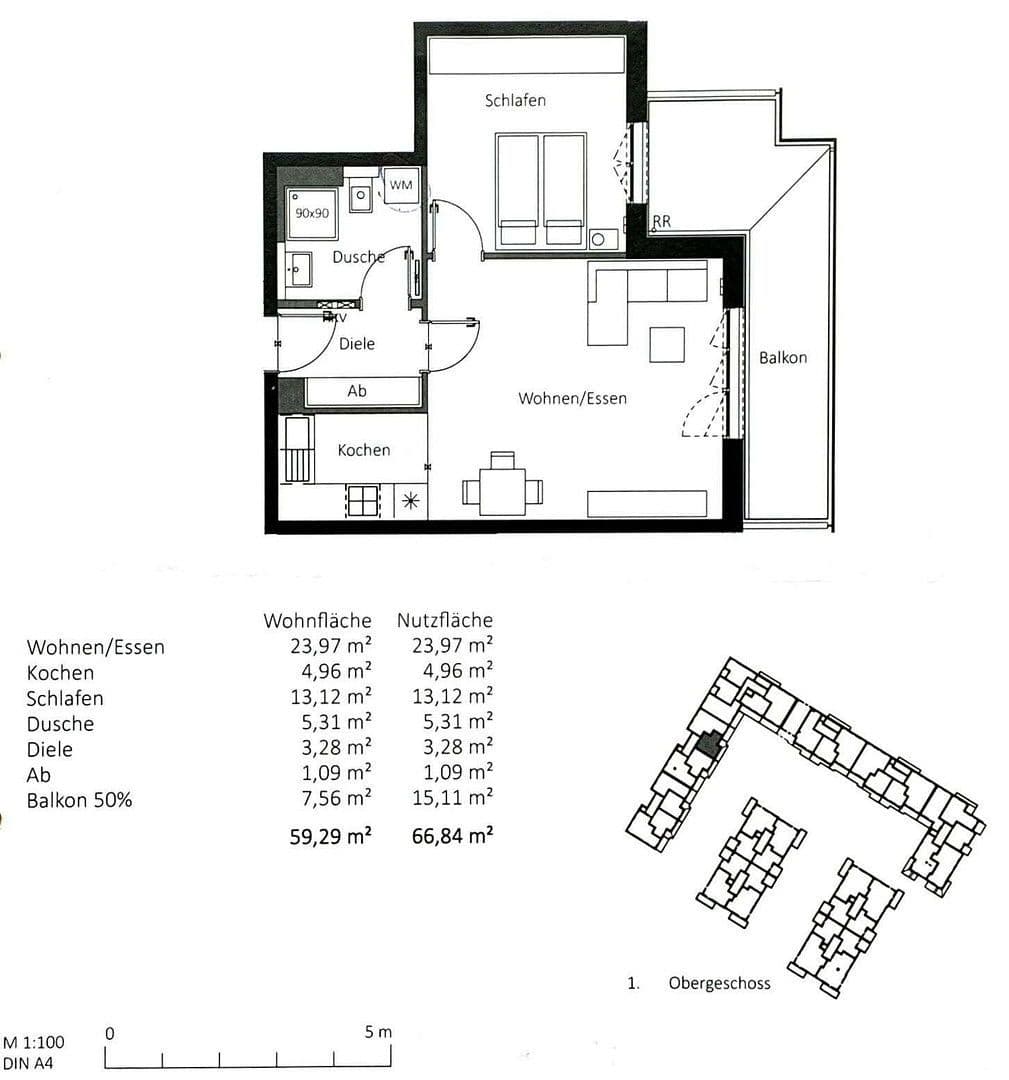
| Usable area | 60 m² |
| Condition | Very good |
|---|---|
| Floor | 1. floor out of 4 |
| EPC | B - Very economical |
| Price per unit | €23 / m2 |
What does this listing have to offer?
| Balcony | |
| Garage | |
| MHD 4 minutes on foot |
| Basement | |
| Lift |
What you will find nearby
Still looking for the right one?
Set up a watchdog. You will receive a summary of your customized offers 1 time a day by email. With the Premium profile, you have 5 watchdogs at your fingertips and when something comes up, they notify you immediately.






























