House for sale 4+1 • 104 m² without real estateGriegweg 23a Geretsried Geretsried Bayern 82538
Griegweg 23a Geretsried Geretsried Bayern 82538Public transport 3 minutes of walking • Parking • GarageFor sale is a partially renovated semi-detached house built in 1970 on a 397 m² plot.
The living area is approximately 104 m² and is spread over the ground floor and the upper floor. Additionally, the attic offers further potential for development. In the basement there is a converted, heated hobby room available.
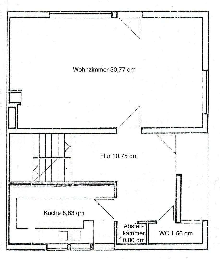
On the ground floor, you will find a living room with oak wood strip parquet, a kitchen, a separate WC, and a storage room. There is direct access to the garden from the living area. The house features two gardens: a front garden as well as a larger garden at the back with approximately 16 m² terrace – ideal for relaxing or family activities.
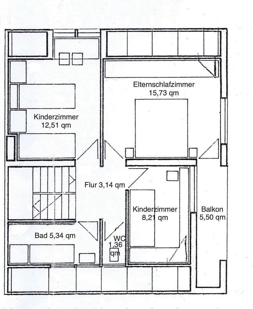
On the upper floor are the master bedroom, two children’s rooms, a bathroom with a bathtub and a separate WC, as well as access to the balcony. The flooring in all the rooms on this floor was renewed in 2018 with vinyl flooring.
The attic currently houses a large room with a window, however, it is not heated yet and offers versatile development possibilities.
In the basement there are, in addition to the boiler, laundry, and storage rooms, a converted, heated hobby room with vinyl flooring and a window (light well), which is currently used as a youth room.
The property includes a garage as well as two additional parking spaces right in front. The garage is in need of renovation, with a purchase price of €10,000.
The property is still occupied by the owner, who wishes to downsize and is aiming for a prompt move after the sale.
Area details:
The living area is approximately 104 m² and includes a proportionally (25%) accounted terrace and balcony.
Additionally, there are about 49 m² of usable space in the basement and approximately 35 m² of usable space in the unheated attic.
In the bedrooms, children’s rooms, and the bathroom, there are partly sloping ceilings.
All area details are based on our own calculation and are provided without guarantee.
The property is located in a quiet residential area in a well-established neighborhood, the so-called “Musicerviertel” in Geretsried, which is known for its family-friendly atmosphere.
Primary schools and secondary schools, kindergartens, a supermarket, a pharmacy, restaurants, a church, as well as a bus stop are within walking distance.
The location is ideal for families with children who appreciate a quiet environment with good infrastructure.
- Majority of the windows were renewed around 2014 (triple glazing)
- Exterior window sills made of granite
- Electric roller shutters in the living room
- Vinyl flooring on the upper floor (2018)
- Fitted kitchen (around 2010)
- Heated hobby room in the basement with window (light well)
- Attic with potential for development (currently unheated)
- Terrace as well as several garden areas
Property characteristics
| Age | Over 5050 years |
|---|---|
| Layout | 4+1 |
| EPC | G - Extremely uneconomical |
| Land space | 397 m² |
| Price per unit | €7,202 / m2 |
| Condition | Before reconstruction |
|---|---|
| Listing ID | 975413 |
| Usable area | 104 m² |
| Total floors | 4 |
What does this listing have to offer?
| Balcony | |
| Garage | |
| MHD 3 minutes on foot |
| Basement | |
| Parking | |
| Terrace |
What you will find nearby
Still looking for the right one?
Set up a watchdog. You will receive a summary of your customized offers 1 time a day by email. With the Premium profile, you have 5 watchdogs at your fingertips and when something comes up, they notify you immediately.













