
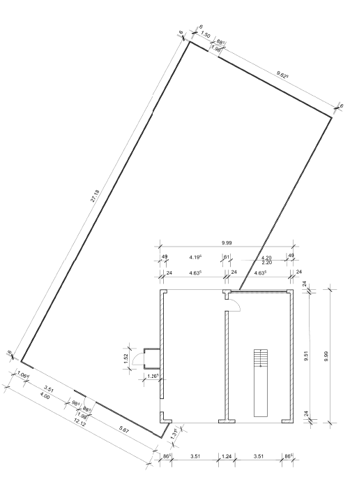
Commercial property to rent • 370 m² without real estateDieselstr. 9, , North Rhine-Westphalia
Dieselstr. 9, , North Rhine-WestphaliaPublic transport 4 minutes of walking370 sqm storage hall with extension and heating
This well-maintained and welcoming hall is in excellent overall condition.
Versatile commercial space with optimal transport connections to the highway, offering flexible uses for storage or production.
The areas can, if agreed, be available for immediate use.
Large sectional doors, 4m in height, allow for hassle-free storage and maneuvering of vehicles inside the halls.
Additionally, there is a nearly new gas heating system with infrared heaters as well as a toilet with a washbasin to ensure your work comfort.
Contact us for more information or to schedule a viewing!
Electrical supply 100 kW
Even self-operated shift work would be possible due to the location.
Security deposit amounts to 3 months' rent
Rental is commission-free from the owner
Video at https://youtu.be/oI522CSjrEY
Additional costs are settled annually
We look forward to scheduling a viewing appointment with you.
Commercial rental only!
We require a self-disclosure!
A corresponding liability insurance is, of course, a prerequisite for signing a lease agreement.
Security deposit 3 months' rent
optimal transport connections to the highway
Video at https://youtu.be/oI522CSjrEY
Property characteristics
| Age | Over 5050 years |
|---|---|
| Condition | Good |
| Land non-residential space | 370 m² |
| Price per unit | €5 / m2 |
| Available from | 23/12/2025 |
|---|---|
| Listing ID | 975263 |
| Land space | 2,335 m² |
What does this listing have to offer?
| MHD 4 minutes on foot |
What you will find nearby
Still looking for the right one?
Set up a watchdog. You will receive a summary of your customized offers 1 time a day by email. With the Premium profile, you have 5 watchdogs at your fingertips and when something comes up, they notify you immediately.







