Flat to rent 2+kk • 59 m² without real estateWeiden i.d.OPf. Rothenstadt Bayern 92637
Bright, friendly 2.5-room ground floor apartment in a small two-family house
– Car parking space (60€ per month)
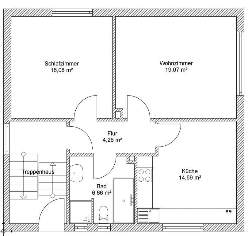
– Well-designed rooms
– Partially renovated daylight bathroom with bathtub, shower, sink, and toilet
– Laminate floors with a wood look
– Open-plan kitchen with a kitchenette and high-quality appliances
– Tenant’s basement storage
– Equipment/storage room
– Washing machine connection in the basement
– All walls and ceilings are painted in neutral white
Non-smokers are preferred. Pets are not permitted.
See for yourself on-site and schedule a viewing appointment.
The apartment is located in Weiden-Rothenstadt, a district of Weiden in the Upper Palatinate, and boasts an excellent transport location. You can quickly reach the highway and public transportation. Additionally, the nearby shopping facilities in Rothenstadt and the good bus connection to Weiden contribute to the attractive location of this apartment.
The heating in the rooms is provided by an energy-saving and cost-effective split air conditioning system (heat pump). In summer, it can also be used for cooling. The bathroom features an instantaneous water heater and a fan heater for quick, pleasant warmth.
The apartment is suitable for a single person or a couple who enjoy taking care of the garden. Thanks to the large garden, the apartment offers the advantages of a detached location. The owners of the house will not be regularly on site on the upper floor, so you can enjoy the peace and the feeling of living in a single-family home.
Property characteristics
| Age | Over 5050 years |
|---|---|
| Layout | 2+kk |
| Usable area | 59 m² |
| Condition | After reconstruction |
|---|---|
| Listing ID | 975246 |
| Price per unit | €8 / m2 |
What does this listing have to offer?
| Basement | |
| MHD 1 minute on foot |
| Parking |
What you will find nearby
Still looking for the right one?
Set up a watchdog. You will receive a summary of your customized offers 1 time a day by email. With the Premium profile, you have 5 watchdogs at your fingertips and when something comes up, they notify you immediately.













