House for sale • 1955 m² without real estate, Lower Saxony
Attractive Income Property: Residential and Commercial Building with Additional Property & PV Yields
Property Type:
Residential and commercial building (income property)
Year Built: 1970
Plot Area: approx. 2,072 m²
Total Area: approx. 2,045.83 m²
Property Description:
The offered property is a well-maintained residential and commercial building that has been extensively renovated in recent years, featuring a stable tenant structure and attractive returns. The building is predominantly used for commercial purposes and also includes two spacious apartments on the 2nd upper floor.
The current annual net rent amounts to approximately €169,000.
A photovoltaic system (23 kWp) is installed on the flat roof, which will continue to generate feed-in tariffs for around 10 more years, earning annual revenues of approximately €5,000.
Tenant Structure (Excerpt):
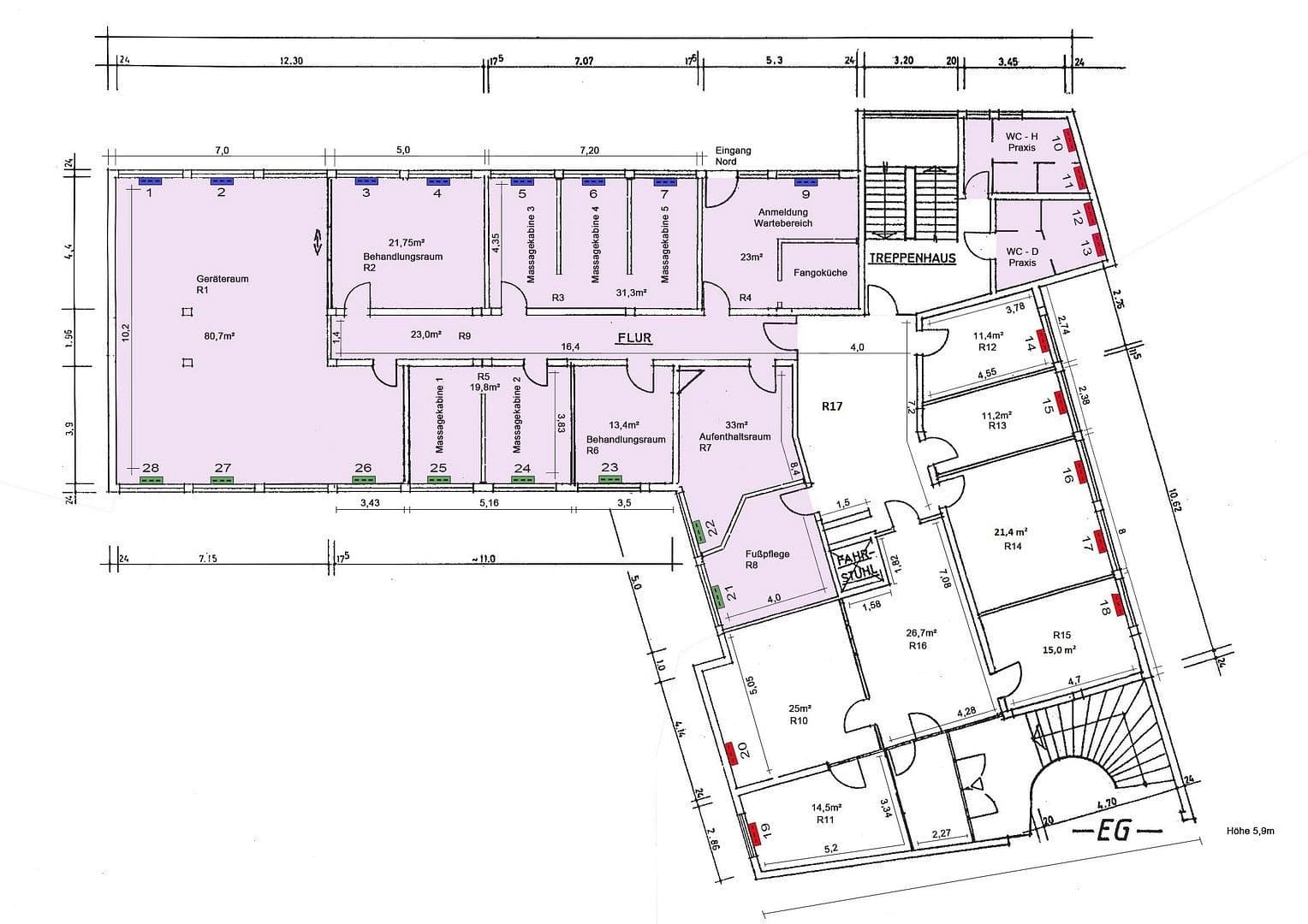
The offices and commercial spaces are spread out over several floors. The rented units range in size from approximately 10 m² to 250 m².
Current occupants include, among others:
• Arcade (basement)
• Insurance office
• Naturopath
• Educational institution
• Fleet management company
• Physiotherapist
• Travel agency
• Psychologist
• Legal guardianship
• Online shops
• Additional office uses
Apartments:
On the 2nd upper floor, there are two residential units:
• Apartment 1: approx. 156 m²
• Apartment 2: approx. 185 m² with a large balcony
Features:
• Approximately 30 parking spaces directly in front of the building
• Separate toilets on each floor
• Pantries
• IT cabling
• Passenger elevator (currently out of service)
• High ceilings (at least 3 m)
• Basic lighting
• Secure high-speed internet connection (100 Mbit/s downstream / 40 Mbit/s upstream)
• Fiber-optic connection (Telekom) available from summer 2026
Additional Property Included in the Package:
Additionally, a 3-family house is offered, located only about 100 m away (on the same street).
Key Data:
• Living area: approx. 187 m²
• 2 gardens
• Separate entrance for the ground floor apartment with exclusive garden use
• Recently completed renovation:
- New gas heating system
- New electrical installation
• Current annual net rent: approx. €15,120
The town of Uslar is conveniently located on the B241.
The A7 motorway (exit Nörten-Hardenberg) is reachable in about 20 minutes.
Shopping facilities and public transportation are within walking distance.
Schools, kindergartens, doctors, and authorities are available on site.
Göttingen is approx. 37 km away.
Northeim is approx. 36 km away.
Excellent regional and supraregional connectivity.
An attractive overall package for capital investors:
• High and stable rental income
• Good tenant structure
• Additional yield through the PV system
• Further development potential
• Additional property in close proximity
Property characteristics
| Age | Over 5050 years |
|---|---|
| Listing ID | 975003 |
| Land space | 2,072 m² |
| Price per unit | €844 / m2 |
| Condition | After reconstruction |
|---|---|
| Usable area | 1,955 m² |
| Total floors | 2 |
What does this listing have to offer?
| Balcony | |
| MHD 2 minutes on foot |
| Wheelchair accessible |
What you will find nearby
Still looking for the right one?
Set up a watchdog. You will receive a summary of your customized offers 1 time a day by email. With the Premium profile, you have 5 watchdogs at your fingertips and when something comes up, they notify you immediately.







































