
Flat to rent 2+kk • 62 m² without real estate, North Rhine-Westphalia
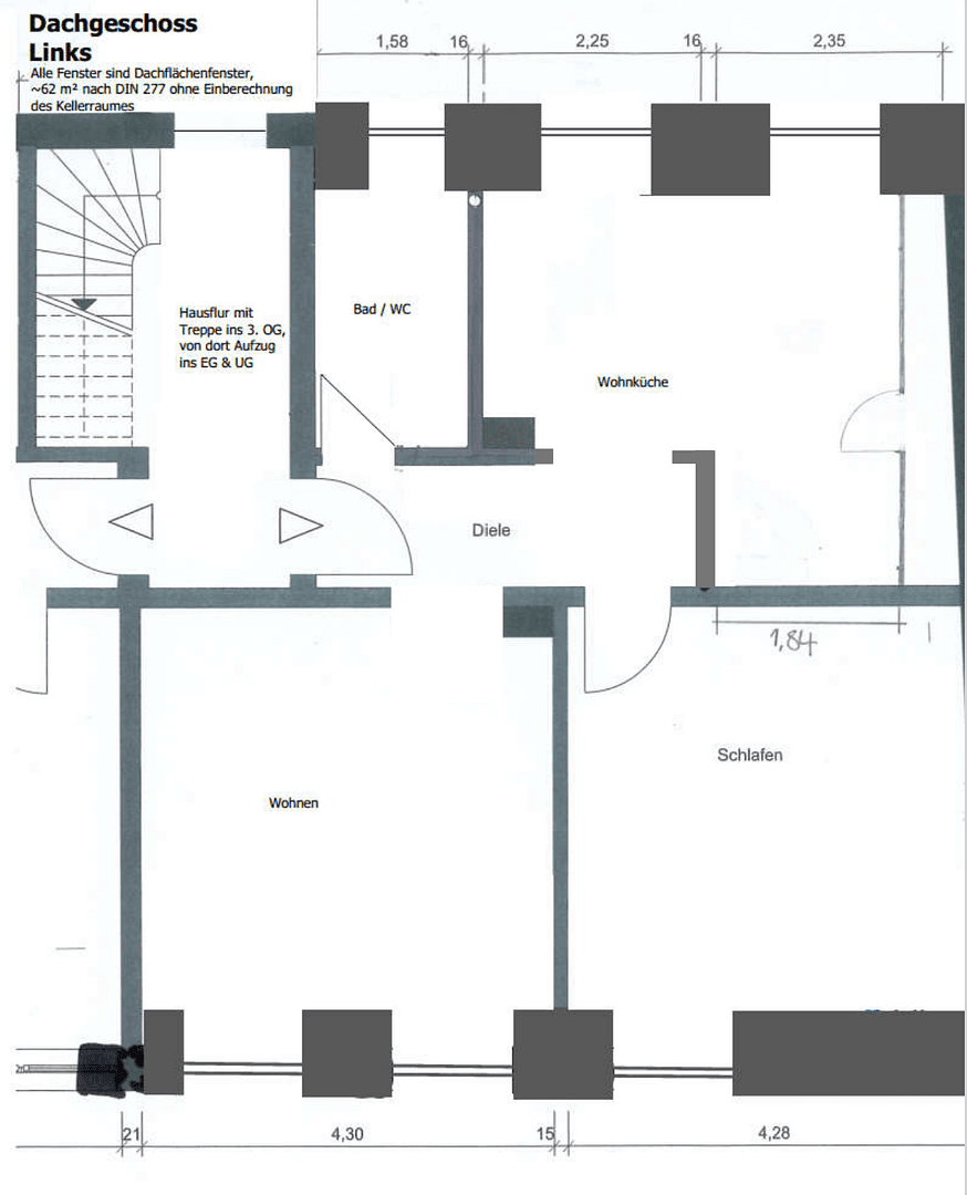
This charming, sunlit top-floor apartment in the heart of the city impresses with its living comfort and central location – 2 rooms, a shower room, and a kitchen-living area arranged beautifully on the top floor.
Fully renovated just a few years ago and in very well-maintained condition, this residence allows you to truly enjoy life. The bright kitchen-living area provides ample space for cooking and dining, for example, while enjoying breakfast with a view over the rooftops of the city. The fitted kitchen can be taken over for a negotiable price.
The modern shower room is designed in a light, high-quality style. The bright living room offers a retreat for relaxed evenings. The separate bedroom provides plenty of space for quiet and relaxation, and there is room for a large wardrobe.
Practical features include a storage room within the apartment and an additional cellar locker – plenty of storage space!
Whether as a single apartment, a couple’s home, or a city refuge, this property provides you with a comfortable home right in the midst of city life.
The apartment is located on the top floor (4th floor). You can reach the third floor by lift, and from there, a charming wooden staircase leads up to the quiet top floor, your new cozy nest.
Please note: the apartment is not suitable for a shared flat (WG).
Directly in the city center of Heiligenhaus at Rathausplatz. You can reach daily necessities within a 5-minute walk: 3 supermarkets, drugstores, pharmacies, doctors, clothing stores, a savings bank, cafés, restaurants, etc. For recreation, the panoramic trail and the valleys and hills around the city are just a 5-minute bike ride away. By bicycle, you can reach the surrounding towns in just a few minutes – about 15 minutes to Kettwig or Hösel, and 10 minutes to Velbert.
For commuters and city explorers: right in front of the house, the bus stop provides connections to the surrounding area, the express bus to/from Essen, and the Hösel S-Bahn station (S6).
Right in front of the house, you can stroll at the weekly market on Wednesdays and Saturdays, or visit the evening market for a glass of wine on the first Thursday of each month. Every event in the city is just a stone’s throw away.
Thanks to its top-floor location, you can still enjoy peace and quiet, whenever you wish.
The apartment was completely renovated in 2020. The bathroom, floors, doors, and roof windows are new. High-quality laminate flooring has been installed throughout the apartment, and the bathroom features white tiling with plenty of storage options. The fitted kitchen is 3 years old and can be taken over from the previous tenant by agreement, including the stove, oven, extractor fan, and the possibility to install a dishwasher. A storage room within the apartment and a cellar locker offer plenty of storage space. There is no balcony.
The multi-family house is very well maintained and has also been renovated. The lift and central heating are new.
Property characteristics
| Age | Over 5050 years |
|---|---|
| Condition | After reconstruction |
| Floor | 4. floor out of 1 |
| EPC | C - Economical |
| Price per unit | €10 / m2 |
| Available from | 01/02/2026 |
|---|---|
| Layout | 2+kk |
| Listing ID | 974878 |
| Usable area | 62 m² |
What does this listing have to offer?
| Basement | |
| MHD 1 minute on foot |
| Lift |
What you will find nearby
Still looking for the right one?
Set up a watchdog. You will receive a summary of your customized offers 1 time a day by email. With the Premium profile, you have 5 watchdogs at your fingertips and when something comes up, they notify you immediately.






















