House to rent 6+1 • 180 m² without real estate, Lower Saxony
This completely renovated single-family house offers approximately 180 m² of living space, 6 rooms, and 3 modern bathrooms—ideal conditions for families who wish to live long-term in a quiet, energy-efficient environment. The property combines the solid structure of a house built in 1960 with contemporary technology and high-quality equipment—move in and feel at home without the need for renovations.
The spacious living and dining area with its parquet flooring forms the heart of the house and provides plenty of space for family life. Large windows ensure a bright, welcoming atmosphere. The approximately 800 m² plot, featuring a well-maintained garden and a large, covered terrace, invites you to relax, play, and linger.
⸻
Features & Highlights
- New district heating system – efficient & environmentally friendly
- Insulated roof (southwest side) with PV system – self-consumption of generated power
- Complete renewal of electrical wiring and water pipes
- Double-glazed windows with electric external roller shutters (app-controlled)
- Fiber-optic connection and Cat-7 network in nearly all rooms
- 3 modern, renovated bathrooms, including:
• Main bathroom with underfloor heating, barrier-free shower, and bathtub
- Parquet floors in the living and dining area
- High-quality laminate flooring in the other living areas
- Large, covered terrace overlooking the garden
- Garage with an electric door and an additional carport
⸻
Basement / Utility Area
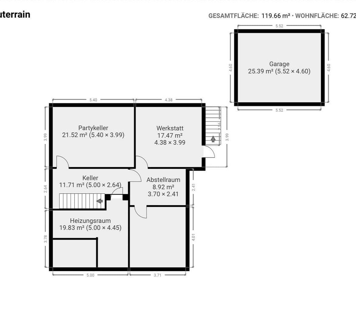
The approximately 70 m² basement offers versatile usage possibilities:
• Party or hobby room with an integrated bar
• Workshop
• Utility room
• Additional storage and storage rooms
The property is located in a quiet, family-friendly area in 31637 Rodewald:
- Kindergarten and primary school right in the village
- Shopping facilities and a gas station approximately 800 meters away
- Very good transport connections – the A7 motorway can be reached in about 20 minutes
The location is ideal for families and commuters who want to live close to nature while still being well connected. The house impresses with its thoughtful renovation, modern building technology, and generous layout. Thanks to district heating, a PV system, and updated infrastructure, the property is future-proof. If desired, the garage can be rented separately; it is not included in the rental price.
Please send us a brief introduction of yourself and information about your employment situation with your inquiry. Thank you.
The property is currently under construction and will be ready for occupancy at the beginning of 2026.
Property characteristics
| Age | Over 5050 years |
|---|---|
| Condition | After reconstruction |
| Listing ID | 974827 |
| Land space | 800 m² |
| Price per unit | €9 / m2 |
| Available from | 01/02/2026 |
|---|---|
| Layout | 6+1 |
| Usable area | 180 m² |
| Total floors | 2 |
What does this listing have to offer?
| Basement | |
| Parking | |
| Terrace |
| Garage | |
| MHD 2 minutes on foot |
What you will find nearby
Still looking for the right one?
Set up a watchdog. You will receive a summary of your customized offers 1 time a day by email. With the Premium profile, you have 5 watchdogs at your fingertips and when something comes up, they notify you immediately.


















