Flat for sale 3+1 • 97 m² without real estateOldenburg Oldenburg (Oldb) Niedersachsen 26135
Oldenburg Oldenburg (Oldb) Niedersachsen 26135Public transport 1 minute of walking • ParkingThis modern apartment from 2016 is located in Oldenburg-Osternburg within the inner ring of highways and impresses with its quiet location within the multi-family building as well as its clear and modern layout.
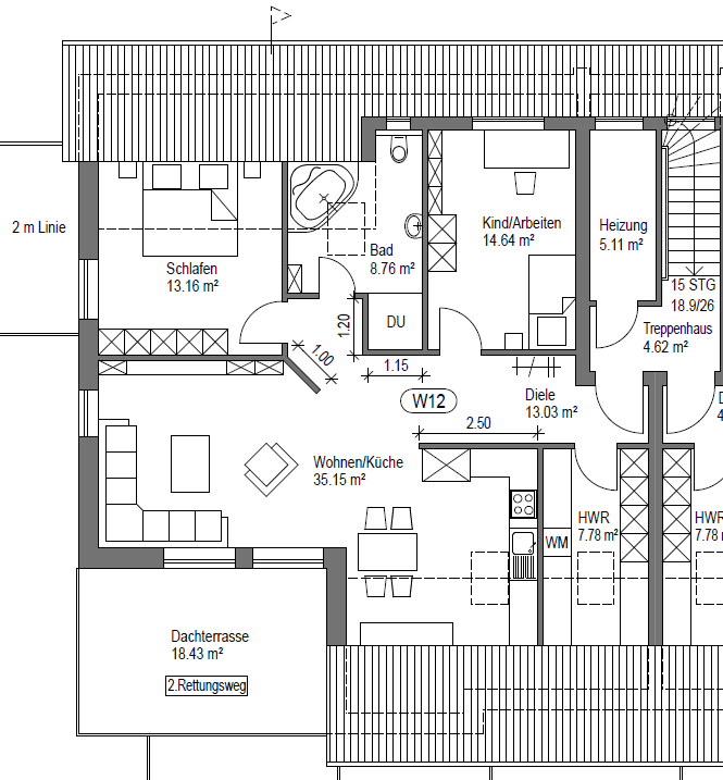
Once you have closed the door from the stairway behind you, you enter your own realm with approximately 97 m² of living space. You won’t notice any trace of the other parties in the building and via the large entrance hall you reach the spacious storage room, the bedroom/office and finally you arrive in the living and dining area. The open and bright living and dining area leaves nothing to be desired. The large, high-quality kitchen invites you to cook, and from the living room you can step out onto the roof terrace with a view over the neighborhood. Through the connecting corridor, you can access both the additional room and the modern daylight bathroom complete with a bathtub and a window offering a view of the starry sky.
The apartment impresses with its very well-maintained condition, a clear layout, a dedicated parking space for your car behind the building, an expansive attic covering the entire apartment area, and a fantastic roof terrace for those warm days of the year. With the installed smart home system, you can control sockets, lights, and heating via an app if necessary, adding an extra touch of luxury.
The city center is within walking distance or can be reached by bicycle, and a bus stop is located right outside the door.
Ideal for anyone who wants to live close to the city and flexibly.
Contact us now for a viewing of your future, well-maintained and modern apartment with a large roof terrace, plenty of storage space, and excellent connectivity – ideal for couples, small families or home office users who wish to live in an urban environment.
The property is located in Oldenburg-Osternburg, a traditional and vibrant district in the southeast of the university town Oldenburg (Oldb) in Lower Saxony. Osternburg is one of the older, established residential areas in the city and is characterized by a diverse mix of residential and usage types that includes both classic housing as well as commercial and service uses.
Bremer Heerstraße is one of the district’s major traffic arteries and provides a direct connection to important destinations in Oldenburg and the surrounding area. Along the street, you will find various retail and service offerings, craft businesses as well as gastronomy and supply services – ideal for everyday local provision and urban living.
Thanks to the central location in the district, numerous facilities are quickly reachable on foot or by bicycle:
• Grocery stores, bakeries, and shops in the immediate residential environment,
• Public transport connections provided by several bus routes with services to the city center and other districts,
• Kindergartens, schools, and recreational facilities within a short distance.
Oldenburg’s city center is only a few minutes away and offers an extensive range of cultural, gastronomic, and economic opportunities. The proximity to the main roads ensures excellent accessibility by car.
• Modern equipment and great flooring
• Thoughtful floor plan
• High-quality built-in kitchen with premium appliances
• Smart-home installation
• Fiber-optic & VDSL connection
• 3 well-proportioned rooms
• Large roof terrace with plenty of space to relax
• Exclusive attic covering the entire apartment
• Modern fitted kitchen
• Daylight bathroom with bathtub
• Separate utility room with a large roof window
• Parking space included in the purchase price
• Covered, lockable bicycle storage (shared)
Property characteristics
| Age | Over 5050 years |
|---|---|
| Condition | Very good |
| Floor | 2. floor out of 1 |
| Usable area | 97 m² |
| Available from | 15/04/2026 |
|---|---|
| Layout | 3+1 |
| Listing ID | 974674 |
| Price per unit | €4,320 / m2 |
What does this listing have to offer?
| Parking |
| MHD 1 minute on foot |
What you will find nearby
Still looking for the right one?
Set up a watchdog. You will receive a summary of your customized offers 1 time a day by email. With the Premium profile, you have 5 watchdogs at your fingertips and when something comes up, they notify you immediately.













