
House for sale 5+1 • 117 m² without real estateZiegelhüttestr. 18/2, , Baden-Württemberg
Private sale directly from the owner – which means no buyer’s commission
Note: The property has been rented since February 2025 for a cold rent of €1,800.00. The lease is indefinite and currently subject to the statutory three-month notice period. This makes the property attractive both as a long-term investment and for personal use.
Description:
This modern semi-detached house is located in a quiet dead-end street in the popular Reutlingen district of Gönningen – an area highly sought after by families as well as tenants. Here, safety, community, and living close to nature blend with excellent infrastructure. A kindergarten, primary school, playgrounds, doctors, a pharmacy, supermarket, bakery, butcher, as well as an active club and cultural life are available on site. Reutlingen’s city center is reachable within minutes, along with workplaces, schools, and recreational facilities. The proximity to the Swabian Alb additionally offers a high recreational value.
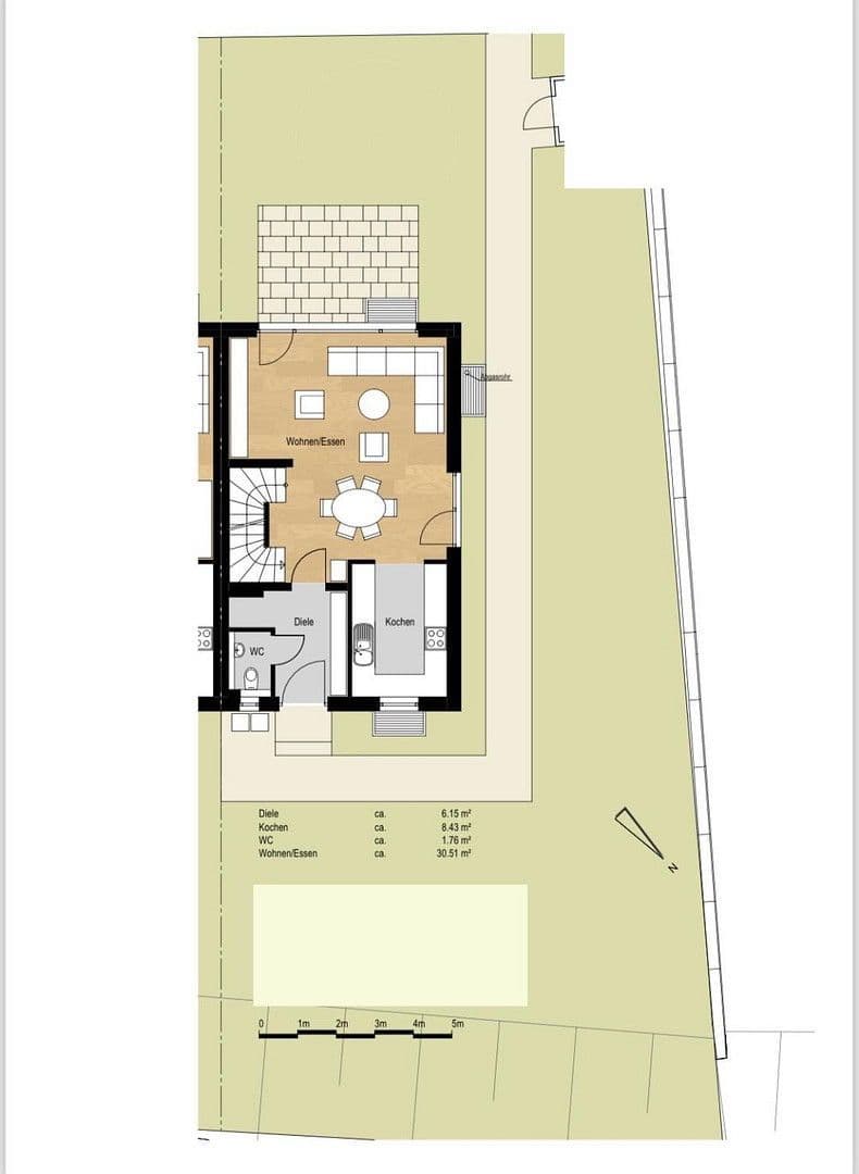
The bright semi-detached house was built in 2019 using high-quality solid construction and is in a nearly new, very well-maintained condition. Its south-west orientation ensures light-filled rooms and sunshine well into the evening. The modern, family-friendly floor plan offers generous living spaces as well as ample opportunities for retreat. Large windows with electric shutters and blinds guarantee high living comfort and a pleasant room climate.
All work on the house was carried out by renowned local craftsmen – a quality standard reflected throughout the property. For buyers, this is a stable asset with modern features that, in the long term, appeals for both letting and personal use.
- Quiet dead-end location
- Nearly new & modern – no renovation required
- Construction and finishing by local craftsmen
- South-west orientation – bright living rooms well into the evening
- Fenced garden – ideal for children & pets
- Finished studio room in the attic
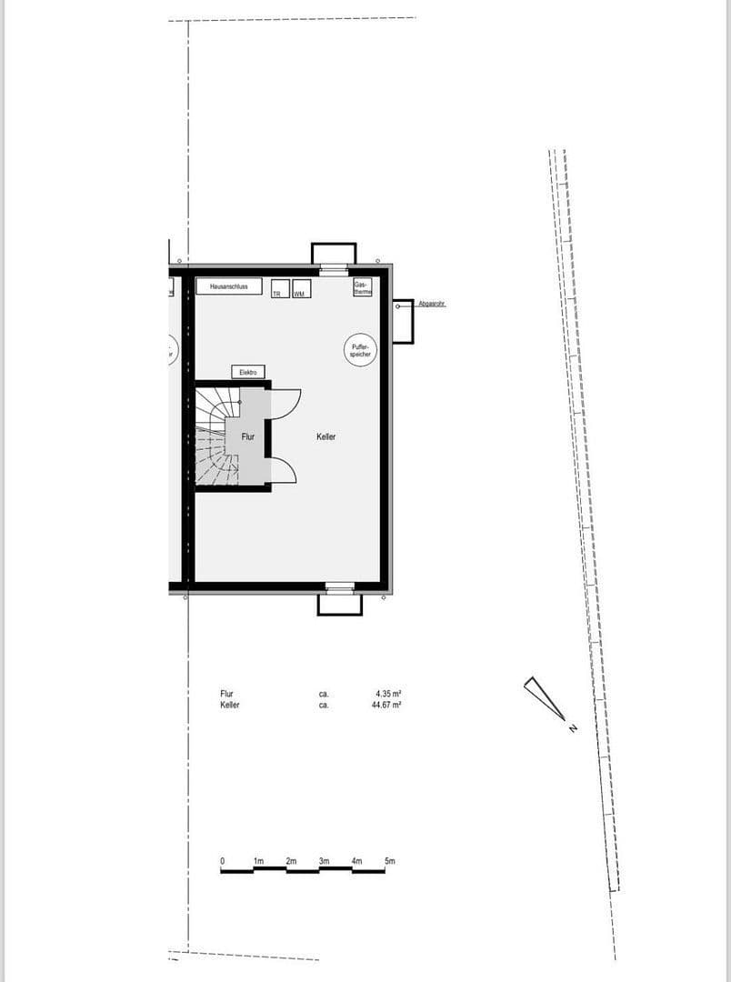
- Fully basemented (approx. 49 m² of usable space)
- High-quality Nobilia kitchen with Neff built-in appliances
- Real wood parquet flooring in the living areas
- Premium ceramic tiles in the kitchen, bathroom, WC, and hallways
- Photovoltaic & solar – sustainable and future-proof
- Fiber-optic connection – optimal for home office & streaming
- Electric shutters and blinds
- Paved terrace with an oversized awning
- Spacious garden shed with power connection
- Water de-scaling system
A detailed exposé as well as a 360-degree tour are available upon serious inquiry.
Contact also via 0176-81274038.
Property characteristics
| Age | Over 5050 years |
|---|---|
| Layout | 5+1 |
| EPC | A - Extremely economical |
| Land space | 341 m² |
| Price per unit | €5,291 / m2 |
| Condition | Very good |
|---|---|
| Listing ID | 974586 |
| Usable area | 117 m² |
| Total floors | 3 |
What does this listing have to offer?
| Basement | |
| MHD 2 minutes on foot |
| Garage | |
| Terrace |
What you will find nearby
Still looking for the right one?
Set up a watchdog. You will receive a summary of your customized offers 1 time a day by email. With the Premium profile, you have 5 watchdogs at your fingertips and when something comes up, they notify you immediately.

















