
Office to rent • 160 m² without real estateMaximilian Str. 4, , Hesse
Maximilian Str. 4, , HessePublic transport 3 minutes of walking • LiftHigh-quality practice and office spaces in a prestigious location – New tenant sought
In the carefully revitalized former Idstein Leather Factory, now an exclusive ensemble of loft apartments and modern office spaces, we are looking for a new tenant for high-quality practice and office rooms.
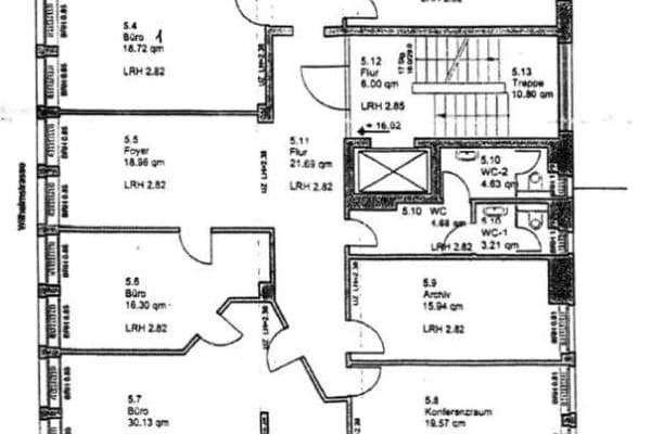
The quiet, separately usable units, ranging in size from approximately 8.5 m² to 25 m², are located on the 2nd floor and are ideally suited for therapists, health professionals, coaches, or sophisticated office usage. The spaces are currently part of an established osteopathy practice and provide optimal conditions both for additional therapists and for independent use.
There is a plan for the joint use of the stylishly designed practice areas as well as the restrooms on this floor. The entire floor was renovated to a high standard in 2017 and impresses with a modern, timeless design:
1. Elegant epoxy resin flooring
2. Underfloor heating
3. Bright, calm working atmosphere in a prestigious environment
Optionally, it is possible to take over the existing practice entirely, which allows for a seamless entry or an expansion of one’s own offerings.
Idstein impresses with its charming, tranquil location in the Taunus region combined with excellent transport connections.
The town is directly adjacent to the A3 motorway junction, allowing for quick access to the surrounding metropolitan areas.
As a central town in the region, Idstein offers excellent infrastructure with a town hall, kindergartens, bakeries, supermarkets, a post office, pharmacies, as well as medical and dental services.
This combination of a natural environment and urban amenities makes the location particularly attractive – both for practice owners and for their patients or clients.
The existing practice equipment (including reception desk, treatment couches, and other practice-relevant inventory) is available for partial or complete takeover upon agreement.
There is the option to rent the entire practice or, as part of a partial rental, to lease individual rooms. The available individual rooms offer areas starting at approximately 16 square meters and provide flexible usage possibilities.
Property characteristics
| Age | Over 5050 years |
|---|---|
| Condition | Very good |
| Listing ID | 974513 |
| Price per unit | €0 / m2 |
| Available from | 19/12/2025 |
|---|---|
| Floor | 2. floor out of 4 |
| Land office | 160 m² |
What does this listing have to offer?
| Balcony | |
| MHD 3 minutes on foot |
| Lift |
What you will find nearby
Still looking for the right one?
Set up a watchdog. You will receive a summary of your customized offers 1 time a day by email. With the Premium profile, you have 5 watchdogs at your fingertips and when something comes up, they notify you immediately.










