
Office to rent • 380 m² without real estateWilhelmstraße 78, , Baden-Württemberg
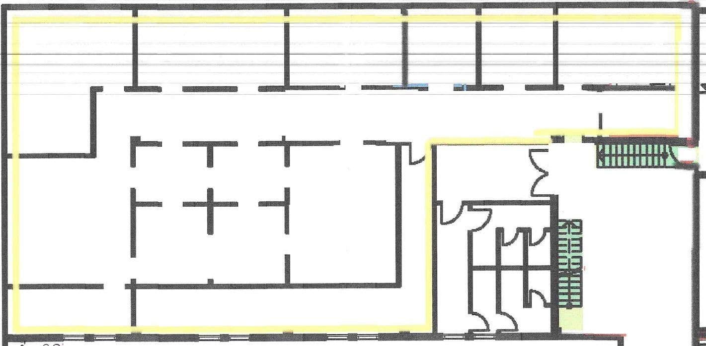
Wilhelmstraße 78, , Baden-WürttembergPublic transport 7 minutes of walkingThis versatile commercial space on the first floor of a well-maintained residential and commercial building offers approximately 380 m² of generous space, providing an excellent base for modern work, presentation, fitness, or training concepts, among other uses.
The open, elongated basic structure is also ideal for companies that require large, contiguous areas – for example, for showrooms, training rooms, open-plan offices, creative or practice spaces.
Numerous windows ensure that the space is bright and flooded with light, offering plenty of scope for customized layouts, work islands, or presentation areas. Several separate rooms as well as sanitary facilities and a bistro area (which can be dismantled upon request) complete the offer.
The property is in good condition and can be handed over partially refurbished or renovated, by agreement. This opens up many possibilities to tailor the property exactly to your usage concept.
The property is located in a well-developed area in Reilingen. The location offers good transportation connections, situated right between the A5 (6 km, 7 minutes) and A6 (11 km, 10 minutes), and is easily accessible by car and public transport. Numerous shops, service providers, and dining options can be found in the vicinity.
• Variable usage possibilities and generous, open spatial structure – ideal, for example, for showrooms, offices, training, practice, studios, or agencies, as well as for presentation areas, modern work environments, and even small storage areas
• Flexible room design: On request, partition walls can be altered or added
• Parking: Outdoor parking spaces & underground parking spaces available upon request
• Sanitary facilities available
PUBLISHER
SPGI Grundstücks GmbH
Wilhelmstraße 78
68799 Reilingen
Phone +49 (0)6205 977496
Fax +49 (0)6205 977468
spgi@schaumaplast.de
Information in accordance with § 5 DDG (Law on the Use of Telemedia)
Managing Directors: Bernhard Hauck, Markus Hoffmann
The company is based in Reilingen.
Registered at the Mannheim District Court HRB 753795
Value Added Tax Identification Number: DE 453291862
Property characteristics
| Age | Over 5050 years |
|---|---|
| Condition | Good |
| Listing ID | 974457 |
| Price per unit | €0 / m2 |
| Available from | 19/12/2025 |
|---|---|
| Floor | 1. floor |
| Land office | 380 m² |
What does this listing have to offer?
| MHD 7 minutes on foot |
What you will find nearby
Still looking for the right one?
Set up a watchdog. You will receive a summary of your customized offers 1 time a day by email. With the Premium profile, you have 5 watchdogs at your fingertips and when something comes up, they notify you immediately.













