
Flat to rent 3+1 • 105 m² without real estateRegattastr 51e Berlin Grünau Berlin 12527
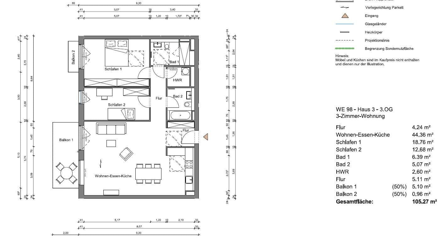
Experience residential comfort at the highest level in this almost new 3-room apartment on the 3rd floor of a modern multi-family house in Berlin-Grünau. The luxuriously equipped apartment with approximately 105 m² of living space was built in 2023. It features two bathrooms, a high-quality fitted kitchen (option available against a transfer payment), and a balcony that invites you to relax. An elevator facilitates access to all floors, and a cellar provides additional storage space. A private garage parking space rounds off the offer. The apartment will be available from 01.05.2026. Unfortunately, pets are not permitted.
The Wohnquartier 52° Grad Nord has been gradually constructed since 2016, with numerous new residential buildings erected. It impresses with its exceptional location right along the Dahme and its own private waterside area. You can look forward to breathtaking architecture combined with a high level of living quality and attention to detail. You will be able to fully enjoy the water setting and the view of the Dahme. The Wohnquartier 52° Grad, right on the bank of the Dahme, offers numerous spots to unwind: enjoy a cappuccino at the neighborhood café or sit directly by the Dahme.
The offered apartment is located in the Grünau district (Treptow-Köpenick) in Berlin. Grünau is characterized by a moderate population density and a good mix of young families and older residents. Public transportation is excellent, with the S-Bahn line S8 and bus lines 160 and 164 ensuring quick access to the city center and surrounding areas. The neighborhood is considered safe and offers a pleasant, quiet atmosphere that is especially attractive to young families and working professionals.
• 2 balconies
• Ceiling height 2.80 m
• Designer carpenter/fitted kitchen option
• Various built-in cabinets installed by the carpenter – option
• Built-in cabinets can be acquired against a transfer payment
• Parquet flooring
• Underfloor heating
• Storage room
• Guest WC/shower
• Bathtub bathroom with shower
• Basement
• Floor-to-ceiling windows
All information has been carefully verified, but it is based on third-party statements.
Required documents:
• PA copy
• Pay slips and/or BWA
• Current Schufa report
• Certificate of rent arrears clearance from the previous landlord
Have we piqued your interest?
Responsible for the content:
ImmoNova Berlin
Teichmummelring 33
12527 Berlin
Represented by:
Mr. Ronny Stropahl
Contact:
Email: info@immonovaberlin.de
Tax number: 18/550/01788
Business license according to §34c GewO:
The competent supervisory authority according to §34c GewO is the
Tempelhof-Schöneberg District Office of Berlin
Tempelhofer Damm 165
12099 Berlin
Note:
The EU Commission offers the possibility of online dispute resolution on a platform it operates. This platform can be accessed via the external link http://ec.europa.eu/consumers/odr/. We are not obliged to participate in a conciliation procedure and, unfortunately, cannot offer participation in such a procedure.
Property characteristics
| Age | Over 5050 years |
|---|---|
| Condition | Very good |
| Floor | 3. floor out of 3 |
| EPC | B - Very economical |
| Price per unit | €20 / m2 |
| Available from | 01/05/2026 |
|---|---|
| Layout | 3+1 |
| Listing ID | 974456 |
| Usable area | 105 m² |
What does this listing have to offer?
| Balcony | |
| Garage | |
| MHD 4 minutes on foot |
| Basement | |
| Lift |
What you will find nearby
Still looking for the right one?
Set up a watchdog. You will receive a summary of your customized offers 1 time a day by email. With the Premium profile, you have 5 watchdogs at your fingertips and when something comes up, they notify you immediately.













