
Flat to rent 3+1 • 77 m² without real estateNordhäuser Weg 10a, , Hesse
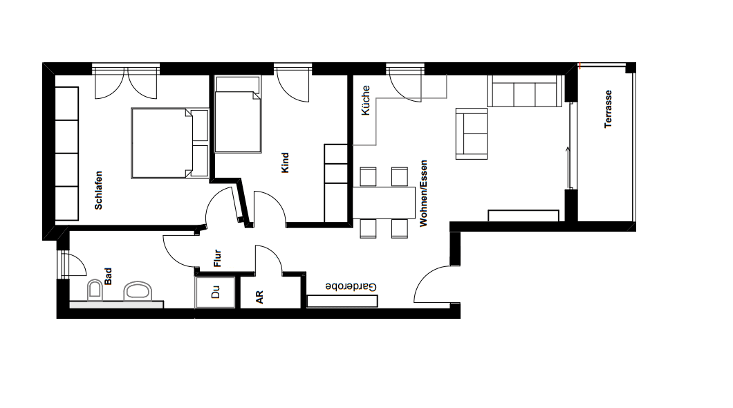
Nordhäuser Weg 10a, , HessePublic transport 4 minutes of walking • Lift • ParkingThe well-located 3-room apartment on the ground floor of a modern building at Nordhäuser Weg 10a in Gießen-Wieseck offers an open and functional layout over approximately 77 m². The modern building also features an elevator that provides convenient access. The fitted kitchen, including electrical appliances, can optionally be purchased from the previous tenant for €3000 negotiable.
The open kitchen flows directly into the living area, creating a spacious feeling. The balcony extends the living space outdoors and invites you to relax. The apartment is equipped with low-maintenance tiles, and the bathroom features a modern, barrier-free shower. In addition, the apartment includes a storage room.
The underfloor heating ensures a pleasant and even indoor climate.
Outdoor parking spaces can be rented additionally if needed. Overall, the location offers a good combination of modern living and convenient access to urban infrastructure.
The apartment is located in the established Gießen district of Wieseck, in a quiet and desirable residential area on Nordhäuser Weg. The surroundings are characterized predominantly by low to medium-rise residential buildings.
Shopping options, pharmacies, as well as schools and day care centers are within walking distance, ensuring convenient everyday living.
Public transport connections are excellent: bus stops are in the immediate vicinity and offer regular connections to the city center, the university, and the main train station. By car, both the city center of Gießen as well as the federal road B49 and the A485 motorway are quickly and easily reachable.
Numerous green spaces and pedestrian as well as cycling paths in the nearby area offer various opportunities for local recreation and leisure activities. Thus the location combines peaceful living with a high quality of urban life.
- Underfloor heating
- Triple-glazed windows
- Barrier-free access
- Elevator
- Electric shutters
- Laundry cellar
- Fitted kitchen available for purchase from the previous tenant for €3000 negotiable.
Property characteristics
| Age | Over 5050 years |
|---|---|
| Condition | Good |
| Listing ID | 973895 |
| Price per unit | €12 / m2 |
| Available from | 01/03/2026 |
|---|---|
| Layout | 3+1 |
| Usable area | 77 m² |
What does this listing have to offer?
| Balcony | |
| Lift | |
| MHD 4 minutes on foot |
| Wheelchair accessible | |
| Parking |
What you will find nearby
Still looking for the right one?
Set up a watchdog. You will receive a summary of your customized offers 1 time a day by email. With the Premium profile, you have 5 watchdogs at your fingertips and when something comes up, they notify you immediately.
















