House for sale 4+1 • 124 m² without real estateBURGBLICK GRUNDSTÜCK EXKLUSIV NUR FÜR DANWOOD-HAUSBAU Güssing Burgenland 7540
BURGBLICK GRUNDSTÜCK EXKLUSIV NUR FÜR DANWOOD-HAUSBAU Güssing Burgenland 7540Public transport 2 minutes of walking • GarageCompact and well thought-out – a space miracle on a small footprint.
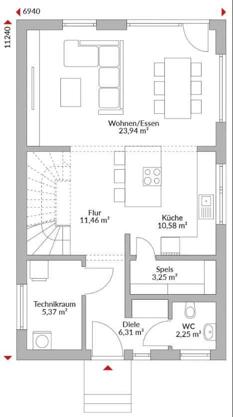
Despite the limited area, this house meets all the requirements of modern living. The kitchen is laid out for functionality, and the technical room provides plenty of space for household systems and storage. The bathroom is equipped with both a bathtub and a shower, and there is an additional guest toilet available. The hallway offers generous closet space, while the children’s room and the bedroom offer good placement options. The living/dining area impresses with large windows and open transitions that visually expand the space.
Ideal for anyone who values the essentials—without compromising on comfort.
On your property or in…
Güssing: approx. 2,600 m², completely flat location. Property sizes and locations are freely selectable. Sizes from 500 m² to 1500 m².
Here are the premium building plots! In the best location and with a breathtaking view of the beautiful Güssing Castle!
Güssing offers a future-proof, affordable, and energy-independent life in the countryside, making an investment in property there a strategic asset.
Why Güssing
Energy Pioneer and Sustainability:
• The town is energy self-sufficient and internationally recognized.
• A high coverage rate (over 85%) with regional biomass district heating leads to stable, affordable heating costs.
Affordable Property Prices:
• Prices are still significantly lower than the Austrian average, making the dream of owning a home with spacious plots a possibility.
Strong Infrastructure and Quality of Life:
• As a suburban district town, Güssing guarantees short distances and excellent amenities.
• Planned major investments include a new educational campus and a modern medical center (from 2026).
Cultural center (Güssing Castle) and proximity to thermal baths.
The complete opening of the S7 brings significant benefits for Güssing and its inhabitants:
• Faster connection to metropolitan areas: The expressway drastically reduces travel time to the A2 South Motorway, thereby significantly cutting travel times to Graz and Vienna.
• Regional relief: It reroutes through traffic, which previously heavily burdened towns like Fürstenfeld and Rudersdorf, onto the new route.
• Economic impetus: The new connection—via the junction near Rudersdorf/Dobersdorf and the proximity to the Königsdorf connection—strengthens Güssing as a suburban district and an economic location through improved accessibility and the promotion of new industrial parks.
Value Stability and Development Potential:
• Targeted municipal investments in infrastructure, downtown revitalization, and the technology center secure the long-term value stability of properties.
• The municipal strategy aims to overcome demographic challenges and establish Güssing as an attractive residential and economic location.
Target Group
Families who are looking for a future, security, and nature, as well as those who value low energy costs and ecological responsibility.
Other Plots in:
Plot, 8323 Kohldorf: Building plot with plenty of sunshine in the hilly landscape of East Styria, 15 km from Graz!
Size: 758 m² Purchase price: €66,000, --
Plot, 8323 Kohldorf: Sunny building plot in Kohldorf, 15 km east of Graz!
Size: 787 m² Purchase price: €69,000, --
Plot, 8311 Markt Hartmannsdorf: Fully serviced, sunny building plot in Markt Hartmannsdorf
Size: 920 m² Purchase price: €53,000, --
Plot, 9335 Lölling Graben: Building plot with a dream long-distance view in the picturesque Carinthian mountain region
Size: 1001 m² Purchase price: €50,000, --
Plot, 8075 Hart near Graz: Sunny plot on the outskirts of Graz
Size: 1980 m² Purchase price: €475,000, --
Plot in Stainz for Sale: Sunny plot on the outskirts of Stainz
Size: 825 m² Purchase price: €149,000
There is no financial connection between the property owner and the builder of the house.
Single-Family House with 4 Rooms – Exclusive Features!
Turnkey including delivery & installation from the top of the foundation.
• Snow load-reinforced roof truss
• Air-water heat pump & underfloor heating
• Ventilation with heat recovery (summer cooling)
• Electric shutters throughout the house
• Flooring and sanitary fixtures selectable according to your preference
• Photovoltaic preparation
• All-around care-free package
Self-construction is possible – entirely according to your wishes.
Consulting & Sales:
Ms. Tatjana Wyss
+43 676 553 77 47
tatjana.wyss@danwood.at
Secure your initial consultation now!
Request a building description and catalogs!
For this, please provide your telephone number, email address, and physical address.
Thank you!
FINANCIAL CALCULATOR
https://www.finaustria.at/finanzierungsrechner
MORE OFFERS!
https://qr.scan.page/uploads/pdf/1752348182250_686ba1debcb60.pdf
Property characteristics
| Condition | New-build |
|---|---|
| Listing ID | 973704 |
| Land space | 1 m² |
| Price per unit | €2,248 / m2 |
| Layout | 4+1 |
|---|---|
| Usable area | 124 m² |
| Total floors | 2 |
What does this listing have to offer?
| Garage |
| MHD 2 minutes on foot |
What you will find nearby
Still looking for the right one?
Set up a watchdog. You will receive a summary of your customized offers 1 time a day by email. With the Premium profile, you have 5 watchdogs at your fingertips and when something comes up, they notify you immediately.





















