House for sale 4+1 • 124 m² without real estateGRUNDSTÜCK EXKLUSIV NUR FÜR DANWOOD-HAUSBAU ORTSRAND STAINZ St Stefan ob Stainz Steiermark 8511
GRUNDSTÜCK EXKLUSIV NUR FÜR DANWOOD-HAUSBAU ORTSRAND STAINZ St Stefan ob Stainz Steiermark 8511Public transport less than a minute of walking • GarageDespite its small footprint, this house meets all the requirements of modern living. This space-saving wonder fulfills all the demands of contemporary life – with maximum functionality. It’s ideal for anyone who plans consciously and doesn’t want to compromise on anything. A well-thought-out house that surprises with a light-flooded living area, clever space planning, and everything modern living requires. For people who appreciate the essentials – and cherish comfort.
Functional, efficient, comfortable: This house demonstrates how much quality of life can be achieved in compact architecture. For everyone who plans with foresight – and uses space intelligently.
On your property or in…
Güssing: Approximately 2,600 m² on a completely flat site. Plot sizes and locations are freely selectable. Sizes from 500 m² to 1500 m².
Here are the top-class building plots! Located in the best area with a breathtaking view of the beautiful Güssing Castle!
Güssing offers a future-proof, affordable, and energy-independent life in the green, making the investment in a property there a strategic asset.
Why Güssing
Energy Pioneer and Sustainability:
The town is energy self-sufficient and internationally recognized.
A high coverage (over 85%) with regional biomass district heating results in stable, affordable heating costs.
Affordable Property Prices:
Prices are still significantly lower than the Austrian average, making the dream of owning a home with generous plots possible.
Strong Infrastructure and Quality of Life:
As a suburban part of the district, Güssing guarantees short distances and excellent services.
Planned major investments:
A new education campus and a modern medical center (from 2026).
Cultural center (Güssing Castle) and proximity to thermal baths.
The complete opening of the S7 brings significant advantages for Güssing and its residents:
• Faster connection to metropolitan areas: The expressway massively shortens travel times to the A2 Süd Motorway, significantly reducing journeys to Graz and Vienna.
• Regional relief: It diverts through-traffic—previously burdening towns like Fürstenfeld and Rudersdorf—to the new route.
• Economic boosts: The new connection, including the junction at Rudersdorf/Dobersdorf and the proximity to the Königsdorf connection, strengthens Güssing as both a suburban district and an economic location through improved accessibility and promotion of new business parks.
Value Stability and Development Potential:
Targeted municipal investments in infrastructure, revitalization of the town center, and the technology center secure the long-term value stability of the properties.
The municipal strategy aims to overcome demographic challenges and to establish Güssing as an attractive residential and economic location.
Target Audience
Families seeking a future, security, and nature, as well as anyone who values low energy costs and ecological responsibility.
More Plots in:
Plot, 8323 Kohldorf: Building plot with abundant sun in the hilly eastern Styria, 15 km from Graz!
Size: 758 m² Purchase Price: €66,000
Plot, 8323 Kohldorf: Sunny building plot in Kohldorf, 15 km east of Graz!
Size: 787 m² Purchase Price: €69,000
Plot, 8311 Markt Hartmannsdorf: Fully developed, sunny building plot in Markt Hartmannsdorf
Size: 920 m² Purchase Price: €53,000
Plot, 9335 Lölling Graben: Building plot with a dreamy panoramic view in the picturesque Carinthian mountains
Size: 1001 m² Purchase Price: €50,000
Plot, 8075 Hart near Graz: Sunny plot on the outskirts of Graz
Size: 1980 m² Purchase Price: €475,000
Plot in Stainz for Sale: Sunny plot on the outskirts of Stainz
Size: 825 m² Purchase Price: €149,000
There is no financial connection between the property owner and the builder of the house.
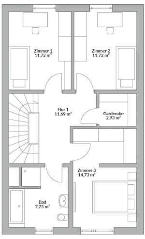
Single-Family House with 4 Rooms – Exclusive Equipment!
Turnkey, including delivery & assembly from the top of the foundation.
• Snow load–reinforced roof structure
• Air-water heat pump & underfloor heating
• Residential ventilation with heat recovery (summer cooling)
• Electric roller shutters throughout the house
• Floor coverings & sanitary fixtures freely selectable
• Photovoltaic preparation
• All-round worry-free package
Own work is possible – entirely according to your wishes.
Consultation & Sales:
Ms. Tatjana Wyss
+43 676 553 77 47
tatjana.wyss@danwood.at
Secure your initial consultation now!
Request a building description and catalogs!
For this, it is necessary that you provide your telephone number, email address, and address.
Thank you!
FINANCIAL CALCULATOR
https://www.finaustria.at/finanzierungsrechner
MORE OFFERS!
https://qr.scan.page/uploads/pdf/1752348182250_686ba1debcb60.pdf
Property characteristics
| Condition | New-build |
|---|---|
| Listing ID | 973703 |
| Land space | 1 m² |
| Price per unit | €2,248 / m2 |
| Layout | 4+1 |
|---|---|
| Usable area | 124 m² |
| Total floors | 2 |
What does this listing have to offer?
| Garage |
| MHD 0 minutes on foot |
What you will find nearby
Still looking for the right one?
Set up a watchdog. You will receive a summary of your customized offers 1 time a day by email. With the Premium profile, you have 5 watchdogs at your fingertips and when something comes up, they notify you immediately.





















