House to rent 7+1 • 230 m² without real estateStuttgart Feuerbach Baden-Württemberg 70192
Stuttgart Feuerbach Baden-Württemberg 70192Public transport 1 minute of walking • Parking • GarageThe property was built in 1954 and extensively and elaborately renovated in 1984.
The property is located in one of Stuttgart’s most popular residential areas at the Killesberg. The house is situated quietly on a side street. On foot, you can reach both the Killesberg Park and the Killesberg outdoor pool. In the immediate vicinity, there are also supermarkets, bakeries, pharmacies, kindergartens, and schools.
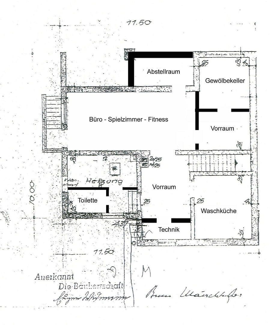
On the ground floor, there is a large, inviting entrance hall with a guest WC, cloakroom, pantry, as well as a spacious living room with an open kitchen and access to the roofed terrace with a south-facing garden.
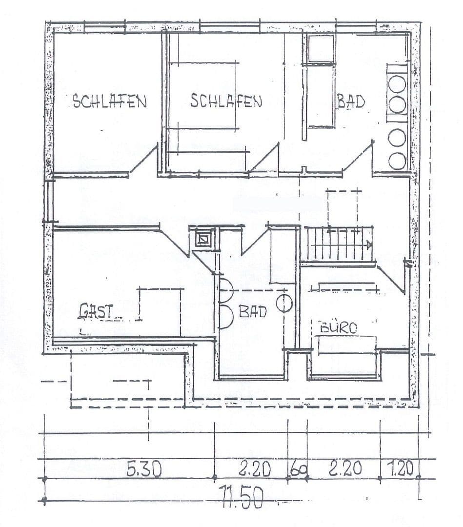
On the upper floor, there are 4 rooms (used as bedrooms and an office) and 2 bathrooms, each equipped with a shower, bathtub, WC, bidet, and double washbasin.
Property characteristics
| Age | Over 5050 years |
|---|---|
| Layout | 7+1 |
| Usable area | 230 m² |
| Total floors | 3 |
| Condition | Good |
|---|---|
| Listing ID | 973430 |
| Land space | 470 m² |
| Price per unit | €13 / m2 |
What does this listing have to offer?
| Basement | |
| Parking | |
| Terrace |
| Garage | |
| MHD 1 minute on foot |
What you will find nearby
Still looking for the right one?
Set up a watchdog. You will receive a summary of your customized offers 1 time a day by email. With the Premium profile, you have 5 watchdogs at your fingertips and when something comes up, they notify you immediately.



















