House for sale 6+1 • 173 m² without real estate, Baden-Württemberg
The semi-detached house, built in 1986, offers six rooms, a modern in-law apartment, and a generous garden – providing plenty of space for the whole family. The house impresses with its good layout, the spacious living/dining area, a large study in the basement, its quiet location on a side street, and the unobstructed views of the Kaiserstuhl and the Vosges.
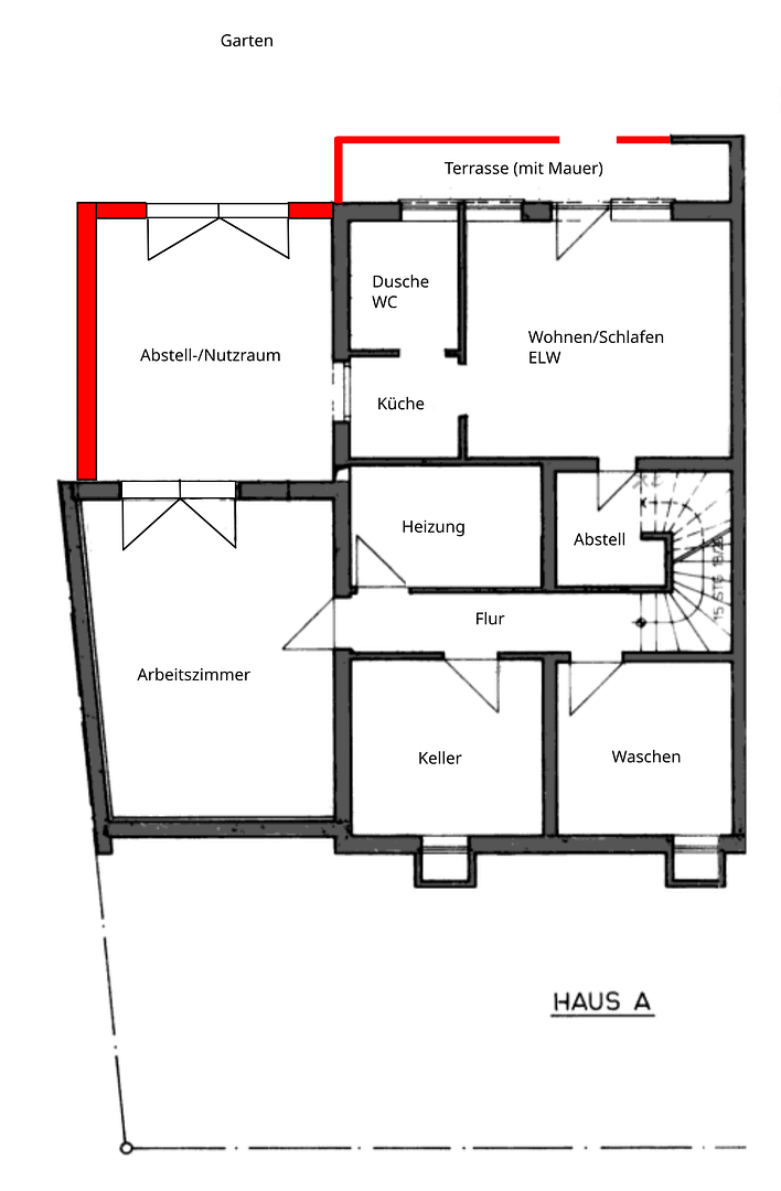
The modern in-law apartment with its own kitchen, shower/WC, storage room, and a covered terrace can be used as extended living space, as a guest area, or even for rental purposes. The solidly built house is in very well-kept condition.
In addition to a spacious garage, there are 2 outdoor parking spaces and a driveable garden available.
Ihringen is a popular wine village located between Freiburg and Breisach (on the French border). Numerous cycling and hiking trails, the well-developed S-Bahn connection between Freiburg and Breisach, the proximity to the A5, as well as easy access to Switzerland and France make Ihringen an ideal starting point for a variety of sporting and cultural activities.
A post office, two supermarkets, various small shops, bakeries, cafes, kindergartens, a community school, a dentist, a general practitioner, a gas station, and several restaurants can all be easily reached on foot, by bicycle, or by car. The nearest playground is in the immediate vicinity, about 200 meters away.
Rooms/Features:
UPPER FLOOR (OG)
• 1 bedroom with genuine beech hardwood laminate, floor heating, a spacious sliding-door built-in wardrobe, and a balcony door
• 2 children's rooms with genuine beech hardwood laminate and floor heating
• 1 tiled bathroom with electric underfloor heating, floor heating, a shower, a corner bathtub, and a window
• 1 corridor with genuine beech hardwood laminate
• Solid beech wooden staircase to the upper floor
GROUND FLOOR (EG)
• 1 tiled guest WC with floor heating and a window
• 1 tiled storage room
• 1 tiled entrance hall with floor heating
• 1 tiled kitchen with a fitted kitchen (birch veneer)
• 1 living/dining room with oak parquet, central heating, and a fireplace stove
• 1 large corner balcony with an electric awning
BASEMENT (UG)
• Staircase to the basement paved with granite stone slabs
• 1 unheated utility room (HWR) with a countertop, sink, floor drain, and a basement window
• 1 unheated cellar room with a basement window
• 1 heating room
• 1 tiled corridor
• 1 study with laminate flooring, floor heating, and a two-leaf glass door
• 1 enclosed extension with 3 windows, a double-part side entrance door, and a floor drain
IN-LAW APARTMENT (ELW)
• 1 unheated tiled corridor/storage room
• 1 living/bedroom with laminate flooring, both floor and underfloor heating, 2 windows, plus an entrance/exit door to the garden
• 1 small kitchen with laminate flooring, a fitted kitchen, and a window
• 1 tiled bathroom/WC with a spacious shower, a pedestal washbasin, a WC, and a window
• 1 covered outdoor terrace with direct access to the garden
Other Features:
• All windows are equipped with electric roller shutters
• Sun protection awning above the house entrance
• Plastic double-glazed windows (Uw 1.3)
• Solar system of 3,120 W including a storage system of 11.8 kW for self-consumption
• House water decalcification system
• 3,000 L rainwater cistern with pump in the garden
• Garden shed
• Garden fenced with larch wood
• Facade insulation with 60 mm stone wool
• Security front door
• Electric garage door along with a separate side entrance door
• Thermal insulation in the attic/upper floors
Property characteristics
| Age | Over 5050 years |
|---|---|
| Layout | 6+1 |
| EPC | C - Economical |
| Land space | 374 m² |
| Price per unit | €3,636 / m2 |
| Condition | Good |
|---|---|
| Listing ID | 973417 |
| Usable area | 173 m² |
| Total floors | 3 |
What does this listing have to offer?
| Balcony | |
| Garage | |
| MHD 1 minute on foot |
| Basement | |
| Parking |
What you will find nearby
Still looking for the right one?
Set up a watchdog. You will receive a summary of your customized offers 1 time a day by email. With the Premium profile, you have 5 watchdogs at your fingertips and when something comes up, they notify you immediately.















