
Commercial property to rent • 999 m² without real estateBiederbacherstraße 28, , Bavaria
Biederbacherstraße 28, , BavariaPublic transport 7 minutes of walking • ParkingThe commercial space available for lease is located at Biederbacher Straße 27 in Wolframs-Eschenbach, within a long-established local supply center. With a total area of 999 square meters, the space offers a variety of uses, including retail, warehousing, logistics, or small-scale commercial activities.
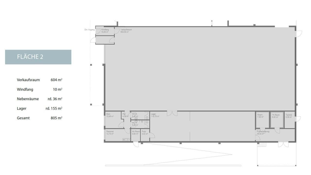
The space is flexibly designed and can be divided if necessary. It includes a spacious sales area of 615 m² (expandable by another 194 m²), 191 m² of ancillary rooms, and a warehouse of 200 square meters.
This is the current Penny Market space. At the moment, a new free-standing branch of the store is being constructed on the parking lot. The opening is planned for autumn 2026. From that point in time, the space will be available for lease.
Location Description
The commercial space is situated at Biederbacher Straße 27, one of the main access roads of Wolframs-Eschenbach. The town has approximately 3,300 residents, but it benefits from a large catchment area:
Within a 5-kilometer radius: 13,000 residents
Within a 10-kilometer radius: 48,000 residents
Especially advantageous is its proximity to surrounding towns such as Mitteleschenbach, Merkendorf, and Triesdorf, the latter being an important location factor with its 5,500 students.
Furthermore, Wolframs-Eschenbach is known for its historic old town and its location in the Franconian Lake District, which generates up to 30,000 overnight stays annually. Additionally, numerous caravan overnight stays further enhance its touristic relevance.
On the property itself, there are approximately 75 parking spaces that can be used jointly with a Penny Market branch.
The commercial space is equipped to a high standard and offers numerous practical and technical advantages:
Heating system: A gas central heating system ensures reliable warmth, while in some areas a comfortable underfloor heating is installed.
Floor coverings: All areas are completely tiled or paved, making them particularly robust and easy to maintain.
Internet connection: A high-performance Internet connection with speeds of up to 100 MB is already available and ideal for modern work and communication requirements.
Barrier-free access: All entrances are designed to be barrier-free, allowing for easy and flexible use.
Social rooms: A branch manager's office as well as a social room with a pantry kitchen and its own WC provide optimal conditions for staff.
Multiple accesses: Four separate entrances, including a loading door and a sliding door on the facade, ensure flexible and functional use of the space.
Advertising opportunities: The space offers extensive options for outdoor advertising. Display window areas can be individually wrapped, an illuminated sign can be installed on the facade, and there is the possibility to attach an advertising column at the access road to increase visibility.
Flexibility: The space can be adapted as needed and divided into smaller units if required.
The commercial space is available immediately. The net rent is negotiable individually and depends on the intended use and contract duration. No deposit is required, which particularly facilitates the entry for new tenants.
Property characteristics
| Age | Over 5050 years |
|---|---|
| Listing ID | 973155 |
| Land space | 5,000 m² |
| Condition | Good |
|---|---|
| Land non-residential space | 999 m² |
| Price per unit | €0 / m2 |
What does this listing have to offer?
| Wheelchair accessible | |
| MHD 7 minutes on foot |
| Parking |
What you will find nearby
Still looking for the right one?
Set up a watchdog. You will receive a summary of your customized offers 1 time a day by email. With the Premium profile, you have 5 watchdogs at your fingertips and when something comes up, they notify you immediately.






