Office to rent • 128 m² without real estateGoerdelerstraße 35 Offenbach Offenbach am Main Hessen 63071
Goerdelerstraße 35 Offenbach Offenbach am Main Hessen 63071Public transport 3 minutes of walkingCurrently, a modern residential and commercial ensemble is taking shape at Goerdelerstraße 35, with the ground floor offering high-quality commercial spaces for discerning service providers starting from 01.04.2026.
The building has been comprehensively renovated and combines modern design with a functional layout. Above the commercial spaces, there are 12 attractive residential units; on the ground floor, an established bakery with a garden café provides additional foot traffic and a pleasant atmosphere.
Prime location: Conveniently accessible yet pleasantly quiet
Goerdelerstraße 35 offers an ideal combination of excellent accessibility and a tranquil surrounding environment. Thanks to its proximity to major traffic arteries and very good connections to the regional road network, the spaces are particularly optimal for car access. Despite the convenient location, the area impresses with a calm, well-maintained residential and working environment – ideal for confidential client meetings and focused work.
Ideal for Consulting Professions
Thanks to the quiet surroundings, good accessibility, and flexible spatial design, the spaces are particularly suitable for consulting professions that value ease of access and a prestigious environment:
• Insurance brokers
• Tax advisors
• Lawyers
• Consulting agencies
• Other service providers with moderate customer traffic
Parking: A Real Location Advantage
In times of limited parking availability, Goerdelerstraße 35 offers a double benefit:
• Numerous public parking options right at the doorstep
• Exclusive parking spaces in the courtyard reserved for visitors and staff
This is a significant advantage for professional groups that depend on hassle-free customer access.
Flexible Design Tailored to the Tenant’s Needs
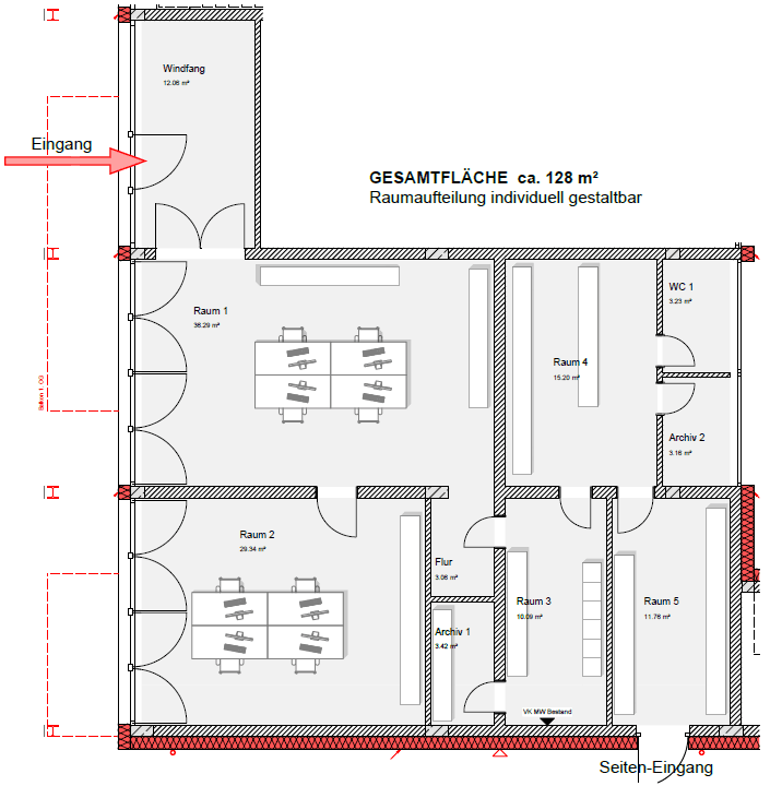
The commercial spaces can be divided and designed according to your individual requirements. There is no fixed layout, making the realization of a customized concept – whether classic office spaces or open consulting zones – easily achievable.
The commercial spaces at Goerdelerstraße 35 combine perfect accessibility, a calm working environment, flexible design options, and an attractive neighborhood. Ideal for service providers who value professionalism, comfort, and customer-friendliness.
Please note that the stated costs (rent + additional charges) are net amounts plus VAT.
Property characteristics
| Age | Over 5050 years |
|---|---|
| Listing ID | 973093 |
| Price per unit | €25 / m2 |
| Available from | 01/04/2026 |
|---|---|
| Land office | 128 m² |
What does this listing have to offer?
| MHD 3 minutes on foot |
What you will find nearby
Still looking for the right one?
Set up a watchdog. You will receive a summary of your customized offers 1 time a day by email. With the Premium profile, you have 5 watchdogs at your fingertips and when something comes up, they notify you immediately.


