
Flat for sale 3+1 • 71 m² without real estateV Sadě, Vlašim - Vlašim, Středočeský Region
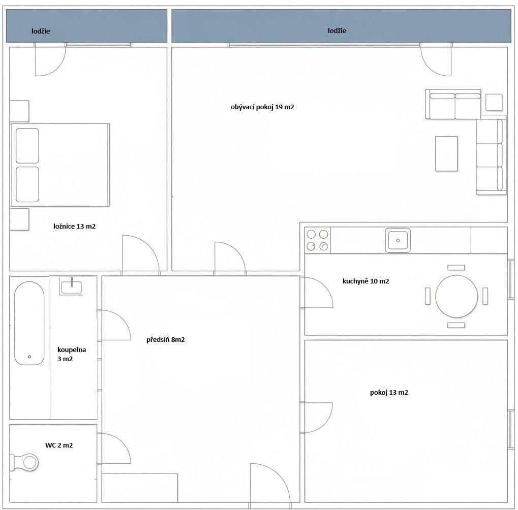
V Sadě, Vlašim - Vlašim, Středočeský RegionPartially equipped • Parking • Cellar 3 m² • Loggia 7 m²Nabízím ke koupi prostorný a světlý byt 3+1 o celkové ploše 71 m², situovaný ve vyhledávané a klidné lokalitě Vlašimi, ulice V Sadě, přímo u aleje a lesa. Byt se nachází ve 3. nadzemním podlaží udržovaného čtyřpodlažního domu a je orientován na jih a východ, což zajišťuje výborné prosvětlení po celý den.
Byt je v dobrém stavu – renovované parkety, čerstvá výmalba a průběžná údržba umožní novému majiteli okamžité nastěhování bez nutnosti dalších investic.
________________________________________
Dispozice a vybavení
• příjemné a funkční uspořádání 3+1
• dvě samostatné lodžie o celkové ploše cca 7,5 m² – perfektní místo pro ranní kávu či odpočinek
• k bytu náleží sklepní kóje cca 3,5 m²
• kuchyňská linka se zcela novou troubou, myčkou a sklokeramickou deskou
• nově instalovaná toaleta, ohřívač vody
• centrální vytápění z plynového kotle v domě
Díky své dispozici a dvěma lodžiím působí byt vzdušně a nabízí příjemné bydlení v klidné části Vlašimi.
________________________________________
Dům, náklady a výhody
• byt je v osobním vlastnictví
• dům má k dispozici energetický štítek
• měsíční příspěvek do fondu oprav 2 000 Kč; náklady na studenou vodu 625 Kč, teplo 3 645 Kč
• SVJ má naspořeno více než 2 miliony Kč dle veřejně dostupné účetní závěrky za rok 2024.
• klidné a bezpečné okolí v bezprostřední blízkosti přírody
________________________________________
Skvělá občanská vybavenost a dostupnost
• školka a škola do 100 m
• MHD do 200 m
• 4 supermarkety do 2 km
• lokalita vhodná pro rodiny, sportovce i milovníky přírody
Veškerá občanská vybavenost v docházkové vzdálenosti
________________________________________
Další informace
• typ konstrukce domu: panel/cihla
• zděné jádro
• neprůchozí pokoje
• nastěhování je možné ihned
• SVJ nemá žádný úvěrový závazek
• možnost financování hypotékou (bez právních omezení, bez zástav)
• Okenní výplně – plastová okna (dvojskla)
• Pouze vážní zájemci (nikoliv realitní kanceláře)!!
• autem dojedete do Prahy přibližně za 45 minut (po D1), do Benešova za 20 minut
Pokud máte zájem o více informací nebo si chcete domluvit prohlídku, napište mi prosím do zpráv.
Property characteristics
| Available from | 12/12/2025 |
|---|---|
| Building construction | Precast concrete |
| Fully furnished | Partly |
| Design | Standard |
| Listing ID | 972963 |
| EPC | G - Extremely uneconomical |
| Location | Quiet area |
| Price per unit | CZK 63,380 / m2 |
| Condition | Very good |
|---|---|
| Layout | 3+1 |
| Floor | 3. floor out of 4 |
| Heating | Central |
| Ownership | Personal |
| Reconstruction | Interior |
| Usable area | 71 m² |
Are you choosing a apartment?
Make sure you have all the important information!
What does this listing have to offer?
| Basement: 3 m² | |
| Loggia balcony: 7 m² |
| Front garden 40 m² | |
| Parking |
What you will find nearby
Still looking for the right one?
Set up a watchdog. You will receive a summary of your customized offers 1 time a day by email. With the Premium profile, you have 5 watchdogs at your fingertips and when something comes up, they notify you immediately.













