Flat for sale 3+1 • 55 m² without real estateStuttgart Kaltental Baden-Württemberg 70569
The very well-maintained 3-room apartment is presented in an inviting condition and is ideal for both immediate personal occupancy and rental. Bright, light-flooded rooms create a friendly living atmosphere. The apartment features a modern fitted kitchen, a daylight bathroom with a bathtub, as well as an efficient gas heating system. A cellar provides additional storage space. Overall, the apartment impresses with its good equipment and immediate availability.
The property is located in a quiet and family-friendly area in the popular Stuttgart district of Kaltental (Southern District). It is situated on a residential street with little traffic, surrounded by well-kept houses and green spaces. Grocery stores for daily needs, kindergartens, schools, as well as doctors and pharmacies, are in the immediate vicinity and can be easily reached on foot or by car.
Connectivity is excellent: the light rail station is only a few minutes away and can take you directly to Stuttgart’s city center in about ten minutes. With a car, you can quickly and flexibly travel via the nearby motorway exit.
The surroundings also offer numerous recreational and leisure opportunities, such as the Dornhalde-Haldenwald, various playgrounds, and a good connection to the nearby University in Pfaffenwald. In this way, the apartment combines urban living with nature-adjacent housing. It is ideal for anyone who values a peaceful residential environment while not wanting to sacrifice excellent infrastructure and quick accessibility. Whether for families, couples, or commuting professionals, the apartment offers the perfect starting point for a comfortable and balanced life in Stuttgart.
• Very well-maintained condition – ready for move-in or rental
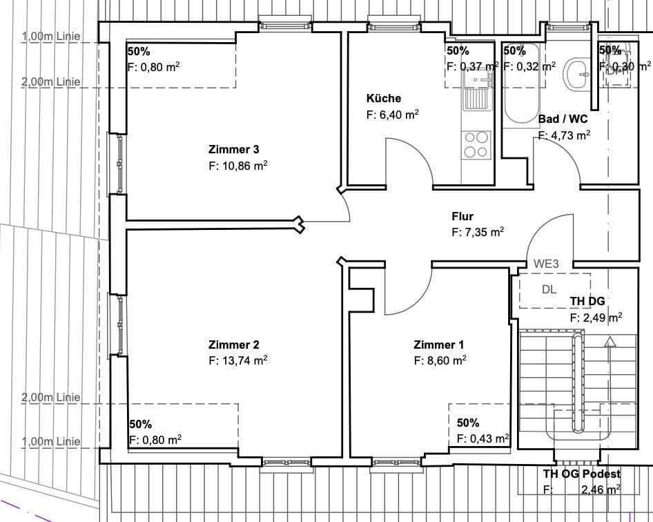
• 3 rooms, kitchen, bathroom, cellar
• Gas heating system
• Bright, light-flooded rooms
• Fitted kitchen
• Bathroom with bathtub and daylight
• Good equipment
Commission free.
Property characteristics
| Age | Over 5050 years |
|---|---|
| Layout | 3+1 |
| Listing ID | 972886 |
| Usable area | 55 m² |
| Condition | Good |
|---|---|
| Floor | 2. floor out of 3 |
| EPC | G - Extremely uneconomical |
| Price per unit | €3,436 / m2 |
What does this listing have to offer?
| Basement |
| MHD 2 minutes on foot |
What you will find nearby
Still looking for the right one?
Set up a watchdog. You will receive a summary of your customized offers 1 time a day by email. With the Premium profile, you have 5 watchdogs at your fingertips and when something comes up, they notify you immediately.






