House for sale 3+1 • 95 m² without real estate, Hesse
Modern and Up-to-Date:
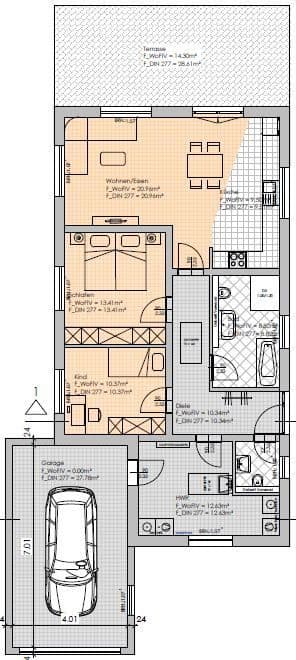
In the established area of Willingshausen / Merzhausen, we are offering this bungalow built to the latest energy standards and designed with age-appropriate planning. Everything is on one level without any steps.
There is little maintenance required for the garden while still providing plenty of space for both body and soul. This allows the outdoor area to be enjoyed undisturbed, with the view free to unfold.
Additionally, the attic offers approximately 100 m² of usable space, which can be used for storage or for a future expansion.
It is a new build, including the plot, planning and approval costs, as well as building construction. The property is equipped with the latest technology, including underfloor heating, an air/water heat pump, electric shutters, a solar power system with battery storage, and a charging station for electric cars.
Interior finishing work such as wall and floor coverings, painting, and outdoor areas is to be completed according to taste either as a DIY project or, if desired, after coordination for an additional fee.
Due to the early planning phase, individual preferences can still be accommodated:
- Solid construction according to modern energy standards
- Heating via an air/water heat pump
- Sufficient electrical outlets and optional smart home features at various expansion levels
- Triple glazing with electric shutters
- Details can be expanded by agreement
Property characteristics
| Age | Over 5050 years |
|---|---|
| Condition | New-build |
| Listing ID | 972737 |
| Usable area | 95 m² |
| Total floors | 1 |
| Available from | 01/12/2026 |
|---|---|
| Layout | 3+1 |
| EPC | A - Extremely economical |
| Land space | 1,150 m² |
| Price per unit | €4,182 / m2 |
What does this listing have to offer?
| Wheelchair accessible | |
| Parking | |
| Terrace |
| Garage | |
| MHD 1 minute on foot |
What you will find nearby
Still looking for the right one?
Set up a watchdog. You will receive a summary of your customized offers 1 time a day by email. With the Premium profile, you have 5 watchdogs at your fingertips and when something comes up, they notify you immediately.

