
Flat for sale 3+1 • 65 m² without real estateK. Světlé, Zlín - Prštné, Zlínský Region
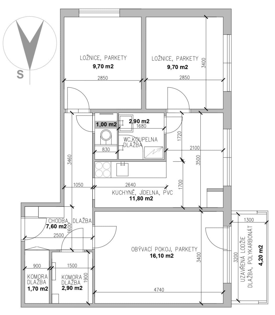
K. Světlé, Zlín - Prštné, Zlínský RegionPublic transport 2 minutes of walking • Partially equipped • Parking • Cellar 2 m² • Loggia 4.2 m²K prodeji nabízíme světlý byt 3+1 o podlahové ploše 65 m² s uzavřenou lodžií 4,2 m² a sklepem 2 m² v oblíbené zlínské lokalitě Podhoří. Byt se nachází ve 13. patře panelového domu s výtahem a díky jihozápadní orientaci nabízí dostatek denního světla a velmi příjemný výhled na Zlín a okolní krajinu.
Byt je v udržovaném stavu, s rekonstruovaným zděným jádrem (koupelna a samostatné WC jsou po rekonstrukci – obklady, dlažba, sprchový kout, umyvadlová skříňka), ostatní části bytu jsou vhodné k modernizaci podle vkusu nového majitele. Díky tomu je možné byt přetvořit přesně podle vlastních představ.
Mezi přednosti patří uzavíratelná lodžie o rozloze 4,2 m², která dodá prostoru svěžest a možnost relaxace a sklep o ploše 2 m², který je ideální pro uložení sezónních věcí či sportovních potřeb.
V obytných místnostech jsou původní dřevěné parkety, v předsíni a sanitě keramická dlažba, v kuchyni pvc. V bytě jsou plastová okna, topení je centrální dálkové. Vaření na plynu. Bytový dům je zateplený.
Parkování je zajištěno před domem, což výrazně usnadňuje každodenní pohodlí a mobilitu. Nemovitost se prodává v osobním vlastnictví. Energetický štítek budovy má hodnotu G (bude upřesněno).
Náklady na bydlení:
měsíční zálohy do SVJ činní cca 4.100 Kč (správa domu, fond oprav, teplo, teplá a studená voda, společná elektřina, služby správce)
zálohy na elektřinu a plyn jsou nyní nastaveny cca 800 Kč/měsíc
(byt je v současné době neobývaný)
Lokalita Podhoří patří mezi vyhledávané části Zlína díky kompletní občanské vybavenosti v docházkové vzdálenosti:
zastávky MHD
základní škola a mateřská škola
potraviny a další obchody a služby
lékaři, pošta, sportoviště
dětská hřiště a zeleň v okolí domu
Dobrá dostupnost centra Zlína i napojení na hlavní tahy dělá z bytu vhodnou volbu jak pro rodinné bydlení, tak jako investici k pronájmu.
Pokud Vás nabídka zaujala, kontaktujte mě prosím skrze zprávy či komunikační platformu.
Property characteristics
| Available from | 11/12/2025 |
|---|---|
| Building construction | Precast concrete |
| Fully furnished | Partly |
| Heating | Central |
| Ownership | Personal |
| Reconstruction | Bathroom unit |
| Usable area | 65 m² |
| Condition | Good |
|---|---|
| Layout | 3+1 |
| Floor | 13. floor out of 13 |
| Listing ID | 972681 |
| EPC | C - Economical |
| Location | Residences |
| Price per unit | CZK 76,769 / m2 |
Are you choosing a apartment?
Make sure you have all the important information!
What does this listing have to offer?
| Basement: 2 m² | |
| Parking |
| Loggia balcony: 4.2 m² | |
| MHD 2 minutes on foot |
What you will find nearby
Still looking for the right one?
Set up a watchdog. You will receive a summary of your customized offers 1 time a day by email. With the Premium profile, you have 5 watchdogs at your fingertips and when something comes up, they notify you immediately.



















