House for sale 6+1 • 135 m² without real estateBergedorf OT Neuallermöhe Neuallermöhe Hamburg 21035
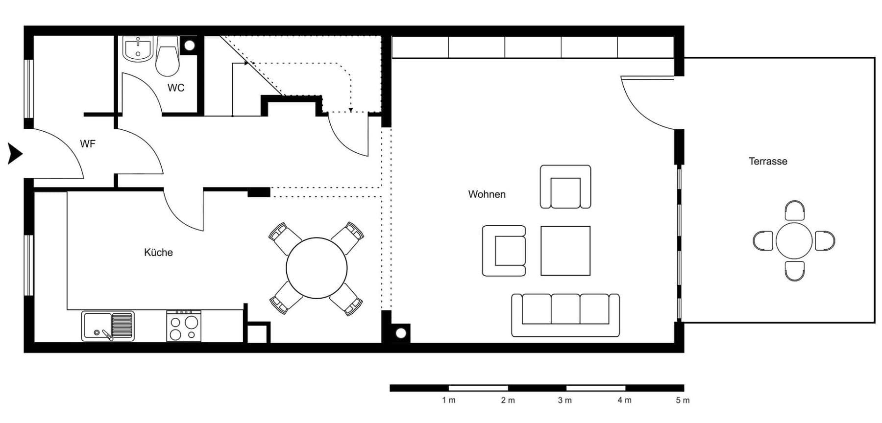
Bergedorf OT Neuallermöhe Neuallermöhe Hamburg 21035Public transport 1 minute of walking • ParkingThe well-maintained, built-in-1996 terraced house offers 135 m² of living space, providing room for a large family. It features six rooms, a full bathroom, a shower room, a guest WC, and a fitted kitchen.
Particularly notable is the spacious living/dining area with oak parquet flooring, including underfloor heating, and an adjacent open-plan fitted kitchen. A fireplace with a panoramic picture window creates a cozy ambience. Floor-to-ceiling windows open onto a terrace paved with natural stone facing southwest and the private, mature garden.
The area below the staircase is optimally utilized by a walk-in storage room. Between the front door and the guest WC, there is a space with an integrated cloakroom and shoe rack.
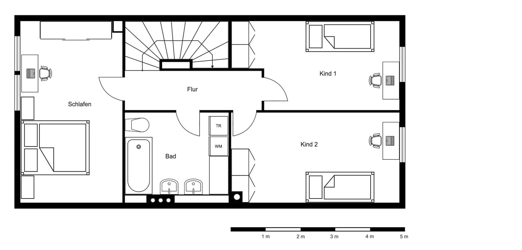
On the upper floor, there are three rooms and a well-lit, tiled bathroom with a bathtub, a double washbasin, and space for a washing machine and dryer.
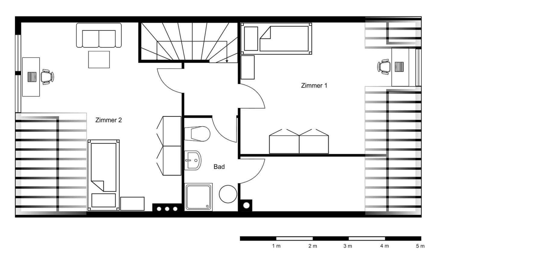
The top floor comprises two rooms with sloping ceilings and dormers, an equally bright tiled shower room, and the heating room with a roof window that is ideal for hanging laundry.
The loft offers plenty of storage space and could additionally be developed into a bedroom with a loft bed accessible from one of the rooms.
In addition, there is a parking space for a car in front of the house and a shed for bicycles.
The terraced house is located in the Hamburg district of Allermöhe on a traffic-calmed play street. Playgrounds and the Allermöhe Lake are approximately 200 meters away. The area is characterized by a harmonious mix of small residential streets and spacious green areas. A ten-minute walk brings you to the "Allermöhe" S-Bahn station, from which the main station is reachable in 15 minutes, and several bus lines also operate in the area. Kindergartens, primary schools, a district school and a high school, as well as shops for daily needs and doctors, are conveniently accessible on foot.
The A25 motorway is about a 3-minute drive away.
For local recreation, the nearby Allermöhe Lake as well as several parks and playgrounds invite you to relax. The Vier- und Marschlanden and the Boberger Dünen nature reserve offer beautiful, extensive cycling tours.
* On the ground floor: fitted kitchen, terracotta tiles in the kitchen and hallway, oak parquet flooring and underfloor heating in the living room, fireplace, guest WC
* On the upper floor: three rooms, full bathroom, cork flooring
* On the top floor: two rooms with dormers, shower room, heating room, cork flooring
* Wooden stairs, closed construction for the upper floor, open construction for the top floor
* Attic
* Terrace, garden, parking space, bicycle shed
The house has been continuously modernized. For example, in 2018 the shower room was completely renovated and a new double washbasin was installed in the full bathroom.
In 2019, some window panes were replaced while retaining the wooden frames. In the process, the front door and all window frames were treated and painted.
In 2020, a tightness test for the base pipelines and shafts was carried out.
In 2021, underfloor heating was installed in the living room and oak parquet flooring was laid.
In 2022, a new fireplace – Contura 596 – was installed, meeting the prescribed emission standards.
In 2024, a new hot water storage tank including a new supply line, pump, and safety valve was installed.
In 2025, a fiber optic connection was implemented.
The house is in well-maintained condition with age-appropriate signs of use and can be occupied after individual painting or wallpapering works.
Property characteristics
| Age | Over 5050 years |
|---|---|
| Layout | 6+1 |
| EPC | B - Very economical |
| Land space | 165 m² |
| Price per unit | €3,919 / m2 |
| Condition | Good |
|---|---|
| Listing ID | 972590 |
| Usable area | 135 m² |
| Total floors | 3 |
What does this listing have to offer?
| Parking | |
| Terrace |
| MHD 1 minute on foot |
What you will find nearby
Still looking for the right one?
Set up a watchdog. You will receive a summary of your customized offers 1 time a day by email. With the Premium profile, you have 5 watchdogs at your fingertips and when something comes up, they notify you immediately.


















