Commercial property to rent • 76 m² without real estateWeiserstraße 28 Salzburg Schallmoos Salzburg 5020
Weiserstraße 28 Salzburg Schallmoos Salzburg 5020Public transport 2 minutes of walkingDue to my upcoming retirement, I am renting out—commission-free—my commercial premises starting from September 1, 2025, located in immediate proximity to the Salzburg Main Train Station.
The commercial premises is situated on the ground floor of a residential block containing a total of 42 apartments and 3 additional commercial units.
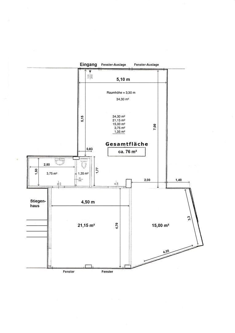
The entire business area, approximately 76 m², is divided into 3 rooms:
1. Sales area (approx. 50 m²)
2. Office (approx. 21 m²)—these two rooms are separated only by a temporary wall that can be removed if needed.
3. Storage room with a water connection (or small kitchen, approx. 5 m²) and a WC (approx. 1 m²)
There are 2 entrance doors to the premises: one from the street and the other (a heavy security door) from the rear courtyard of the residential block or the building’s stairwell.
The storage room is also separated from the office by a security door.
All display windows, two large windows facing the courtyard, and the entrance door are additionally protected with shutters.
A few years ago, the entire commercial space was comprehensively renovated: all electrical cables, sockets, light switches, radiators, and doors were replaced. The floor was laid with stoneware tiles.
The entire area was recently repainted.
A wired alarm system (now technically outdated) was installed and is still functioning.
The offered commercial premises is also excellently suited as an office.
The monthly rent is 1,600 EURO. The tenant is also responsible for the operating costs, which are currently around 378 EURO including VAT. Note that the premises has not been heated in recent years; however, directly beneath the commercial space is the heating room for the entire residential block, ensuring that the room temperature hardly drops below 19 degrees even in winter.
P.S. Not suitable for a gastronomic business.
Salzburg Schallmoos / Neustadt in immediate proximity to the rear notice board at the Salzburg Main Train Station, approximately 250 meters from the main entrance of HBF Salzburg.
Approximately 60 meters to the bus stops in both directions.
Approximately 100 meters to the 24-hour manned police station.
Property characteristics
| Age | Over 5050 years |
|---|---|
| Listing ID | 972584 |
| Price per unit | €21 / m2 |
| Condition | After reconstruction |
|---|---|
| Land non-residential space | 76 m² |
What does this listing have to offer?
| Wheelchair accessible |
| MHD 2 minutes on foot |
What you will find nearby
Still looking for the right one?
Set up a watchdog. You will receive a summary of your customized offers 1 time a day by email. With the Premium profile, you have 5 watchdogs at your fingertips and when something comes up, they notify you immediately.























