Office to rent • 202 m² without real estateBremen Hemelingen Bremen 28207
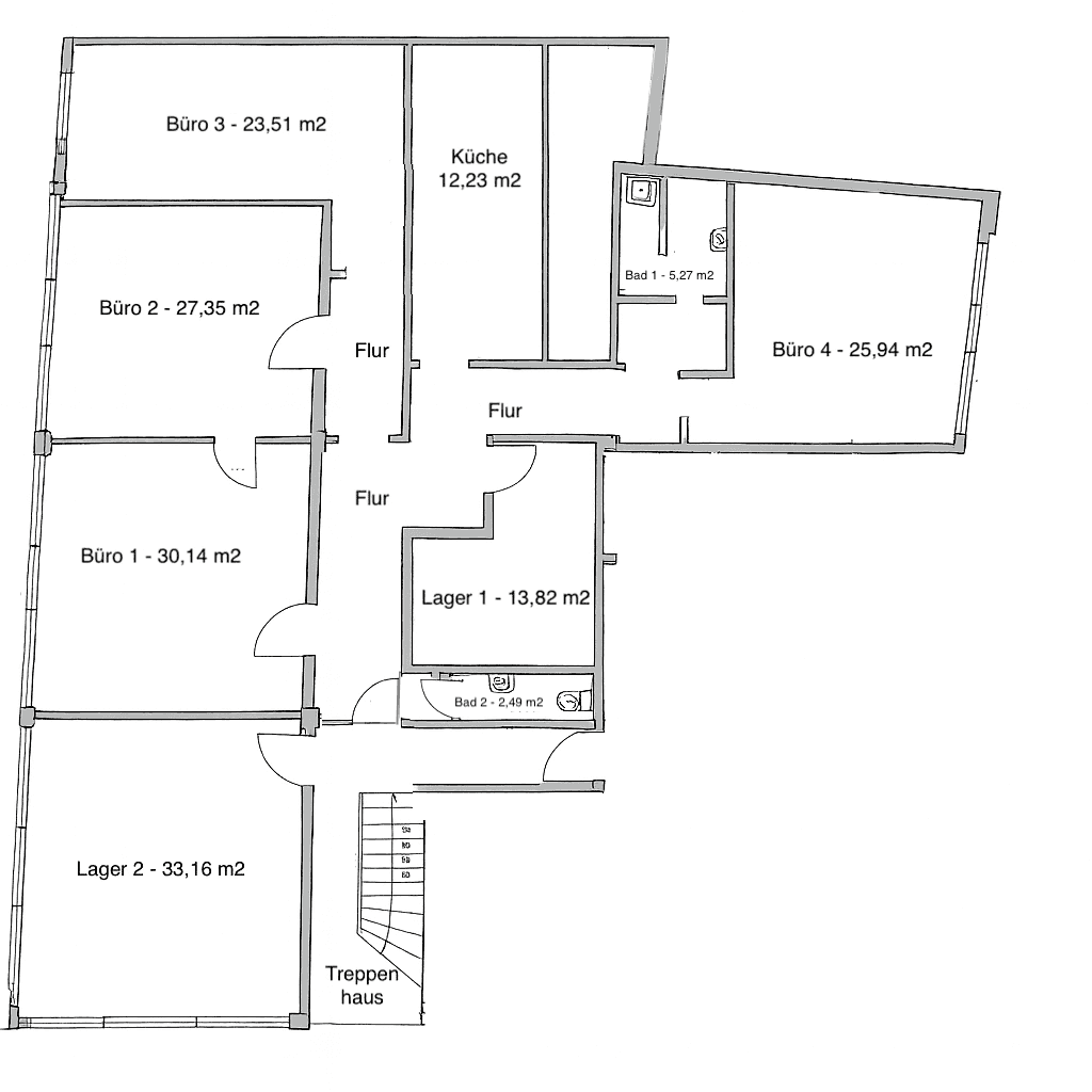
Bremen Hemelingen Bremen 28207Public transport 3 minutes of walking • ParkingThe flexible commercial space offered here comprises 202 m² and is ideally suited as office or training space. The unit consists of four well-designed office rooms, several storage rooms, a room with kitchen connections, a bathroom with a shower, as well as a separate customer or guest WC. The layout provides a functional basis and can be adapted to various usage concepts. The exact state of handover can be individually defined in coordination with the new tenant.
The space is located on the first floor above a currently vacant workshop. The former auto repair shop, with approximately 326 m² of usable space, is not in operation at the moment, thus providing a quiet environment. If desired, this space can be rented additionally as extra production, storage, or workspace.
Additional capacities are offered by separately located basement rooms, which are particularly suitable as archive or extended storage areas.
On the property, at least four car parking spaces and/or garages are available, some of which are already equipped with e-charging stations.
The location in the Bremen-Hastedt district is attractive due to its good transportation connections. Public transportation, Sebaldsbrück station, Bremen city center, and the A1 motorway are quickly accessible. This ensures uncomplicated access for employees, customers, and business partners, making the space a practical, functional, and well-connected company location.
The space is situated in the sought-after Bremen-Hastedt district. The transportation connection is excellent: in the immediate vicinity, tram lines 2 and 10 as well as bus line 25 run. The modernized Sebaldsbrück station is located approximately 200 meters away and ensures quick and convenient access from all directions. Moreover, via Stresemannstraße and the Hemelingen motorway feeder, there is a direct connection to the A1, making even interregional destinations easily reachable.
The surrounding area offers a lively mix of residential, retail, and service facilities. Shopping opportunities, restaurants, and a supermarket are nearby. For breaks or relaxation after work, the Weserwehr and the Pauliner Marsch invite you to stroll or engage in sports activities. The location ideally combines work, urbanity, and recreation.
The offered spaces are equipped to a modern technical standard and provide ideal conditions for versatile use as office or training space.
- Total area approx. 202 m²
- 4 office rooms
- 1-2 storage rooms. Additional basement rooms available on request
- Bathroom with shower and separate guest/customer WC
- Modern IT infrastructure
- At least 4 garage or car parking spaces, some with e-charging stations
Please refer to the attached floor plan for the detailed room layout. Adjustments to individual structural requirements and the state of handover (e.g., the installation of a kitchen) are, of course, possible by prior arrangement.
Property characteristics
| Age | Over 5050 years |
|---|---|
| Listing ID | 972569 |
| Price per unit | €6 / m2 |
| Floor | 1. floor |
|---|---|
| Land office | 202 m² |
What does this listing have to offer?
| Parking |
| MHD 3 minutes on foot |
What you will find nearby
Still looking for the right one?
Set up a watchdog. You will receive a summary of your customized offers 1 time a day by email. With the Premium profile, you have 5 watchdogs at your fingertips and when something comes up, they notify you immediately.












