
Flat to rent 3+1 • 91 m² without real estateBergstraße 9, , Baden-Württemberg
Bergstraße 9, , Baden-WürttembergPublic transport less than a minute of walking • Lift • GarageThe offered multi-family house presents itself as a modern residential complex built in high-quality, solid construction. Overall, the building comprises 6 generously sized rental apartments that impress with bright room concepts, clear lines, and a harmonious living feel.
Each apartment includes its own private outdoor area in the form of a balcony or terrace, which extends the living space outdoors and creates an ideal spot for relaxation in everyday life. An underground garage offers residents protected parking, complemented by short, convenient walks to the building. Additionally, each unit comes with its own share of basement storage.
For bicycle enthusiasts, easily accessible bicycle parking spaces are also available, making daily life easier and providing quick, straightforward usage.
The house in Windenreute is located in an idyllic and quiet setting, surrounded by gentle hills and lush forests. The location offers a picturesque view of the surrounding nature and is ideal for nature lovers in search of peace and recreation. At the same time, the connection to the nearby town of Emmendingen is excellent, so that shops, schools, and other essential services are quickly reachable. The proximity to hiking and cycling trails also makes the house attractive for outdoor activities. Windenreute is a charming village with a friendly community, making it an ideal place to live.
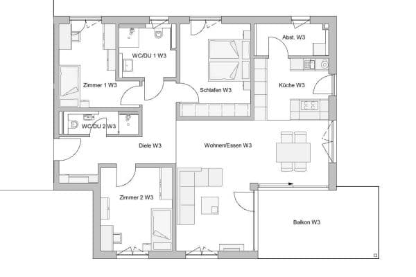
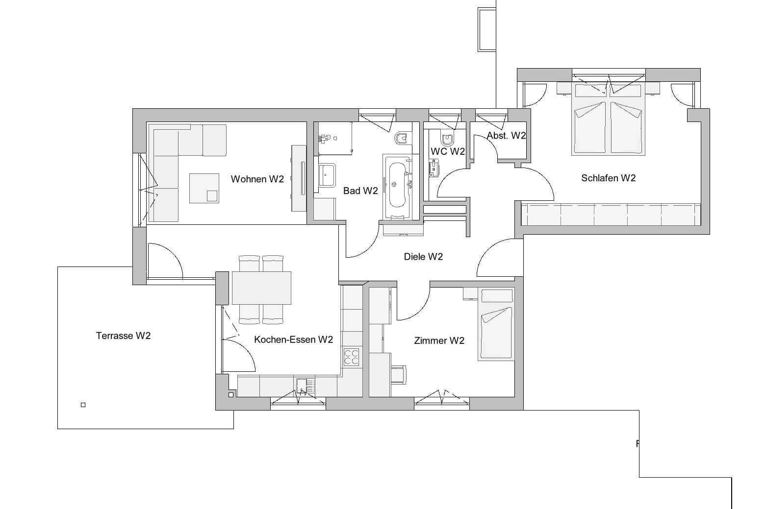
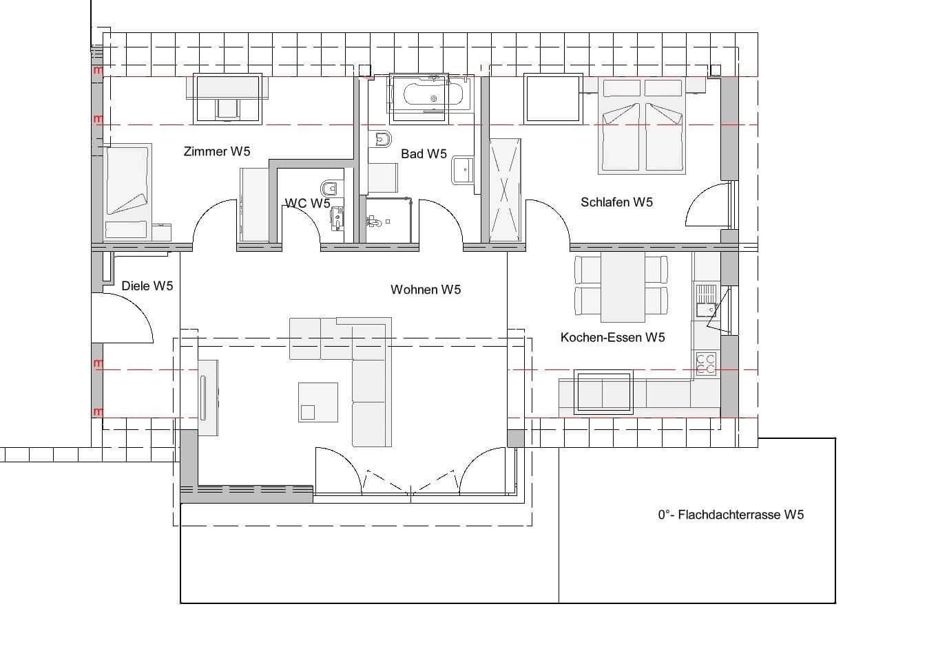
3-room apartment on the ground floor and attic | W2 and W5 (Attic 105.03 m², 1838€)
with terrace, storage room in the basement, underground parking space,
and bicycle parking space
Living area: 104.94 m²
Features:
• High-quality parquet and tiled floors
• Access via staircase or elevator
• Barrier-free
• Underfloor heating
• Towel radiator
• Modern equipped bathrooms with toilet and shower
Rent: 1,656.00€
plus additional costs: 300.00€
plus parking space: 90.00€
If you are interested in the apartments, please fill out the self-disclosure form (available via QR code in the exposé).
Property characteristics
| Age | Over 5050 years |
|---|---|
| Condition | New-build |
| Listing ID | 972517 |
| Usable area | 91 m² |
| Available from | 15/03/2026 |
|---|---|
| Layout | 3+1 |
| EPC | A - Extremely economical |
| Price per unit | €18 / m2 |
What does this listing have to offer?
| Balcony | |
| Lift | |
| Terrace |
| Garage | |
| MHD 0 minutes on foot |
What you will find nearby
Still looking for the right one?
Set up a watchdog. You will receive a summary of your customized offers 1 time a day by email. With the Premium profile, you have 5 watchdogs at your fingertips and when something comes up, they notify you immediately.


