
Flat to rent 2 bedroom • 70 m² without real estate, Bavaria
, BavariaPublic transport 3 minutes of walkingIn the heart of Goldbach yet pleasantly secluded, this fully renovated 2-room attic apartment stands out as a real residential gem. The combination of a high-quality, tastefully designed bathroom and a new, modern fitted kitchen gives the apartment an exclusive ambiance. Bright rooms, a well-thought-out layout, and the charming attic character create an inviting living atmosphere. In addition, a shared area of the garden offers space for outdoor relaxation – a rare extra in such a central location.
The apartment is situated in a pleasantly quiet yet centrally located residential area of Goldbach. Shops for daily necessities, schools, kindergartens, and medical care are conveniently within walking distance. The transport connections are excellent: Aschaffenburg’s city center is only a few minutes away, and the nearby A3 allows quick and easy access to the Rhine-Main area. Despite its traffic-convenient location, the immediate surroundings offer a well-maintained, relaxed atmosphere with short journeys to green areas – ideal for anyone seeking both tranquility and accessibility.
The apartment has been comprehensively renovated and is presented with high-quality, contemporary features. Every area has been modernized with carefully selected materials. The new, stylish bathroom as well as the equally new, custom-made fitted kitchen set distinctive accents and offer the highest level of comfort. Thanks to the complete renovation, it is a brand-new property – everything is new, fresh, and ready to move in immediately.
Property characteristics
| Available from | 16/12/2025 |
|---|---|
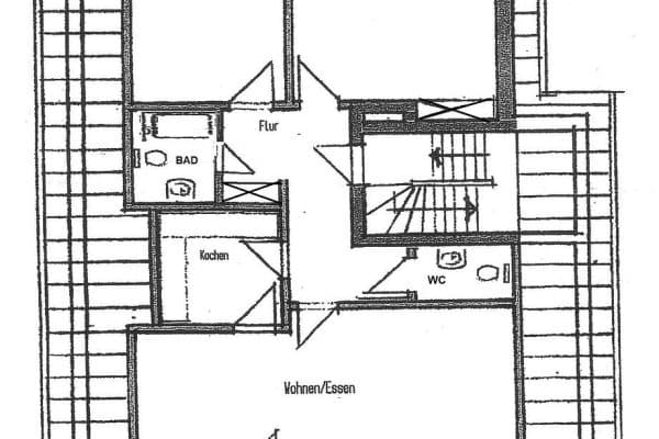
| Layout | 2 bedroom |
| Listing ID | 972263 |
| Price per unit | €13 / m2 |
| Condition | After reconstruction |
|---|---|
| Floor | 2. floor out of 3 |
| Usable area | 70 m² |
What does this listing have to offer?
| MHD 3 minutes on foot |
What you will find nearby
Still looking for the right one?
Set up a watchdog. You will receive a summary of your customized offers 1 time a day by email. With the Premium profile, you have 5 watchdogs at your fingertips and when something comes up, they notify you immediately.









