
Flat for sale 2+kk • 65 m² without real estateHamburg Hausbruch Hamburg 21147
The bright, friendly 2.5-room ground floor apartment is located in a multi-family house. The 65 m² of living space is spread over 2 levels. The building was constructed in 1997 and features a red clinker façade. The house is equipped with a gas central heating system in good condition. The entire residential complex consists of 8 apartments. In addition, the building also offers a communal garden, a bicycle shed, and parking spaces in front of the house.
The monthly homeowners’ fee currently amounts to €330.00. This fee includes all ancillary costs such as insurance, administration, maintenance reserve, heating, and hot water costs – but not the expenses for electricity, telephone/internet, or TV.
The property is an approximately 885 m² freehold piece of land – not leasehold!
The maintenance reserve account is well funded.
The apartment is currently tenanted, with the current net cold rent amounting to €820.00 per month.
It is located on a quiet residential street, only a few minutes from supermarkets and the nature reserve, and close to the Neuwiedenthal S-Bahn station.
Hausbruch offers a very convenient location south of the Elbe owing to its short distance to the A7 motorway and the S-Bahn connection, while simultaneously providing a high quality of life in a well-kept, intact residential environment. Everything is excellently provided for children, from kindergarten to elementary school, all within pleasantly short distances.
The green surroundings offer almost endless opportunities for running, walking, cycling, and strolling.
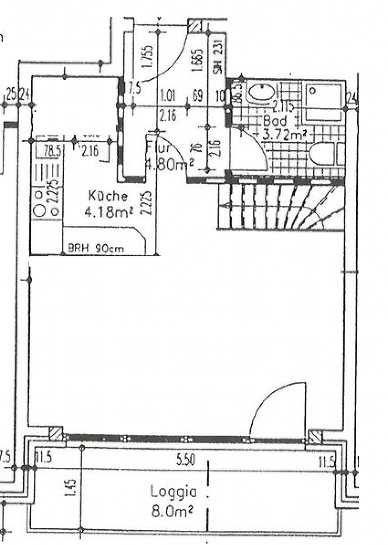
The approximately 65 m² ground floor souterrain maisonette apartment impresses with its clear and well-thought-out floor plan. Upon entering the apartment, you turn left into an approximately 4 m² windowless shower room/guest WC. The wall covering in the bathroom consists of white tiles.
After passing the hallway, you enter the approximately 21 m² living-dining area with the attached high-quality fitted kitchen from 2012, which comes fully equipped. The floor on the ground floor was also renewed in 2012 with modern tiles. A window front extending along the entire length of the room to the west ensures plenty of natural daylight.
Through the terrace door, you step outside onto an 8 m² terrace/loggia and into your private garden.
You reach the lower floor via a spacious staircase that leads to an approximately 20 m² passage room, excellently suited as a home office or dressing room. From there, you access the 11 m² bedroom, which features a large, well-designed fitted wardrobe. An additional en suite bathroom of approximately 4 m², modernized in 2010, includes a washbasin, WC, and a large bathtub.
The plastic windows with muntins in the apartment are painted white. The apartment and room doors are made of white fiberboard. All rooms on the lower floor, except for the bathroom, are finished with laminate flooring.
Additionally, the lower floor bathroom is equipped with a washing machine connection.
The apartment includes a private 6 m² cellar room for storage, as well as access to a bicycle shed shared by the residents in the garden. A parking space in front of the house also belongs to the apartment.
Property characteristics
| Age | Over 5050 years |
|---|---|
| Layout | 2+kk |
| Usable area | 65 m² |
| Condition | After reconstruction |
|---|---|
| Listing ID | 971450 |
| Price per unit | €4,000 / m2 |
What does this listing have to offer?
| Balcony | |
| Parking | |
| Terrace |
| Basement | |
| MHD 9 minutes on foot |
What you will find nearby
Still looking for the right one?
Set up a watchdog. You will receive a summary of your customized offers 1 time a day by email. With the Premium profile, you have 5 watchdogs at your fingertips and when something comes up, they notify you immediately.



















