
Flat to rent 2 bedroom • 47 m² without real estateNa Folimance, Prague - Vinohrady
Na Folimance, Prague - VinohradyPartially equippedLiability insurance requiredVerification of debt-free status requiredInterested?
Communicate all private owners and save CZK 25,000 on commissions.
Nabízíme k pronájmu příjemný a světlý byt o velikosti 2+1 a podlahové ploše 47 m² v atraktivní lokalitě Prahy 2, Na Folimance.
Byt se nachází v klidné, málo frekventované ulici s výbornou dostupností. Dům se nachází jen pár kroků od tramvajových zastávek, odkud je možné dojet na metro I. P. Pavlova přibližně za 6 minut a na Karlovo náměstí za zhruba 8 minut. Okolí tvoří zeleň včetně oblíbeného parku Folimanka, ideálního pro volný čas.
Interiér bytu působí vzdušně díky velkým oknům orientovaným na jihovýchod, které propouštějí dostatek denního světla. Kuchyň je plně vybavená moderní linkou zahrnující myčku, troubu, lednici, varnou desku i digestoř. Byt je jinak nezařízený, nicméně dle potřeby je možné vybrané vybavení doplnit. Okna jsou osazena bezpečnostními mřížemi, které zvyšují pocit soukromí i bezpečí.
Dům je cihlový, udržovaný a poskytuje příjemné a klidné bydlení bez rušivých vlivů.
Pronájem probíhá přímo od majitele, tedy bez provize, a kauce činí dvojnásobek měsíčního nájmu. Měsíční poplatky za elektřinu, plyn a SVJ vycházejí přibližně na 6 000 Kč.
Pokud hledáte tiché a pohodlné bydlení v centru města s výbornou dopravní dostupností, tento byt představuje velmi zajímavou volbu.
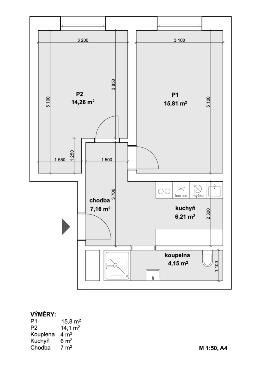
We offer for rent a pleasant and bright 2+1 apartment with a floor area of 47 m² in the attractive area of Prague 2, Na Folimance.
The apartment is located on a quiet, low-traffic street with excellent accessibility. The building is just a few steps from tram stops, from which you can reach the I. P. Pavlova metro station in approximately 6 minutes and Karlovo Square in about 8 minutes. The surrounding area is green, featuring the popular Folimanka Park, ideal for leisure time.
The interior of the apartment feels airy thanks to large southeast-facing windows that allow plenty of natural light. The kitchen is fully equipped with a modern suite including a dishwasher, oven, refrigerator, stove, and extractor. The apartment is otherwise unfurnished, although selected furnishings can be added if desired. The windows are fitted with security grilles, which enhance privacy and safety.
The building is made of brick, well-maintained, and offers pleasant and peaceful living without disruptive influences.
The rental is arranged directly with the owner, so there is no commission, and the security deposit is twice the monthly rent. Monthly fees for electricity, gas, and the homeowners’ association come to approximately 6,000 CZK.
If you are looking for quiet and comfortable accommodation in the city center with excellent transport connections, this apartment is a very attractive option.
Property characteristics
| Available from | 01/02/2026 |
|---|---|
| Building construction | Brick |
| Fully furnished | Partly |
| Listing ID | 971402 |
| Usable area | 47 m² |
| Condition | Very good |
|---|---|
| Layout | 2 bedroom |
| Floor | 1. floor out of 8 |
| Location | Centre |
| Price per unit | CZK 532 / m2 |
What you will find nearby
Interested?
Communicate all private owners and save CZK 25,000 on commissions.


Flat to rentKardausova, Prague - Dolní Měcholupy- 2+kk
- 62 m²
CZK 24,000 + CZK 7,000CZK 26,000
Save CZK 2,000


Still looking for the right one?
Set up a watchdog. You will receive a summary of your customized offers 1 time a day by email. With the Premium profile, you have 5 watchdogs at your fingertips and when something comes up, they notify you immediately.


















