
Flat to rent 4+1 • 130 m² without real estate, North Rhine-Westphalia
, North Rhine-WestphaliaPublic transport 1 minute of walking • ParkingMonthly rent€1,300
+ Service charges€200
+ Refundable deposit€3,600
Translated with the help of AI
Very nice, bright apartment in Sondern for sale. Living right by the Bigge, where others go on holiday. Bus and train connection.
Living in the beautiful Sauerland on the Bigge. In the holiday resort of Sondern.
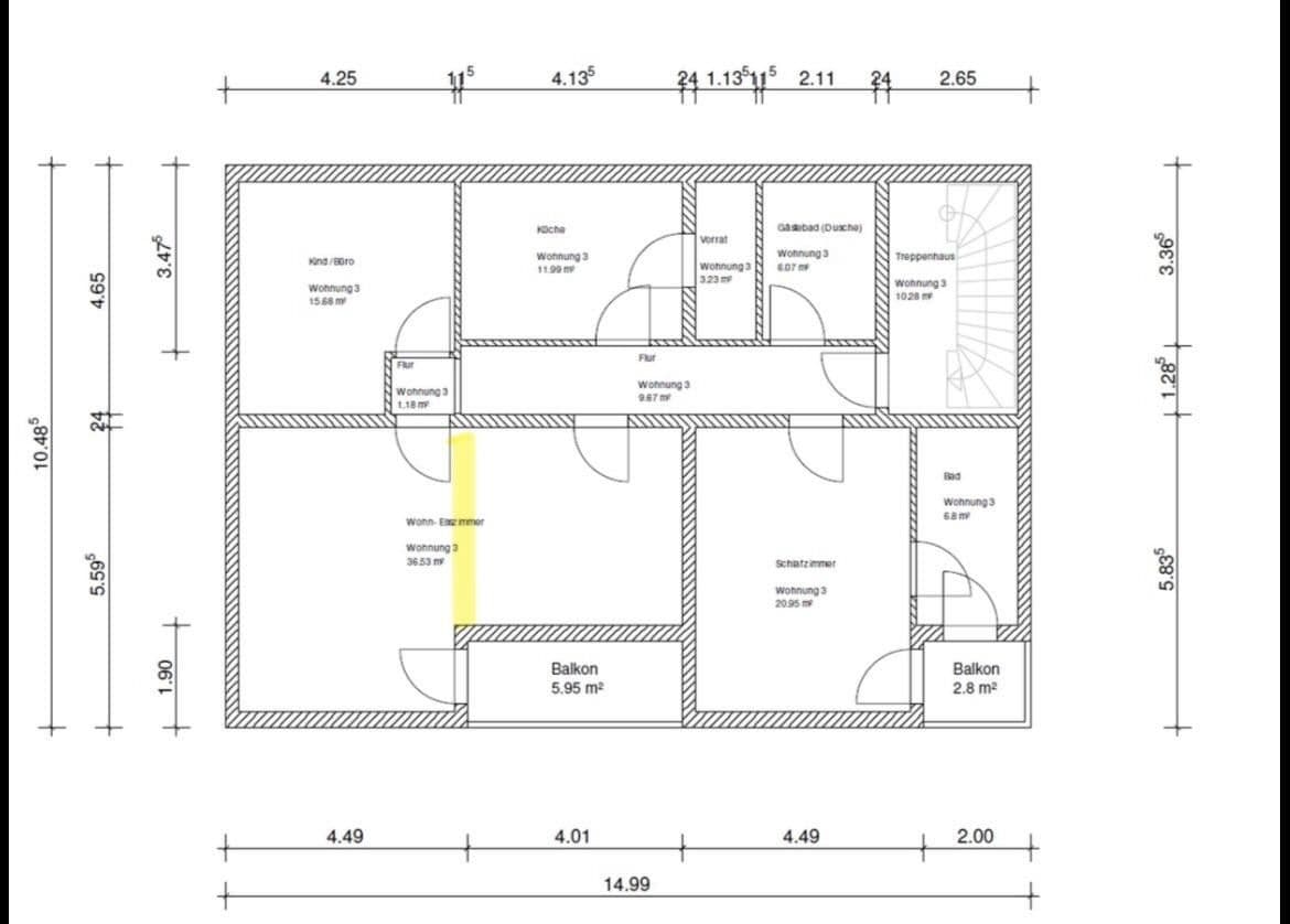
At the tenant’s request, the wall marked in yellow can be installed to create one additional room.
Property characteristics
| Age | Over 5050 years |
|---|---|
| Condition | After reconstruction |
| Floor | 1. floor out of 2 |
| Usable area | 130 m² |
| Available from | 11/12/2025 |
|---|---|
| Layout | 4+1 |
| Listing ID | 971179 |
| Price per unit | €10 / m2 |
What does this listing have to offer?
| Balcony | |
| Parking | |
| Terrace |
| Basement | |
| MHD 1 minute on foot |
What you will find nearby
Public transportOlpe Krankenhaus
🚶 44 m (1 min)
Post officeDeutsche Post Olpe
🚶 830 m (10 mins)
ShopBäckerei Hesse Paul
🚶 78 m (1 min)
BankDeutsche Bank
🚶 140 m (2 mins)
RestaurantPizzeria Etna
🚶 136 m (2 mins)
PharmacyBiggekosmetik
🚶 30 m (0 mins)
SchoolTurnhalle Hohensteinschule
🚶 262 m (3 mins)
KindergardenOberlin-Kindergarten
🚶 336 m (4 mins)
Sports field
🚶 402 m (5 mins)
Playground
🚶 160 m (2 mins)
How far to…:
Monthly rent€1,300
+ Service charges€200
+ Refundable deposit€3,600
Still looking for the right one?
Set up a watchdog. You will receive a summary of your customized offers 1 time a day by email. With the Premium profile, you have 5 watchdogs at your fingertips and when something comes up, they notify you immediately.






