House for sale • 824 m² without real estateMünchen Maxvorstadt Bayern 80333
NO COMMISSION, SALE BY THE OWNER.
RARE FIND, APARTMENT BUILDING IN THE CITY CENTER
THE PROPERTY IS OFFERED VIA A BIDDING PROCEDURE. MINIMUM BID € 8,250,000.‑
The property is not located in an area subject to preservation statutes!
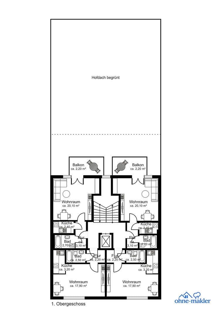
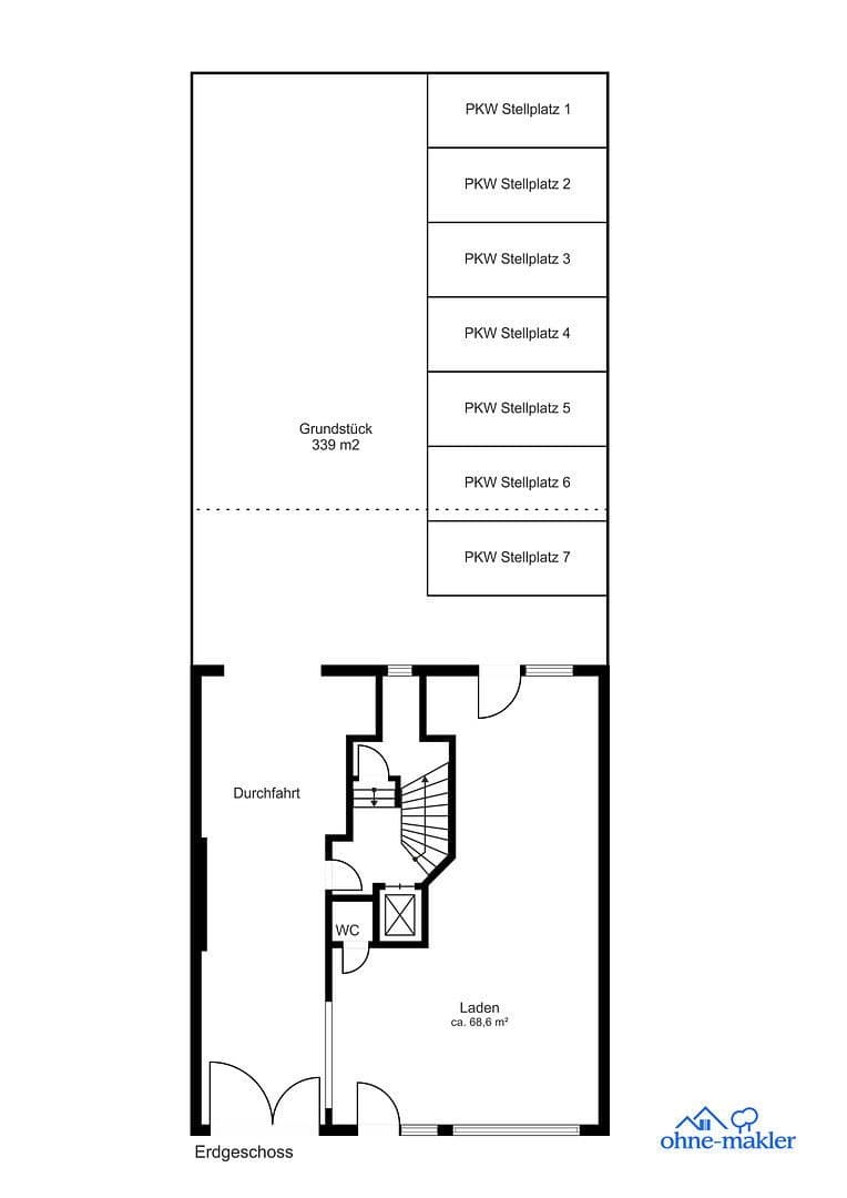
The residential building comprises 24 apartments – 12 of which feature balconies facing west – in addition to a ground-floor retail space and rented basement rooms. The price includes 7 car parking spaces and 4 motorcycle parking spaces.
The rented living (and total) area of 823.60 sqm as mentioned in the advertisement is composed as follows:
• Retail space on the ground floor with approx. 68.60 sqm
• 10 apartments facing east with approx. 25.85 sqm each
• 10 apartments facing west with approx. 30.50 sqm each
• Two mansard (attic) apartments with approx. 22.55 sqm each
• Two additional mansard apartments configured as attractive maisonette units with approx. 25.70 sqm of living area each, plus approx. 15.60 sqm of non-living area in the second apartment and approx. 24.40 sqm of non-living area on the attic gallery level
• A storage room in the basement of 55.00 sqm
Basic Information:
• Cold rent from 01.01.2026 per annum: €274,000
• Cold rent from 01.01.2027 per annum: €285,500
• Potential cold rent per annum: approx. €372,000 for furnished rentals
Currently, the apartments are rented unfurnished.
Additional costs (heating, hot water, and operating costs) per annum: approx. €39,700
Cold rents from 01.01.2026 (approximate rates):
Office: €/sqm 30.17
Courtyard: €/sqm 4.21
Basement: €/sqm 13.64
Apartment: €/sqm 29.14 on average
*Comparable rent according to the Munich Rent Index 2025, plus a 10% rent cap, equals approx. €/sqm 31.20
The building is in very good condition and built to new standards.
THERE IS NO RENOVATION BACKLOG.
Internet: The building is equipped with an M-Net fiber-optic connection. Tenants are free to choose the connection speed and provider.
2004 TO 2005 THE PROPERTY UNDERWENT A COMPLETE CORE RENOVATION. The individual works included:
• Complete renewal of the district heating central heating system with new controls, valves, hot water boiler, heat exchanger, pressure equalization vessels with automatic refill, and all associated pipelines.
Within the apartments:
– Interior doors replaced with full-height glass doors
– Large floor-to-ceiling windows (approx. 2.00 x 2.20 m) equipped with blinds
– Video intercom system
– Bathrooms equipped with all sanitary facilities: 20 with bathtubs, 5 with showers; all walls fully tiled
– Cold and hot water pipes and heating pipes—all in stainless steel
– In the living areas: tubular radiators; in the bathrooms: towel warmers
– Flooring: laminate in living areas; tiles in kitchens, hallways, and bathrooms
– Electrical systems in the apartments renewed
– 12 spacious balconies were added on the courtyard side
Additional building improvements:
– Wastewater pipes replaced with SML steel pipes
– New entrance gate and access door for the courtyard passage
– Roof and facade insulation updated to current energy standards
– Natural stone tiles installed on the street-facing facade and in the passage to the rear courtyard
– Drainage systems (rigolage) for rainwater infiltration
– Courtyard passage: Sealed with stone pavers
– Courtyard area: Infiltration-permeable paving
– Free laundry facility provided in the basement
In 2014, 11 kitchens were renewed.
In 2019, the elevator including its control system was renewed, and the stairwell landings were paved with natural stone.
In 2020, the stairwell received new paint.
In 2023, 9 kitchens were renewed and a new entrance door was installed.
In 2024 and 2025, one new kitchen was installed each year.
The building was originally constructed in 1955 to a solid standard and is not under heritage protection.
The property is supplied with district heating (hot water).
Land plot size is 339 sqm with a standard land value of €16,500 per sqm as of 01.01.2022. Due to its proximity to the university, the one-room apartments are in very high demand; the current waiting list includes 14 persons. The apartments have not been advertised for over a decade.
Königsplatz and Stiglmeierplatz can be reached on foot in just 5 minutes.
Public Transport:
– From Königsplatz: U2, U8, and bus lines 58, 100, and 150
– From Stieglmeierplatz: U1, U7, tram lines 20 and 21, and bus lines 58 and 68
The main train station can be reached in approximately 15 minutes.
Munich’s Maxvorstadt is young and dynamic, with the immediate area teeming with cafes, bars, and a wide variety of restaurants. Supermarkets, pharmacies, hairdressers, and banks are all within a 2-minute walk.
Cultural institutions such as the Glyptothek, State Collection of Antiquities, Lenbach Museum, Geological State Collection, Documentation Center for National Socialism, and Museum of Egyptian Art are all no more than 5 minutes away.
The university—with its various facilities such as the Technical University and its library, TUM School of Management, University of Television and Film, University of Music and Performing Arts, and the cafeteria on Arcisstrasse—is reachable by bike within 10 minutes.
Thanks to the central location and proximity to the university, these small apartments are extremely sought after. The tenant mix is predominantly young professionals and students.
The property offers a rented area of approx. 823.60 sqm, including 7 car parking spaces in the courtyard (five of which are covered) and 4 roofed motorcycle parking spaces. The basement area is 50% leased; other rooms in the basement include the laundry room, boiler room, electricity meter room, a WC with a shower, and the caretaker’s office.
The full 823.60 sqm – encompassing the developed basement, the retail space with courtyard area, and up to the roof ridge – has been continuously rented for decades, irrespective of whether the space is living area, utility area, or commercial space.
* Owing to its central location, the vacancy rate is record-low—under 0.1% over the past 5 years.
Currently, the entire property is fully rented.
The courtyard, approx. 185 sqm (of which 118 sqm is covered), including all parking spaces, is leased by the retail tenant. The commercial tenant has been a reliable contractual partner since 1988, with the next generation ready to steer the company into the future with fresh enthusiasm.
The greened courtyard roof serves as an oasis for birds and insects. The apartments facing the courtyard are exceptionally quiet and benefit from a western orientation; the floor-to-ceiling insulated glass windows bathe the rooms in sunlight until late in the evening.
The fittings are of a high standard. Every apartment comes with a fitted kitchen provided by the landlord.
Rental details:
• 18 apartments feature a graduated rental agreement with annual increases of about 2% on January 1st.
• The remaining 6 apartments operate on an indexed rental agreement.
For the commercial lease, starting in 2027 an indexation clause is in effect to secure its value.
The rental index for Maxvorstadt has increased by more than 20% over the last three years.
POTENTIAL:
There is significant demand for furnished apartments, especially in this prime location. With appropriate furnishing, returns can be increased by approximately 30%.
ABOUT THE BIDDING PROCEDURE:
Please view the property in person before placing a bid.
Viewing requests should be sent by email along with your telephone number. Appointments will then be arranged by phone.
The minimum bid for this apartment building, including the parking spaces, is €8,250,000.
Please note: The bidding procedure is not an auction. Neither party (buyer or seller) is bound until the notary appointment. The prospective buyer’s bid is merely an expression of intent to purchase; the seller retains full discretion as to whether to accept the offer.
The sale is conducted directly by the owner and is therefore commission-free.
The bidding procedure is managed solely by the seller.
If you have any questions regarding the bidding procedure, please contact us!
Please, no broker inquiries for general mediation.
Property characteristics
| Age | Over 5050 years |
|---|---|
| Listing ID | 970935 |
| Land space | 339 m² |
| Price per unit | €10,012 / m2 |
| Condition | After reconstruction |
|---|---|
| Usable area | 824 m² |
| Total floors | 7 |
What does this listing have to offer?
| Balcony | |
| Parking |
| Lift | |
| MHD 2 minutes on foot |
What you will find nearby
Still looking for the right one?
Set up a watchdog. You will receive a summary of your customized offers 1 time a day by email. With the Premium profile, you have 5 watchdogs at your fingertips and when something comes up, they notify you immediately.























