
House for sale • 227 m² without real estateTainger Straße 15f Pastetten Zeilern Bayern 85669
The house was built in the traditional solid brick construction method. (Brick Proton T8 36.5 cm filled with rock wool).
The basement floor slab is insulated with 16 cm of Styrodur, and the basement exterior walls are similarly insulated.
The exposed roof truss features top-side insulation from Bauder PIR ST, with aluminum cladding on both sides all around, featuring a tongue-and-groove connection with WLS 0.24, a thickness of 160 mm, and a U-value of 0.14.
The masonry garage has an exposed roof truss and provides dry access to the house’s entrance.
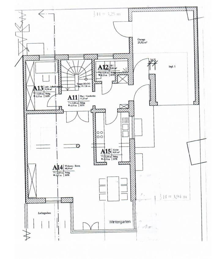
The heart of the house is the light-filled conservatory, which serves as a living/dining area.
There is a fireplace connection in the living/dining area for solid fuels, executed in stainless steel.
At the property boundary on the north/west side, there is a 2-meter-high gabion wall.
The semi-detached house is located in the municipality of Pastetten in the district of Zeilern, set in a rural, green area.
Nearby are a daycare center, kindergarten, primary school, doctor, bank, butcher, post office, and local clubs.
More information about the municipality of Pastetten can be found at http://www.pastetten.de/
Transportation:
- 2 km to the A94 highway
- 5 km to Markt Schwaben (S2, DB, Bus 505)
- 20 minutes by car to the outskirts of Munich
- 25 km to the airport
A high-quality air/heat pump is available for heating or, in summer, cooling via underfloor heating.
There is underfloor heating throughout the entire house, including the hobby room.
High-quality tiles from V&B cover the ground floor and bathrooms.
The rooms feature hardwood flooring in oiled oak country plank style.
On the south terrace, south balcony, and the north/west side of the house, there is a high-quality granite surface.
It would be possible to convert the courtyard area into a garden for children.
If you have any further questions, please feel free to contact me.
Viewing appointments can be arranged by appointment.
Private sale, no commission.
Please, no inquiries from real estate agents.
Property characteristics
| Age | Over 5050 years |
|---|---|
| Listing ID | 970664 |
| Usable area | 227 m² |
| Total floors | 4 |
| Condition | New-build |
|---|---|
| EPC | A - Extremely economical |
| Land space | 286 m² |
| Price per unit | €4,399 / m2 |
What does this listing have to offer?
| Balcony | |
| Garage | |
| MHD 1 minute on foot |
| Basement | |
| Parking | |
| Terrace |
What you will find nearby
Still looking for the right one?
Set up a watchdog. You will receive a summary of your customized offers 1 time a day by email. With the Premium profile, you have 5 watchdogs at your fingertips and when something comes up, they notify you immediately.





















