
Flat to rent 3+1 • 95 m² without real estate, Lower Saxony
Bright, sunny top-floor apartment in a central location in Hildesheim. Thanks to its rear-facing aspect with a magnificent view over the rooftops of Hildesheim, the apartment offers complete tranquility. The living area features large atelier windows on the south side, making it especially bright.
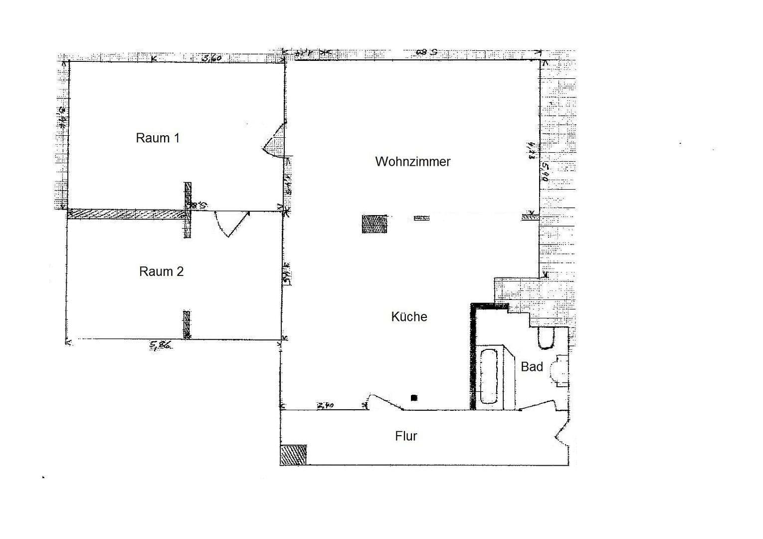
The apartment consists of three spacious rooms and a charming bathtub bathroom with a window. It is situated on a quiet side street in the center of Hildesheim.
All modes of transportation, schools, and shopping facilities are in the immediate vicinity. Several parking options are available in the surrounding area.
• Laminate flooring in all living areas
• Fitted kitchen with stove, oven, and dishwasher
• Bathtub bathroom with window, tiles in an Italian-Tuscan style with shell frieze
• Washing machine
• Laminate flooring in all living areas
• Intercom system
Please make first contact via email, including your telephone number. Kindly provide details about your private and professional situation, including net income and the number of persons.
Property characteristics
| Age | Over 5050 years |
|---|---|
| Condition | After reconstruction |
| Floor | 4. floor |
| EPC | C - Economical |
| Price per unit | €8 / m2 |
| Available from | 03/12/2025 |
|---|---|
| Layout | 3+1 |
| Listing ID | 970387 |
| Usable area | 95 m² |
What does this listing have to offer?
| Basement |
| MHD 0 minutes on foot |
What you will find nearby
Still looking for the right one?
Set up a watchdog. You will receive a summary of your customized offers 1 time a day by email. With the Premium profile, you have 5 watchdogs at your fingertips and when something comes up, they notify you immediately.





