
Plot for sale • 20000 m² without real estate, Saxony
For sale is a commercial property located in the immediate vicinity of Leipzig/Halle Airport with a total area of approximately 20,000 m².
The property is ideally suited for a variety of commercial uses and is situated in a high-traffic area with excellent transport connections.
A legally binding development plan (B-plan) is available and enables the prompt realization of your construction project. According to the B-plan’s provisions, construction with a gross floor area (GFA) of approximately 20,000 m² is permitted. The allowable plot ratio (GRZ) is 0.8. The maximum ridge height of the buildings – depending on the specific planning – ranges between 13 and 15 meters.
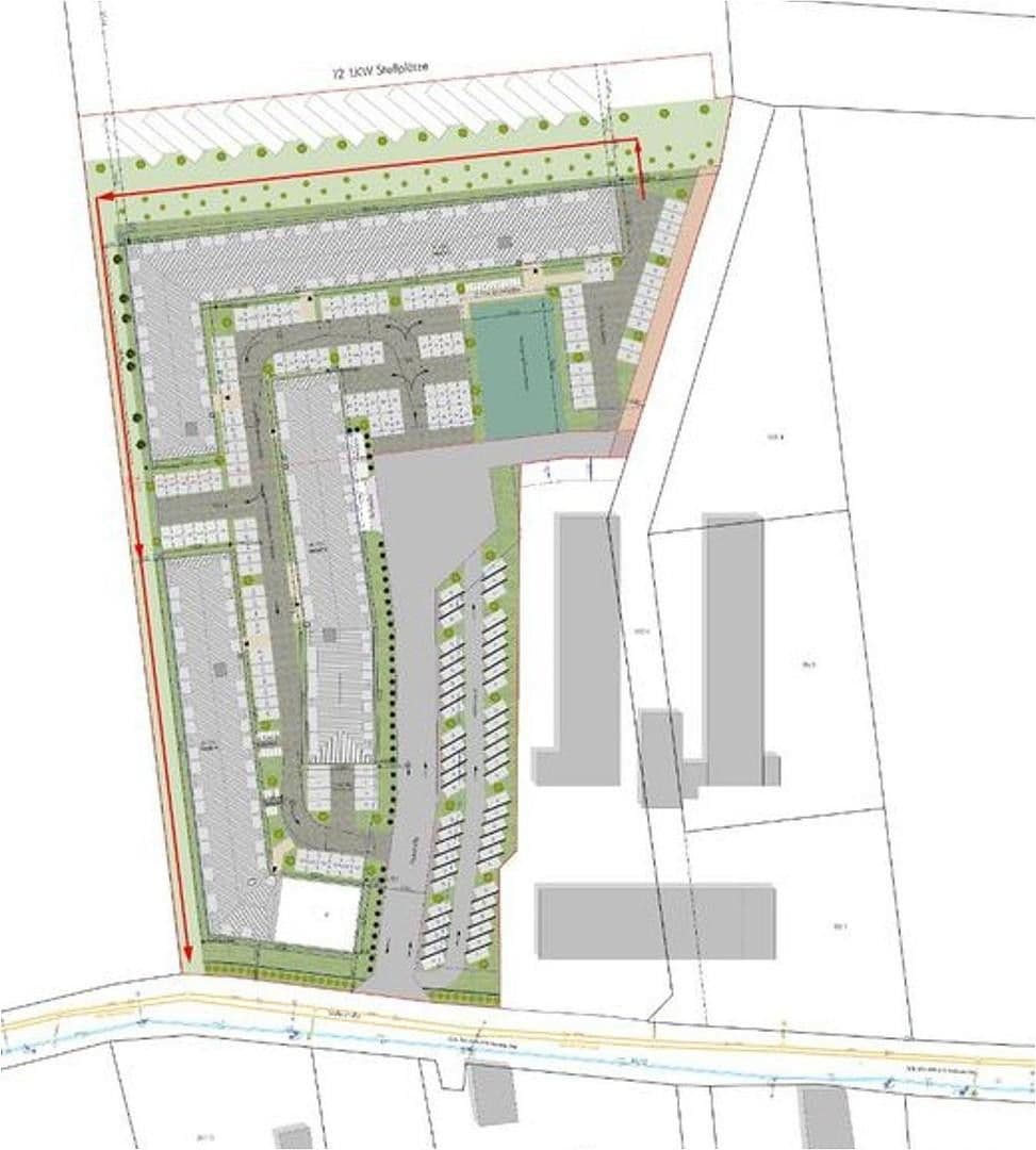
Note: The attached visualizations are provided solely to illustrate a possible development variant, for example, a hotel or boarding house with parking spaces for trucks and cars. They do not represent a binding plan.
According to § 8 para. 1 BauNVO, among other things, the following uses are permitted:
– All types of commercial operations
– Warehouses and storage areas
– Retail, office, and administrative buildings
– Public utilities
– Gas stations as well as sports facilities
The sale can be conducted either as a share deal or an asset deal.
- Purchase price in a Share Deal: €75 / m²
- Purchase price in an Asset Deal: €95 / m²
For further information or to schedule a viewing appointment, please feel free to contact us.
The commercial property boasts an excellent geographic location; it is not far from the motorway junction of A9 (Berlin – Munich) / A14 (Dresden – Magdeburg) / A38 (Leipzig – Göttingen), as well as the new exhibition center and the entire industrial area with BMW, Porsche, DHL, among others. It is further complemented by a high number of federal highways and connections to the ICE train service and Leipzig/Halle Airport. An extensive local transportation network connects Leipzig with the surrounding municipalities and cities.
For any questions or additional information, please do not hesitate to contact me. I am available by phone from Monday to Friday between 9:00 AM and 6:00 PM. If you prefer, you can also send me a WhatsApp message at 0163-5152057.
Alternatively, you can email me at hildebrand@gpm.immobilien.
If you wish to speak directly with the owner, for example regarding purchase price negotiations, you can contact the owner, Mr. Peter Jugl, directly at 0170 9848571 or send a WhatsApp message.
Imprint
GPM GmbH
Hafenstraße 12
04416 Markkleeberg
Phone:
03 41 / 35 42 20 20
E-Mail:
info@gpm.immobilien
Represented by:
Peter Jugl
Company Registration:
Registered in the Commercial Register.
Register Court: Amtsgericht Leipzig
Registration Number: HRB 21518
Person Responsible for the Content (according to § 55 para. 2 RStV):
Peter Jugl
Property characteristics
| Listing ID | 970296 |
|---|---|
| Price per unit | €0 / m2 |
| Land space | 20,000 m² |
|---|
What does this listing have to offer?
| MHD 1 minute on foot |
What you will find nearby
Still looking for the right one?
Set up a watchdog. You will receive a summary of your customized offers 1 time a day by email. With the Premium profile, you have 5 watchdogs at your fingertips and when something comes up, they notify you immediately.



