House for sale • 343 m² without real estate, Bavaria
In Mengkofen, a modern, solidly built architect’s house is for sale. The building is completely basemented and offers a total of approximately 441 m² of living and usable space.
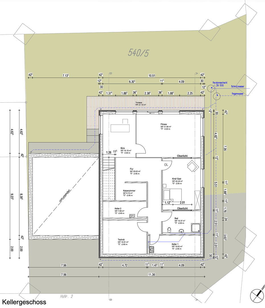
In the basement, three rooms have been used as children’s rooms. Another children’s room features a sliding door that opens to the garden. Additionally, there are two storage rooms as well as a heating and technical room. A bathroom with a shower and a skylight is also available.
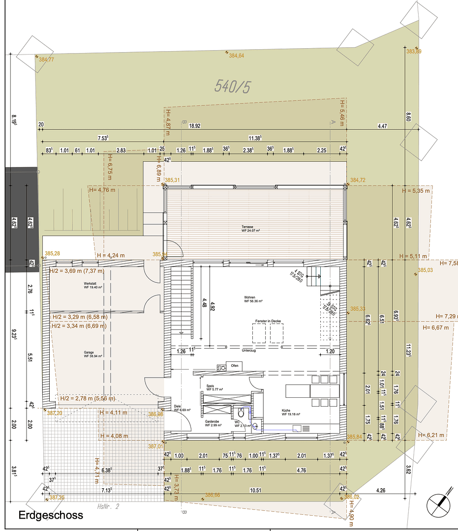
On the ground floor, there is a spacious living and dining area that is planned as an open concept together with the kitchen. The area is visually separated by a larch wood shelf, yet it remains experienced as a single room. The living area provides access to a conservatory of around 50 m².
The kitchen is equipped with a high-quality fitted kitchen, including a built-in coffee machine and appliances from Neff. A carpenter’s workbench is integrated into the kitchen island. The pantry is accessible from two sides, and there is also a guest toilet. In the living room, there is a high-performance wood stove. The garage and workshop are tiled and offer space for two vehicles as well as additional uses.
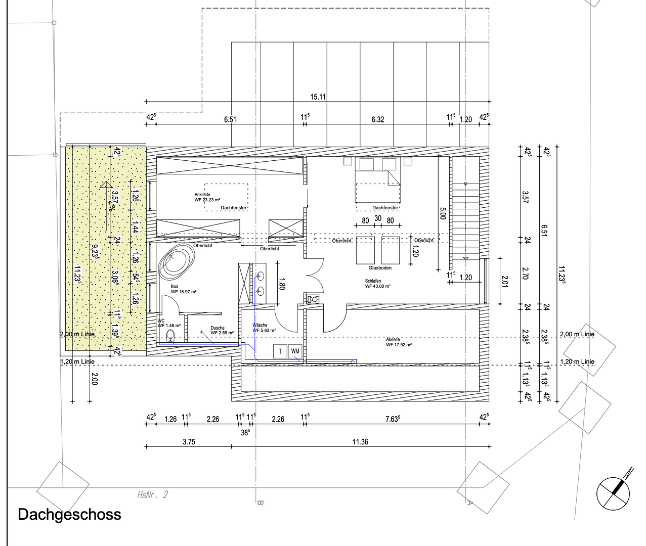
On the upper floor, two walkable glass surfaces are integrated into the floor. They channel daylight directly into the living area below and create a visible connection between the levels. This floor features a large bathroom, a very spacious dressing room, and a separate laundry room. The entire floor is finished with parquet. Parquet flooring in a herringbone design is also laid on the ground floor.
Heating is provided by an IDM Aero Alm 4–12 air-to-water heat pump. Underfloor heating is installed throughout the house. A central ventilation system from Zehnder with a preheating register ensures controlled supply and exhaust ventilation. Additionally, a 10 kWp photovoltaic system with an 18 kWh battery and emergency power function is installed on the roof.
The house is designed as a smart home. The foundation is a KNX system, which can alternatively be used completely via Apple HomeKit. The electrical installation features five-core cables, allowing the outlets to be switched individually. A camera at the entrance is integrated, and the front door is equipped with a fingerprint scanner. An 11 kW wallbox is installed in the garage.
The interior doors in the house are custom carpentry work.
The house is aimed at buyers who want plenty of space and value solid construction, a clear room layout, and modern technology.
Mengkofen is a municipality in the district of Dingolfing-Landau in Lower Bavaria. The location of the house “Am Freibad” offers a quiet yet well-connected residential area. Shops for everyday needs, as well as doctors and schools, are available in the immediate vicinity. Excellent transport connections allow quick access to the surrounding cities and important traffic routes.
Property characteristics
| Age | Over 5050 years |
|---|---|
| Listing ID | 970277 |
| Usable area | 343 m² |
| Total floors | 3 |
| Condition | Very good |
|---|---|
| EPC | A - Extremely economical |
| Land space | 657 m² |
| Price per unit | €3,936 / m2 |
What does this listing have to offer?
| Basement | |
| Parking | |
| Terrace |
| Garage | |
| MHD 1 minute on foot |
What you will find nearby
Still looking for the right one?
Set up a watchdog. You will receive a summary of your customized offers 1 time a day by email. With the Premium profile, you have 5 watchdogs at your fingertips and when something comes up, they notify you immediately.





























