House for sale • 273 m² without real estate, Hesse
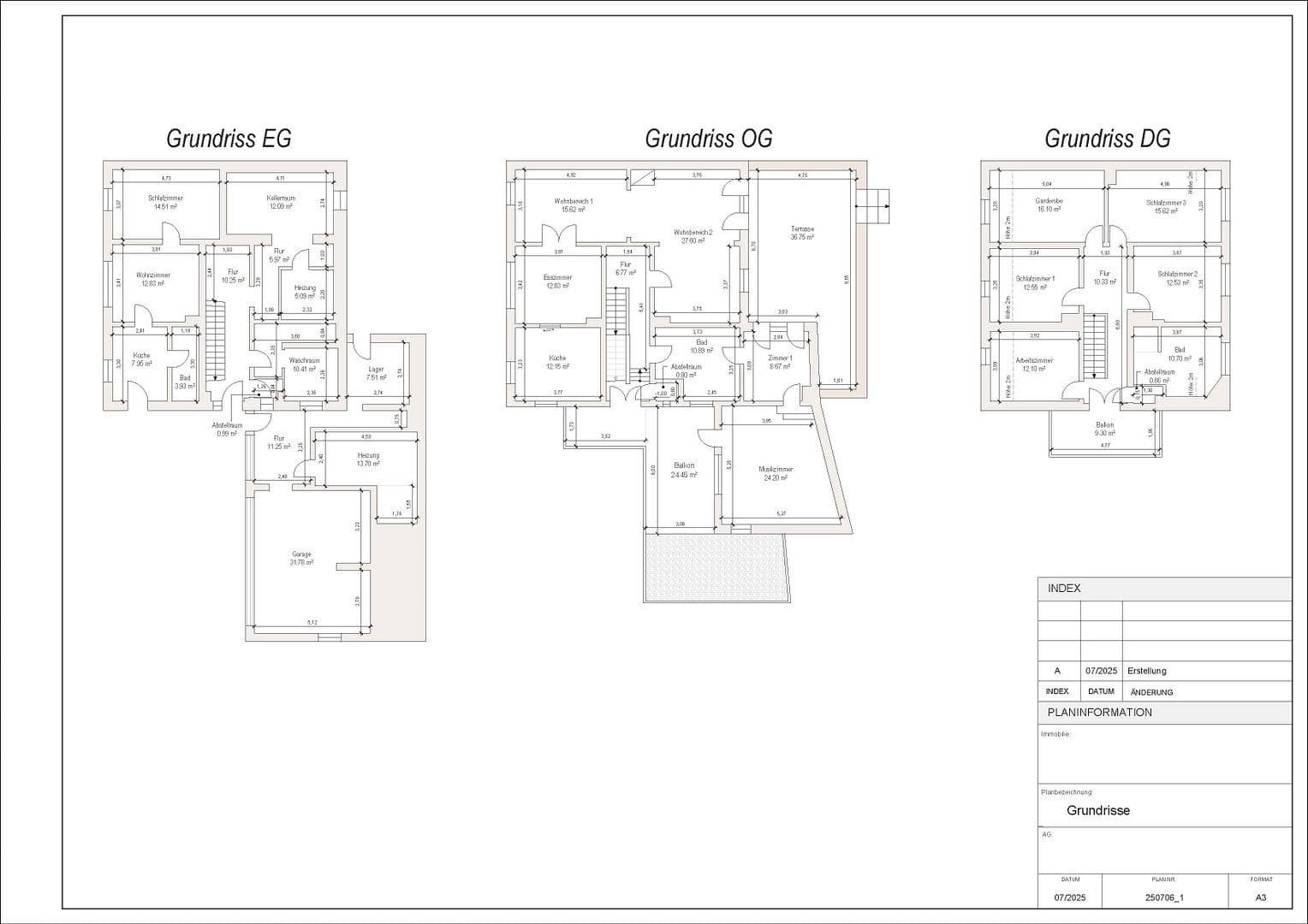
, HessePublic transport less than a minute of walking • Parking • GarageThis listed old town house from 1890 combines historical charm with modern living comfort. The property spans around 405 m² and is spread over three floors with 273 m² of living space and a total of 10 rooms.
In addition to the main apartment spread over 2 floors, the house offers a separate in-law apartment as well as very charming outdoor areas: a terrace, balconies, and an annex provide additional usage possibilities, such as a sauna and fitness room. A sauna preparation area is already in place. A double garage and 2 parking spaces are available in the private courtyard.
The house is located in the historic old town of Gelnhausen in a particularly quiet area. The surroundings are characterized by half-timbered houses and an established infrastructure. In just a 3-minute walk, you can reach both the upper and lower market squares. Shopping facilities, schools, doctors, and public transportation are also quickly accessible. Not to mention, the beautiful city garden is located in the immediate vicinity.
The renovation was carried out with great respect for the historical substance and an eye for detail. The original character was preserved and enriched with high-quality accents.
No commission fees – directly from the owner.
Viewings by appointment.
Property characteristics
| Age | Over 5050 years |
|---|---|
| Listing ID | 969715 |
| Land space | 405 m² |
| Price per unit | €3,601 / m2 |
| Condition | After reconstruction |
|---|---|
| Usable area | 273 m² |
| Total floors | 3 |
What does this listing have to offer?
| Balcony | |
| Garage | |
| MHD 0 minutes on foot |
| Basement | |
| Parking | |
| Terrace |
What you will find nearby
Still looking for the right one?
Set up a watchdog. You will receive a summary of your customized offers 1 time a day by email. With the Premium profile, you have 5 watchdogs at your fingertips and when something comes up, they notify you immediately.












