
Flat for sale 2 bedroom • 46 m² without real estateDarmstadt Darmstadt Hessen 64289
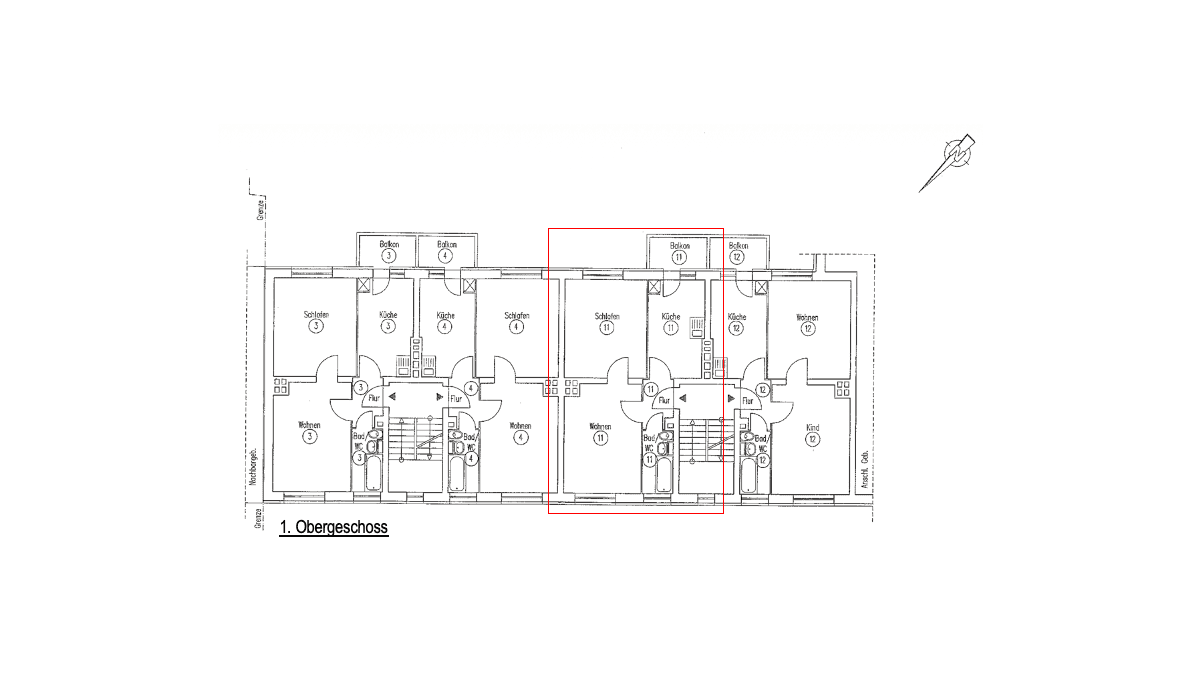
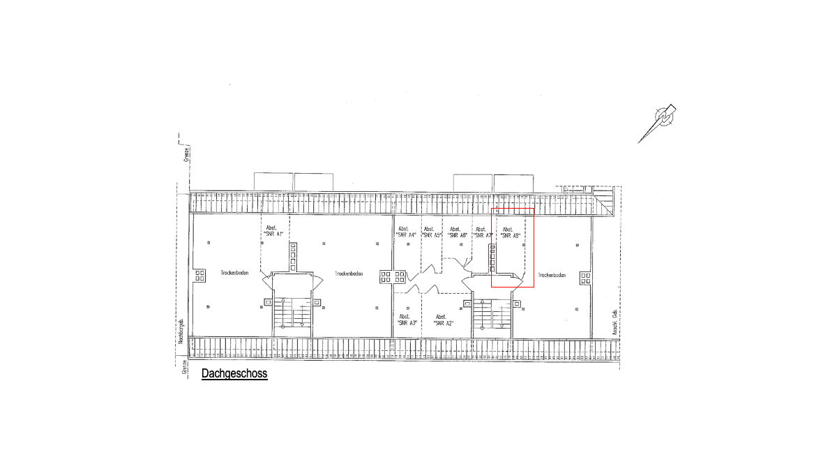
Darmstadt Darmstadt Hessen 64289Public transport 1 minute of walkingThis bright 2-room apartment with approximately 45 m² of living space is located on the 1st floor of a well-maintained apartment building in the popular Martins district. The apartment features a bathroom and a balcony that invites you to relax. A basement and a storage room in the attic provide additional storage space.
The residential complex includes a courtyard with a spacious green area.
The apartment will be available from January 1, 2026.
The science city of Darmstadt is a city with exceptional “future viability.” Due to the presence of scientific institutions, high-level development and production take place. The city’s economy is shaped by numerous renowned and globally active companies. Its geographical location and excellent transport connections add to its attractiveness: the Bergstraße/Odenwald Nature Park offers high recreational value. The surrounding cities of Frankfurt, Wiesbaden, Mainz, Aschaffenburg, and Heidelberg can be reached in about 30 minutes, while Frankfurt Airport is approximately 20 minutes away. Darmstadt has around 170,000 inhabitants.
The apartment is located about 400 meters from the UNESCO World Heritage Site Mathildenhöhe. The Rosenhöhe and the adjacent Darmstadt city forest are within a few minutes’ walk, offering opportunities for strolling and sports activities. The city center is located about 1.4 kilometers away.
The Martins district in Darmstadt is a lively neighborhood with a moderate population density and a good mix of residential and commercial areas. Its public transport connections are excellent. The neighborhood is considered safe and offers a pleasant atmosphere for students, young professionals, and retirees.
In the living room, bedroom, and hallway, there is wooden plank flooring, while the kitchen and bathroom feature tiled flooring.
The condition of the apartment is average and offers potential for individual customization.
The following renovation and modernization work has been carried out in the past three years:
- Renewal of the heating boiler
- Renovation of the cold, warm, and wastewater pipes as well as the recirculation lines
- Creation of a new garbage disposal area
- General cleaning of the stairwells
Property characteristics
| Age | Over 5050 years |
|---|---|
| Layout | 2 bedroom |
| Listing ID | 969656 |
| Price per unit | €4,630 / m2 |
| Condition | After reconstruction |
|---|---|
| Floor | Ground floor |
| Usable area | 46 m² |
What does this listing have to offer?
| Balcony | |
| MHD 1 minute on foot |
| Basement |
What you will find nearby
Still looking for the right one?
Set up a watchdog. You will receive a summary of your customized offers 1 time a day by email. With the Premium profile, you have 5 watchdogs at your fingertips and when something comes up, they notify you immediately.

















