
Flat to rent 3+1 • 89 m² without real estateDresden Plauen Sachsen 01189
Dresden Plauen Sachsen 01189Public transport 2 minutes of walking • ParkingAttic apartment in a quiet three-family house, freshly renovated, in a peaceful location with views of green, a large south-facing balcony, garden, heat pump, and possible parking.
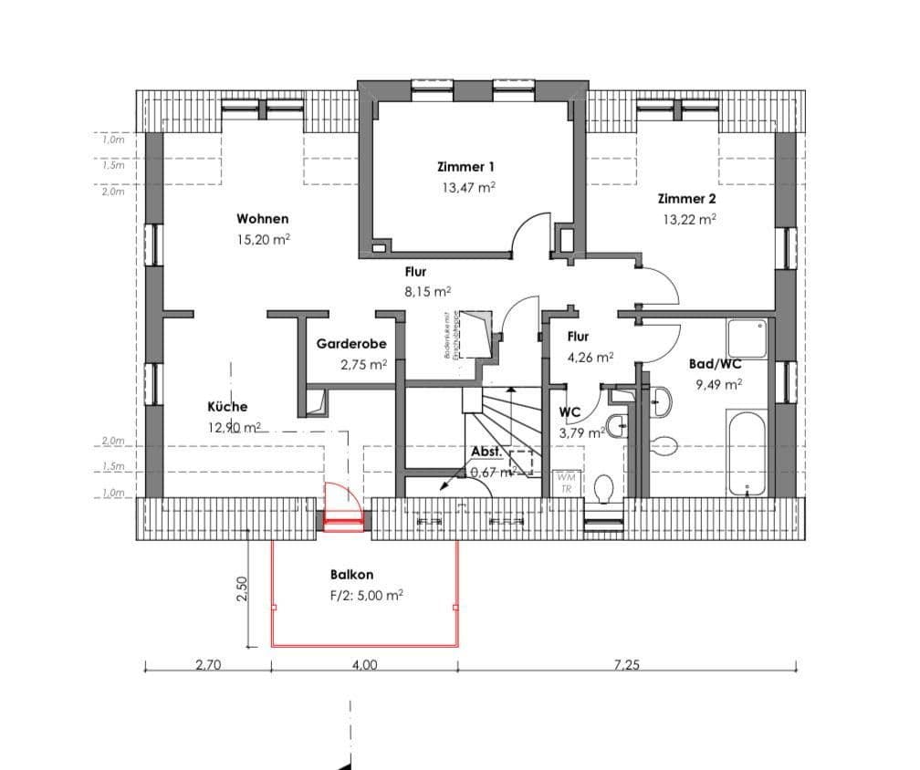
Bright top-floor apartment with a practical layout, newly renovated, in the green yet central Coschütz area is seeking new tenants.
The living area is approximately 89 sqm.
The essentials at a glance:
- Light-filled top-floor apartment with a practical layout
- 2 bedrooms, living room, kitchen, daylight bathroom with shower and bathtub, guest WC with washing machine connection
- Lovingly and completely refurbished apartment, featuring a brand-new, high-quality bathroom, new floors, freshly plastered walls/ceilings, and new electrical wiring
- New oak laminate flooring throughout all living areas
- Bathroom, WC, and kitchen are newly and modernly tiled in anthracite and grey
- Large balcony (10 sqm) facing south towards the garden
- Spacious communal garden invites you to relax, with an additional shared terrace perfect for cozy barbecue evenings
- Heating and hot water provided by a heat pump: environmentally friendly, future-proof, with long-term moderate heating costs and no CO2 surcharge
- Triple-glazed windows
- Internet: Broadband available; fiber optic connection has been requested
- Outdoor car parking available
- Bicycle parking available
- Storage and utility room available
Cold rent: 1100 EUR
Additional costs (including heating): 270 EUR
Total warm rent: 1370 EUR
Optional outdoor parking can be rented for 40 EUR
Security deposit: 2 net cold rents (2200 EUR)
Location:
- Quiet yet close to the city center and TU Dresden
- Located on a quiet side street
- Excellent public transport connections
- Daycare center and elementary school within walking distance
- Shopping facilities in the immediate vicinity
- 20 minutes by public transport to TU Dresden (5 minutes by car)
- 20 minutes by public transport to the city center (10 minutes by car)
- 5 minutes to the motorway on-ramp Dresden Südvorstadt
We are private small landlords who value a pleasant, uncomplicated relationship and the satisfaction of our tenants.
We look forward to hearing from interested parties who are looking for a long-term home. Please send your inquiry along with a brief self-introduction, your current Schufa report, and, if possible, a certificate of rent arrears clearance from your current landlord.
*We speak English. Nous parlons français.*
Property characteristics
| Age | Over 5050 years |
|---|---|
| Condition | After reconstruction |
| Floor | 2. floor out of 2 |
| EPC | C - Economical |
| Price per unit | €12 / m2 |
| Available from | 05/12/2025 |
|---|---|
| Layout | 3+1 |
| Listing ID | 969509 |
| Usable area | 89 m² |
What does this listing have to offer?
| Balcony | |
| Parking |
| Basement | |
| MHD 2 minutes on foot |
What you will find nearby
Still looking for the right one?
Set up a watchdog. You will receive a summary of your customized offers 1 time a day by email. With the Premium profile, you have 5 watchdogs at your fingertips and when something comes up, they notify you immediately.




















