House for sale 6+1 • 189 m² without real estate, North Rhine-Westphalia
, North Rhine-WestphaliaPublic transport 1 minute of walking • Parking • GarageFor sale is a detached, clinker brick single-family house with an efficiency rating of KfW 55, built in 2018. The house combines modern architecture, excellent construction quality, and high-end technical equipment on a generous plot of approximately 794 m². It offers around 260 m² of living space spread over three floors, which can be flexibly configured for families, home offices, or multi-generational living.
• Living area (according to WoFIV): approx. 188.8 m²
• Usable area (according to DIN 277): approx. 164.6 m²
• Total usable area (excluding terraces/balcony/storage): approx. 353.4 m²
Thanks to geothermal energy, controlled residential ventilation, underfloor cooling/heating, and smart home technology, you will experience the highest level of comfort at extremely low energy costs.
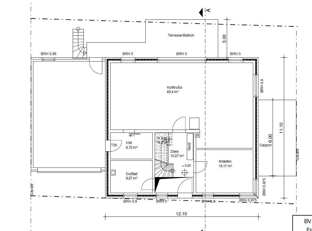
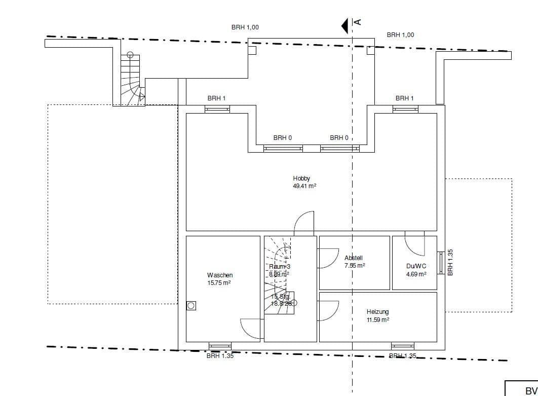
Floor Plans / Layout
Ground Floor:
• Open living/dining/kitchen area
• Study (optional)
• Guest WC with shower
• Utility room with additional access to the garage
• Spacious entrance hall with a view of the upper floor
First Floor:
• Master bedroom with access to the walk-in closet (air-conditioned)
• Walk-in closet with direct access to the bathroom
• Two children’s rooms (one with an additional mezzanine)
• Family bathroom with shower, bathtub, double washbasin, and WC
Basement:
• Hobby room (which can also be used as a kitchen, living room, or bedroom)
• Shower room with WC
• Storage room (also suitable as an additional bedroom)
• Boiler room
• Laundry room
• Hallway with plenty of storage space
Erftstadt-Erp is a quiet district in immediate proximity to Lechenich and offers excellent connections to Cologne, Bonn, and the surrounding area.
Ideal for families: a primary school, kindergarten, supermarket, doctor, and pharmacy are located on-site.
In the nearby area, Erftstadt offers a wide range of secondary schools, shopping opportunities, medical care, and an excellent range of leisure activities (Ville Lakes, cycling/hiking paths).
Transportation Connections:
• A1, A61, A553 reachable within minutes
• B265 with a direct connection to Cologne
• Erftstadt-Liblar train station served by regional trains (towards Cologne/Bonn)
• Energy Efficiency: KfW 55 standard, geothermal energy, centralized ventilation system
• Windows: Triple-glazed Schüco windows with enhanced burglary protection
• Underfloor heating/cooling: on the ground floor, first floor, and basement (partially also in the showers)
• Ceiling heights: Ground floor 2.72 / 5.60 m, Basement 2.59 m
• Smart Home: Busch & Jäger control system, programmable and controllable via an app
• Air conditioning: in the master bedroom
• Interior Finishing:
o Large-format porcelain stoneware tiles 120 x 60 cm
o Natural stone staircase
o High-quality vinyl flooring in the sleeping areas (industrial standard)
o Extra wide and high doors throughout the house
• Garage & Parking:
o Double garage with access to the house and garden
o Carport with real glass roofing (walkable)
o 3 covered parking spaces + 5 additional parking spaces
• Roof: Glazed flat roof tiles
• Basement: Fully developed, concrete walls (36.5 cm) in the ground area, suitable for living
• Garden: Well maintained, with a sunny orientation
Sale by auction to the highest bid
– The stated price is the minimum bid
Viewing appointments will only be arranged upon presentation of the following documents:
• Valid copy of an identification document
• Proof of financing or proof of capital of at least €1,000,000
Initial contact should be made exclusively via email.
• The exact address will be provided after a qualified initial contact.
________________________________________
Energy Information
• Energy certificate type: Energy requirement certificate
• Energy efficiency class: A+
• Final energy requirement: 17.08 kWh/(m²·a)
• Primary energy requirement: 30.74 kWh/(m²·a)
• Heating type: Geothermal
• Year of construction according to the energy certificate: 2018
Property characteristics
| Age | Over 5050 years |
|---|---|
| Layout | 6+1 |
| EPC | A - Extremely economical |
| Land space | 794 m² |
| Price per unit | €5,159 / m2 |
| Condition | Very good |
|---|---|
| Listing ID | 969325 |
| Usable area | 189 m² |
| Total floors | 2 |
What does this listing have to offer?
| Balcony | |
| Garage | |
| MHD 1 minute on foot |
| Basement | |
| Parking | |
| Terrace |
What you will find nearby
Still looking for the right one?
Set up a watchdog. You will receive a summary of your customized offers 1 time a day by email. With the Premium profile, you have 5 watchdogs at your fingertips and when something comes up, they notify you immediately.














































