Plot for sale • 1024 m² without real estate, North Rhine-Westphalia
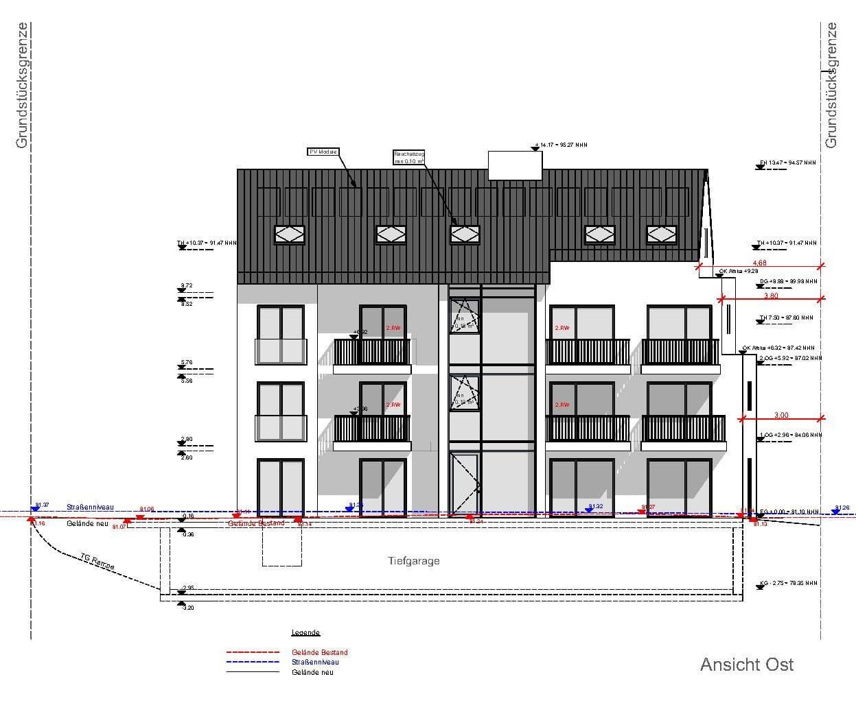
, North Rhine-WestphaliaPublic transport 2 minutes of walkingThe property has already been planned and features an approved preliminary building inquiry for a 3 1/2-story building that offers approximately 875 m² of living space. The building can be used either for residential purposes, a mix of residential and commercial use (offices/practices), or purely for commercial purposes.
For further information, please feel free to contact us.
The property is located in a desirable area of Siegburg. The street is situated in a well-kept residential area and offers excellent access to public transportation as well as to major roads. Downtown Siegburg is just a few minutes away and provides a variety of shopping options, restaurants, and cafés.
For commuters, the location is especially attractive because the Siegburg train station is in close proximity, offering good connections to the Cologne-Bonn region and the surrounding areas. Highways A3 and A560 are also quickly accessible, which guarantees excellent regional accessibility.
The surrounding area features a pleasant mix of residential and green spaces, which results in a high quality of life and a comfortable living environment. For families, there are several schools and kindergartens nearby, and recreational opportunities such as sports clubs and the adjacent forest area help provide a good balance between urban proximity and nature.
Property characteristics
| Available from | 05/12/2025 |
|---|---|
| Land space | 1,024 m² |
| Listing ID | 969166 |
|---|---|
| Price per unit | €1,318 / m2 |
What does this listing have to offer?
| MHD 2 minutes on foot |
What you will find nearby
Still looking for the right one?
Set up a watchdog. You will receive a summary of your customized offers 1 time a day by email. With the Premium profile, you have 5 watchdogs at your fingertips and when something comes up, they notify you immediately.




