Flat for sale 5+1 • 120 m² without real estateHamburg Stellingen Hamburg 22525
Hamburg Stellingen Hamburg 22525Public transport 2 minutes of walking • GarageThis duplex apartment exudes charm and rarity: With approximately 107 plus about 16 square meters of developed attic space, it offers plenty of room for a family. The apartment spans 3 levels, giving it a townhouse character with many private retreats. At the same time, the large, open-plan living kitchen provides ample space for sociable moments. The apartment was stylishly modernized in 2014. The best feature of the property is its central location on a quiet, green residential street.
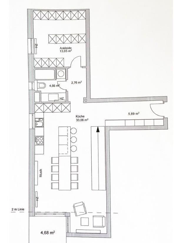
You enter the apartment on the 2nd floor. Here is the highlight of the apartment: the open living/dining area with a custom-made branded kitchen overlooking greenery. The room is very spacious and flooded with light. When you open the two-leaf door of the west-facing balcony, the living area transforms into a huge loggia. Also on the 2nd floor there is a room as well as a shower room with a window.
On the 3rd floor there is a full bathroom with a large window and 2 additional rooms. A custom-designed staircase with integrated multiplex shelving leads to the 4th floor, which is the developed attic. Here, a beautifully bright room is available. Due to the good floor plan and well-thought-out electrical planning, each room can be used according to individual wishes and needs. The square meter details of each room are provided in the floor plans. Throughout the 3rd and 4th floors, brushed, oiled oak parquet in wide plank format has been installed. On the 2nd floor, a high-quality and practical designer vinyl floor in a charming tile look is laid.
The insulated, double-glazed windows date from 2013.
This is a solidly built red-brick building from 1983 with no repair backlog. Behind the house, a beautiful communal garden is available, where one could, for example, set up a sandbox and host barbecue parties.
The apartment is located in a quiet, green residential street with a village-like character. The surroundings are a purely residential area with predominantly single-family homes. Opposite the apartment is an allotment garden association and the S-Bahn route. Supermarkets, drugstores (Rewe, Penny, Edeka, Budni, etc.), the weekly market in Eimsbüttel, schools, kindergartens, playgrounds, doctors, a pharmacy, cafés, the post office, and a bakery – everything can be reached very quickly on foot. Eimsbüttel and Osterstraße, with its many boutiques and cafés, are also just a “stone’s throw” away. The park with a playground, picnic areas, and fitness equipment around the brick pond is located at the end of the residential street. The S-Bahn stop “Langenfelde” (S3 and S21) is only a 3-minute walk away. The train takes about 5 minutes to Altona and approximately 11 minutes to the main station. Bus stops for lines 183 and 283 can be reached within 5 minutes. For those who prefer to travel by car or commute, the A7 “Stellingen” exit and Kieler Straße offer quick connections in all directions.
Stellingen borders Altona, Eimsbüttel, Lokstedt, Bahrenfeld, and Eidelstedt. Highlights of the district include Hagenbeck’s Zoo and the Volkspark, although the location is more closely associated with Eimsbüttel and Altona. A long-distance train station is currently being established right at the S-Bahn stop “Diebsteich” and can be reached on foot in 15 minutes or by one S-Bahn stop.
The apartment was modernized in 2014. Among other measures, the following were carried out:
• Opening up the kitchen to the living area: Installation of a white, handleless custom-made fitted kitchen from the brand Nobilia with high-quality energy-saving electrical appliances, such as a Siemens refrigerator with a 0-degree zone and an AEG oven with an integrated steam cooker and self-cleaning function.
• Installation of a custom-made wooden balcony door. The two leaves can be fully opened, with no central post.
• Installation of modern panel radiators (towel radiator in the bathroom).
• Plastering and white painting of the walls in all rooms.
• Both bathrooms have been completely redone. Only high-quality branded sanitary objects (Villeroy & Boch, etc.) were installed, and storage space was created (built-in cabinet, shelving in the shower, etc.).
• Installation of drywall niches in the hallway for a wardrobe, shoe cabinet, and bench as well as in the shower room for a washing machine and dryer.
• Laying of oak parquet throughout the 3rd and 4th floors (fully glued). The country-style plank parquet is robust, easy to maintain, and could be sanded twice more.
• Installation of new sockets and lighting outlets.
• New custom-made staircase from the 3rd to the 4th floor with integrated multiplex shelving.
• New window sills made of multiplex.
• New floor-to-ceiling white solid wood doors (custom carpenter-made).
• Modernization of the staircase to the 3rd floor.
In addition, in 2022 the following was done:
• Laying of the designer vinyl on the 2nd floor.
• Painting of the walls in all rooms.
• Installation of high-quality, custom-made base cabinets in both bathrooms.
There is an intercom system. In the underground garage, there is a private parking space and a bicycle storage area available as communal property. The apartment also comes with a private cellar room, about 4 square meters in size. In addition, there is a laundry room with 2 washing machines, a drying room, and a lockable bicycle room as communal property.
The purchase price amounts to 895,000 euros, plus 25,000 euros for the underground garage parking space.
The buyer does not have to pay any commission.
The monthly service charge of 600 euros includes caretaker, waste disposal, administrator fee, customary insurances, gardener, maintenance costs, repairs, heating, and water costs. The share of the maintenance reserve is an additional approx. 135 euros. The total reserves of the homeowners’ association amount to just over 100,000 euros and are therefore well funded.
An apartment handover is scheduled for spring 2026.
The apartment is in like-new condition and ready to move in. Only some touch-up painting on the walls is recommended.
Inquiries will only be considered if they include the full name, a telephone number, and an email address.
Property characteristics
| Age | Over 5050 years |
|---|---|
| Layout | 5+1 |
| Listing ID | 968935 |
| Price per unit | €7,458 / m2 |
| Condition | After reconstruction |
|---|---|
| Floor | 2. floor out of 3 |
| Usable area | 120 m² |
What does this listing have to offer?
| Balcony | |
| Garage |
| Basement | |
| MHD 2 minutes on foot |
What you will find nearby
Still looking for the right one?
Set up a watchdog. You will receive a summary of your customized offers 1 time a day by email. With the Premium profile, you have 5 watchdogs at your fingertips and when something comes up, they notify you immediately.




















