Flat to rent 3+1 • 89 m² without real estateElisabethstraße 14, , North Rhine-Westphalia
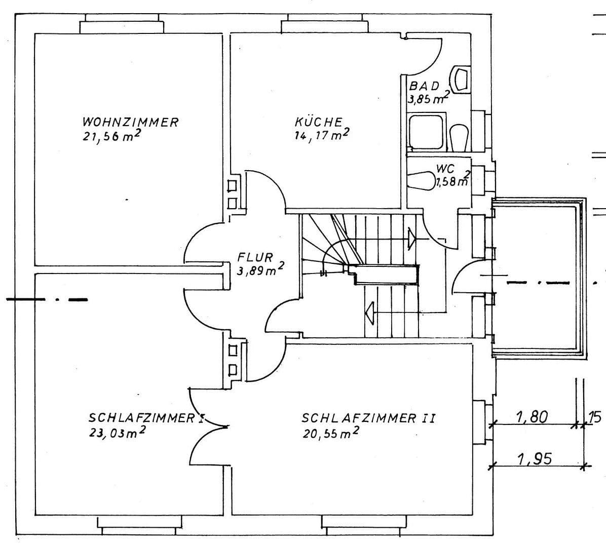
Elisabethstraße 14, , North Rhine-WestphaliaPublic transport 1 minute of walking • ParkingThis well-lit and attractively laid out three-room apartment on the first upper floor of a representative historic building will be available from September 1, 2025. The property is located in one of Beckum's best residential areas, in immediate proximity to the city center yet in a quiet and green setting. The apartment features high-quality flooring in all rooms (see photos/virtual tour; furniture will be removed from all rooms). An index rent in accordance with § 557b of the German Civil Code is agreed.
A viewing of the apartment is possible by arrangement.
The following documents must be provided by the tenant upon signing the rental agreement:
- Current proof of income (for employees: the last three payslips; for pensioners: the current pension statement; for self-employed persons: a written confirmation of net household income by a tax consultant);
- Current proof of creditworthiness (product "SCHUFA-BonitätsCheck", see https://bonitaetscheck.immobilienscout24.de/ or https://www.immonet.de/service/schufa-bonitaetsauskunft.html, or product "SCHUFA-BonitätsAuskunft", see https://www.meineschufa.de/de/produkt/schufa-bonitaetsauskunft – costs EUR 29.95 each);
- Valid official identification document (for German citizens: identity card or passport).
All information is provided without guarantee. Errors, price changes, and interim rentals remain expressly reserved until the contract is concluded.
Property characteristics
| Age | Over 5050 years |
|---|---|
| Condition | Good |
| Floor | 1. floor |
| Usable area | 89 m² |
| Available from | 05/12/2025 |
|---|---|
| Layout | 3+1 |
| Listing ID | 968701 |
| Price per unit | €8 / m2 |
What does this listing have to offer?
| Basement | |
| MHD 1 minute on foot |
| Parking |
What you will find nearby
Still looking for the right one?
Set up a watchdog. You will receive a summary of your customized offers 1 time a day by email. With the Premium profile, you have 5 watchdogs at your fingertips and when something comes up, they notify you immediately.

















