
Flat to rent 2 bedroom • 55 m² without real estateNa Petřinách, Prague - Veleslavín
Interested?
Communicate all private owners and save CZK 22,000 on commissions.
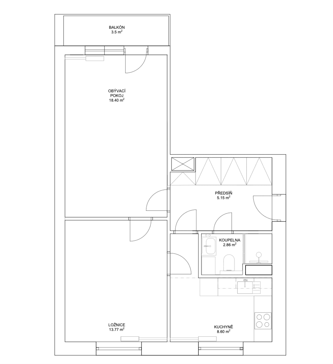
Nabízíme k pronájmu světlý byt 2+1 o rozloze 55 m², který prošel rekonstrukcí v roce 2022. Byt se nachází ve 3. patře bytového domu s výtahem v ulici Na Petřinách.
Dispozice bytu nabízí vstupní chodbu se zabudovaným úložným prostorem, kuchyni s novou kuchyňskou linkou (vestavěná lednice, elektrická trouba, indukční deska, myčka), koupelnu s WC (sprchový kout, pračka) a dvě obytné místnosti. Byt bude předán nevybavený volným nábytkem. Na chodbě a v kuchyni je nová dubová podlaha, v obytných místostech původní skládáné parkety, v koupelně dlažba.
Orientace bytu je severo-jižní a poskytuje dostatek denního světla. Výhled z ložnice je do klidného, zeleného vnitrobloku, výhled z obývacího pokoje dohlíží na silnici. Díky balkónu je dopravní hluk eliminivaný na minimum.
Ulice Na Petřinách nabízí bydlení v klidné a zelené části města s výbornou občanskou vybaveností. Lokalita vyniká skvělou dopravní dostupností – stanice metra A - Petřiny, tramvaj i autobus jsou jen pár kroků, díky čemuž se rychle dostanete do centra i na letiště. V bezprostředním okolí najdete obchody (supermarket Billa, Lidl, DM drogerie), kavárny (Kiosek, Sladká dílna, pekárna Hvězda), restaurace, školy, školky i zdravotnická zařízení. V těsné blízkosti je obora Hvězda i park Ladronka pro volnočasové vyžití. Atraktivitu místa podtrhuje bezpečná a příjemná atmosféra tradiční rezidenční čtvrti.
Parkování je možné před domem v rámci modrých zón. K bytu je možné předat i malou sklepní kój o rozloze 2 m². V rámci bytového domu je k dispozici společná kočárkárna, dílna a sušárna.
Byt je ideální pro jednotlivce, pár nebo menší rodinu, kteří hledají příjemné bydlení s vynikající dopravní dostupností a plnou občanskou vybaveností.
Nájem 22.000,- | Poplatky cca 6.000,- | Kauce 22.000,-
Byt je k nastěhování od 1.2.2026. Preferujeme dlouhodobý pronájem, minimálně 12 měsíců. V poplatcích zahrnuto: elektřina, topení, voda, domovní poplatky, svoz odpadu. Možnost wifi připojení, internet si řeší nájemce po své ose.
V případě zájmu o prohlídku či další informace mě prosím kontaktujte prostřednictvím zpráv na této platformě.
Property characteristics
| Available from | 01/02/2026 |
|---|---|
| Building construction | Precast concrete |
| Fully furnished | Partly |
| Listing ID | 968551 |
| Usable area | 55 m² |
| Condition | Very good |
|---|---|
| Layout | 2 bedroom |
| Floor | 3. floor out of 7 |
| Location | Residences |
| Price per unit | CZK 400 / m2 |
What does this listing have to offer?
| Balcony: 3.5 m² | |
| Lift | |
| Pets are welcome |
| Basement: 2 m² | |
| Parking | |
| MHD 1 minute on foot |
What you will find nearby
Interested?
Communicate all private owners and save CZK 22,000 on commissions.



Flat to rentDvorecké náměstí, Prague - Podolí- 2+kk
- 51 m²
CZK 21,000 + CZK 3,800CZK 22,000
Save CZK 1,000

Still looking for the right one?
Set up a watchdog. You will receive a summary of your customized offers 1 time a day by email. With the Premium profile, you have 5 watchdogs at your fingertips and when something comes up, they notify you immediately.
















