House for sale • 255 m² without real estateDraußenberg 36B, , Brandenburg
Draußenberg 36B, , BrandenburgPublic transport 2 minutes by car • Parking • GarageCapital investment in Dossow near Wittstock – Attractive investment opportunity with multi-generation house potential
This property in Dossow near 16909 Wittstock presents a promising opportunity for capital investors. The property impresses with its location in a quiet, nature-rich environment that is attractive for both tenants and future users.
This property offers versatile usage possibilities. It is particularly noteworthy that it is suitable as a multi-generation house, which increases the flexibility and potential for various usage concepts.
Due to the good connection to the surrounding towns and the infrastructure in Wittstock, stable rental prospects are ensured. In the long term, investors benefit from solid value development and attractive rental income. The location in a sought-after region makes this property a sustainable investment with great potential.
Lot size: 678 m²
Year built: 1996
House waterworks for garden irrigation
The property is currently divided into 2 land registers.
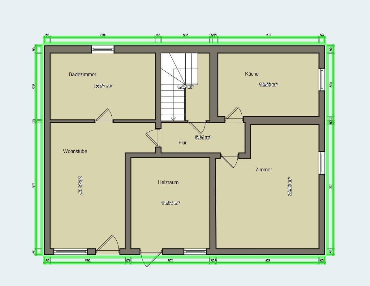
Ground floor: Apartment No. 1 with approximately 100 m²
Consisting of 4 rooms, kitchen, bathroom, hallway, and a covered terrace
Special features: - Fireplace stove in the ground floor living room
- Terrace 4 m x 8 m = 32 m² with roofing
- Bathroom with underfloor heating
- Garage under the terrace measuring 3 m x 7.5 m
Upper floor: Apartment No. 2 with approximately 80 m²
Consisting of 3 rooms, kitchen, bathroom, hallway, and balcony
Special features: - Kitchen with underfloor heating
- Balcony
- Storage room in the attic
Basement: Developed for private use as a living basement, approximately 75 m²
Consisting of 2 rooms, kitchen, bathroom, hallway
Special features: - Bathroom with underfloor heating and electricity
- Bathroom with whirlpool and large shower
Each unit is separate: (electricity, water, hot water, heat consumption meter)
All units have a separate entrance door.
Currently, the property is rented.
The house is located in the charming village of Dossow, which offers a quiet and idyllic setting near Wittstock. The surroundings are characterized by green forests, fields, and a pleasant rural atmosphere, ideal for those who appreciate peace and nature. Despite the rural location, the infrastructure is well developed: shopping opportunities, schools, and medical facilities are conveniently reachable in Wittstock, which is only a few kilometers away. The excellent connection to the highway makes it easy to reach the surrounding cities. Overall, the location offers a perfect mix of tranquility, nature, and good accessibility – ideal for families, nature lovers, or anyone looking to escape the hustle and bustle.
Property characteristics
| Age | Over 5050 years |
|---|---|
| Listing ID | 968452 |
| Usable area | 255 m² |
| Total floors | 3 |
| Condition | Good |
|---|---|
| EPC | C - Economical |
| Land space | 678 m² |
| Price per unit | €1,627 / m2 |
What does this listing have to offer?
| Balcony | |
| Garage | |
| MHD 2 minutes by car |
| Basement | |
| Parking | |
| Terrace |
What you will find nearby
Still looking for the right one?
Set up a watchdog. You will receive a summary of your customized offers 1 time a day by email. With the Premium profile, you have 5 watchdogs at your fingertips and when something comes up, they notify you immediately.

























