House for sale • 340 m² without real estateZiegenhainer Straße 3, , Hesse
Ziegenhainer Straße 3, , HessePublic transport 2 minutes of walking • Parking • GarageIn a highly sought-after location in the district town of Homberg, a fascinating residential and commercial building is for sale, situated directly opposite the modern shopping center “Drehscheibe.” This property, which offers enormous potential for investment, opens up a variety of usage options and combines an unbeatable location with carefully considered design possibilities.
This spacious multi-family house offers exceptional development potential – ideal for capital investors or multi-generation use.
On the ground floor, there is already a separated residential unit or commercial space with a separate entrance and its own toilet – perfect for an office, clinic, studio, or an independent apartment.
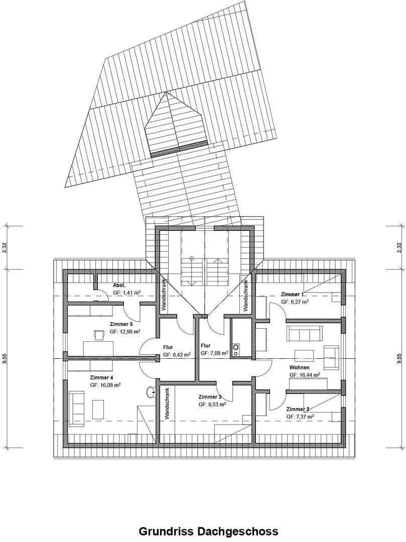
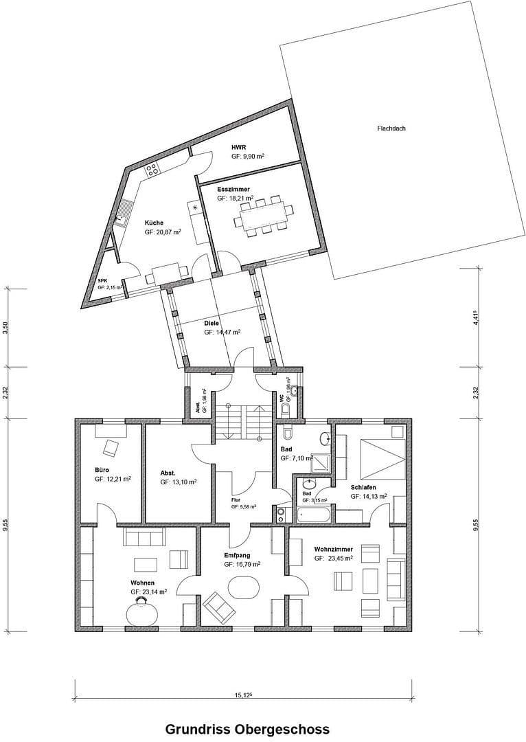
The two floors above feature an additional 19 rooms, 3 toilet rooms, and 2 bathrooms. The existing building structure allows for a division into several separate residential units. The generous staircase provides separate access to all floors and offers ideal conditions for a cost-efficient conversion into individual apartments.
This makes the property suitable for classic residential use as well as for student housing, employee residences, or a combination of living and working.
The property benefits from a central location in a dynamically growing district, which guarantees sustainable value appreciation.
Central location in the district town of Homberg, directly opposite the Drehscheibe shopping center. Many shopping opportunities, schools, kindergartens, doctors, and the marketplace are in immediate, walkable proximity.
Large, double-glazed PVC windows ensure excellent insulation and bright, light-filled rooms. With impressive ceiling heights of 3 meters, a spacious and open atmosphere is created. For additional storage space or as a utility or hobby room, a fully basement area is available.
An approved renovation plan, equipped with a funding volume of €98,000, supports the upcoming optimizations.
Property characteristics
| Age | Over 5050 years |
|---|---|
| Condition | Before reconstruction |
| EPC | E - Wasteful |
| Land space | 405 m² |
| Price per unit | €706 / m2 |
| Available from | 06/12/2025 |
|---|---|
| Listing ID | 968385 |
| Usable area | 340 m² |
| Total floors | 3 |
What does this listing have to offer?
| Basement | |
| Parking |
| Garage | |
| MHD 2 minutes on foot |
What you will find nearby
Still looking for the right one?
Set up a watchdog. You will receive a summary of your customized offers 1 time a day by email. With the Premium profile, you have 5 watchdogs at your fingertips and when something comes up, they notify you immediately.


























